Продажа дачи, коттеджа, дома на Киевском, Калужском шоссе — цена, описание, фото, расположение на карте.

Дом, Пенино

Снят с реализации

Дом 632 кв.м, состоящий из двух квартир по 316 кв.м каждая

Код: 198-211

Особенности объекта

Просторный меблированный дом на две семьи в коттеджной застройке: в каждой секции свой гараж, 4 спальни, 3 просторных санузла, сауны. На уютном тихом участке беседка и летний бассейн.  

Расположение

Ссылка на карту
Пенино
Калужское шоссе, от МКАД: 11 км, всего: 14 км
Киевское шоссе, от МКАД: 7 км, всего: 17 км
Тип застройки: сформированный к/п
Метро: Ольховая, Теплый стан, Саларьево; от 13 мин на авто

Дом

Общая площадь строений: 632 м2 (по 316 кв.м каждая секция)
Год постройки дома: 2007
Количество уровней: 4
Спален: 8. С/узлов: 6. Комнат всего: 14.
Опции: сауна; квартира для персонала; терраса; камин; машиномест крытых: 2, в т.ч. в теплом гараже: 2.
Материал стен: кирпич
Облицовка стен: кирпич
Кровля: мягкая
Окна: стеклопакеты ПВХ
Стадия готовности: меблирован
Цоколь: Левая секция: гараж 27 кв.м, коридор 17 кв.м, комната отдыха 11 кв.м с душевой 5 кв.м и сауной 5 кв.м, комната персонала 9 кв.м с с/узлом 4 кв.м
Правая секция: гараж 28 кв.м, котельная 12.6 кв.м с выходом на участок, коридор 12 кв.м, холодная кладовая, комната отдыха 11 кв.м, с/узел 6 кв.м, сауна 4 кв.м
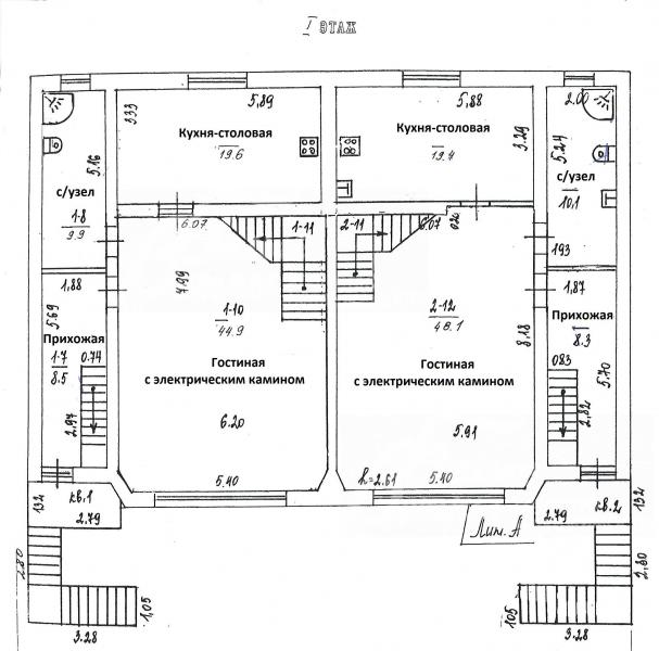
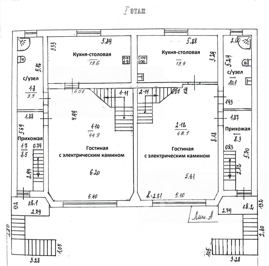
1-ый этаж: В каждой секции: крыльцо, прихожая 8.5 кв.м, с/узел 10 кв.м с душевой кабиной, гостиная 45 кв.м с камином (в правой секции гостиная 48 кв.м), кухня-столовая 19.5 кв.м
2-ой этаж: В каждой секции: холл 15 кв.м, спальня 29 кв.м, коридор 4 кв.м, с/узел 9 кв.м с ванной, спальня 11 кв.м и спальня 17 кв.м
3-ий этаж: В каждой секции: мансарда - помещение свободного назначения 65 кв.м
Описание внутренней отделки: Стены оклеены обоями, мансарда отделана деревянной вагонкой; пол - ламинат в гостиных и спальнях, плитка в санузлах, в холле, в цоколе. Потолки окрашены, в гостиных натяжные потолки. Лестничный марш деревянный шириной 120 см, с деревянными перилами.
Инженерное обеспечение: На две секции установлен энергонезависимый котел Ишма на 80 кВт; вентиляция естественная, для очистки воды используются фильтры, счетчики электричества и газа.
Мебель, оборудование: Обе секции дома полностью меблированы, в санузлах установлена сантехника.
Дополнительные строения: На участке деревянная беседка из бруса 40 кв.м. Встроенный летний бассейн 2.5х3.5 м, d=5 м
Дополнительная информация о доме: Фундамент дома - железобетонные плиты с армированным поясом, перекрытия железобетонные, высота потолков 2.73 м

Участок

Площадь участка, соток: 10 (2 участка по 5 соток)
Тип участка: с деревьями
Благоустройство участка: на участке растут березы, молодые ели, яблони, вишни, осины, кусты сирени, туи, сделан дренаж участка
Статус земли: земли населенных пунктов, для ведения личного подсобного хозяйства
Дополнительная информация об участке: ровный участок прямоугольной формы в центре поселка, огорожен металлопрофилем на металлических столбах, перед домом парковочная площадка выложена из плитки

Коммуникации

Газ: есть (магистральный)
Э/э: есть (10 кВт)
Водопровод: индивид. скважина (27 м)
Канализация: автономная
Телефон: есть (оптоволокно)
Интернет: есть (провайдер СпидиЛайн)
Охрана: нет (автоматические ворота с пультом на въезде в поселок)

Описание инфраструктуры

В 4 км развитая инфраструктура мкр. Новые Ватутинки: школы, детсады, взрослая и детская поликлиника, магазины, банк. В 5 км инфраструктура пос. Марьино: школа, детская амбулатория, центр культуры и спорта, магазины, почта. Недалеко от поселка расположен санаторий "Десна", принадлежащий Управлению делами Президента РФ. К услугам гостей санатория - крытый бассейн, сауны, спортивный клуб, лодочная станция, бары и рестораны. Также в пяти минутах езды, в поселке "Дубровка", находится торговый центр, рестораны, автомойка.

Элементы положит. окружения

Лесной массив расположен в 3 км, в 1 км протекает река Десна.

Хочу посмотреть


Поделитесь с друзьями:

Собираетесь купить дом, дачу или коттедж на Калужском или Киевском направлении? Обязательно воспользуйтесь услугами компании «Белые Ветры», старейшего оператора загородной недвижимости на Юго-западе Подмосковья!
Рейтинг@Mail.ru