Дом, Певчее КП
Код: 514-129
Особенности объекта
Новый просторный дом под чистовую отделку (white box) с собственным бункером. Архитектура дома, выполненная в классическом стиле, впечатляет округлыми формами фасада с колонным декором и большой площадью террас. В элегантной планировке – высокие потолки, двухмаршевая лестница, изящные полукруглые эркеры, множество окон и просторные помещения. Среди них запланированы гостиная с камином, игровая, библиотека, квартира для персонала. Все спальни – с собственными санузлами, мастер-спальня дополнена будуаром. На жилом цокольном этаже – спа-зона, включающая бассейн, сауну и хамам. Также есть мансардный этаж. Дом стоит на участке, расположенном на второй линии от леса в престижной тихой локации охраняемого коттеджного посёлка.
Расположение
Ссылка на карту
Певчее КП (Клоково)
Калужское шоссе, от МКАД: 17 км, всего: 25 км
Киевское шоссе, от МКАД: 21 км, всего: 27 км
Тип застройки: сформированный к/п
Метро: Филатов луг, Теплый стан, Рассказовка; от 24 мин на авто
Коттеджный поселок «Певчее»
Дом
Общая площадь строений: 702 м2
Год постройки дома: 2019 (предчистовая отделка выполнена в 2021 году)
Количество уровней: 4
Спален: 5. Опции: бассейн (заложены коммуникации); сауна (сауна и хамам на цокольном этаже рядом с бассейном: заложены все коммуникации и инженерные сети); квартира для персонала (с отдельным входом); терраса (2); камин (заложены коммуникации); холодный подвал (ниже цокольного этажа, на уровне бункера, внутри дома); машиномест крытых: 2, в т.ч. в теплом гараже: 2; бункер в доме.
Материал стен: газобетон (Bonolit, толщина 60 см, несущий монолитный каркас (300 куб. метров))
Облицовка стен: штукатурка ("короед", толщина 4 см, есть подготовка под лепнину: вся лепнина ручной работы, закуплена и находится на складе)
Кровля: мягкая (финская, синего цвета, утеплённая)
Окна: стеклопакеты ПВХ (Rehau)
Стадия готовности: под чистовую отделку (white box)
Цоколь: холл 20 кв.м, бассейн 11 кв.м, предбанник 7 кв.м, сауна 6,5 кв.м, хамам 5 кв.м, комната отдыха 41,5 кв.м, санузел 10 кв.м, спальня 19 кв.м с санузлом 3,5 кв.м, коридор 8 кв.м, тамбур 4 кв.м, подсобное помещение 10 кв.м, электрощитовая 10 кв.м, бельевая 7 кв.м, котельная-постирочная 5 кв.м, холодная кладовая 26 кв.м, коридор между кладовыми 15 кв.м, кладовая 16 кв.м, погреб 9 кв.м
1-ый этаж: холл-прохожая 13 кв.м, гостиная 43,5 кв.м, столовая 18 кв.м с выходом на террасу 40 кв.м, кухня 15,5 кв.м, игровая 23 кв.м, спальня 26 кв.м с санузлом 3,5 кв.м, библиотека 16 кв.м, санузел 6 кв.м, коридор между гаражом и кухней 7 кв.м, гараж 48,5 кв.м, терраса 17,5 кв.м, балкон 14,5 кв.м, балкон 4,5 кв.м
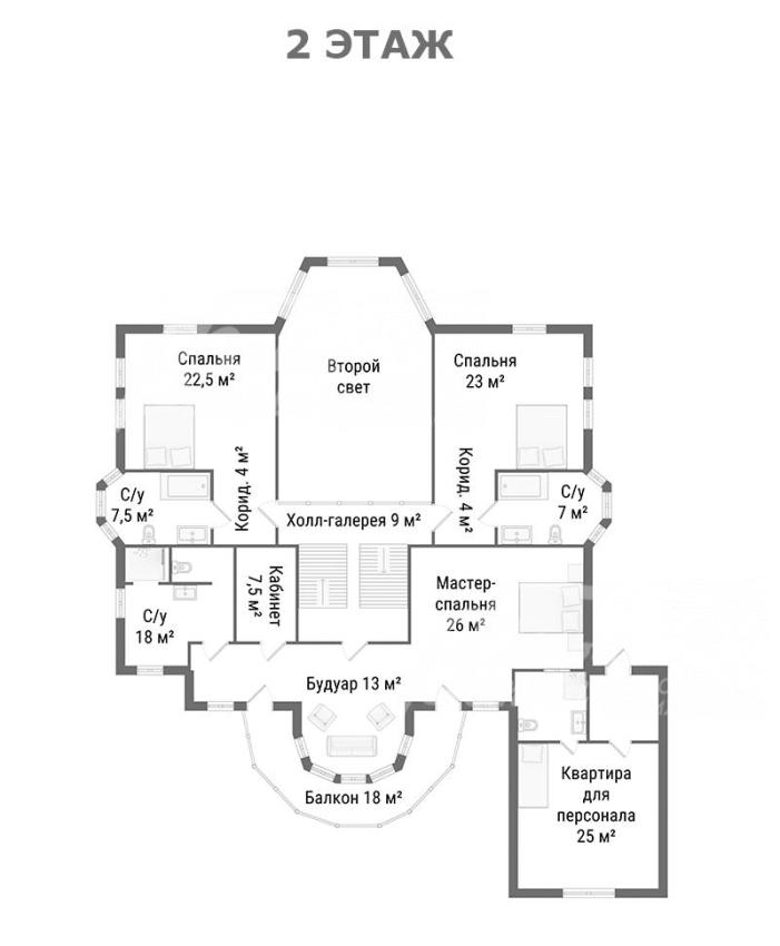
2-ой этаж: холл-галерея 9 кв.м, мастер-спальня 26 кв.м с будуаром 13 кв.м, санузлом 18 кв.м, выходом на балкон 18 кв.м, кабинет 7,5 кв.м, детская мастер-спальня 22,5 кв.м с прихожей 4 кв.м, санузлом 7,5 кв.м, выходом на балкон (над вторым светом) 14,5 кв.м, детская мастер-спальня 23 кв.м с прихожей 4 кв.м, санузлом 7 кв.м, выходом на балкон, квартира персонала с отдельным входом по лестнице с улицы 25 кв.м
3-ий этаж: мансардный этаж: площадь свободного назначения 163,5 кв.м
Описание внутренней отделки: дом – в стадии предчистовой отделки (white box). Стены выровнены и подготовлены под покраску или оклейку обоями. По всем помещениям выполнена стяжка пола. В санузлах, на кухне, в прихожей и в других зонах, где планируется укладка плитки, смонтированы системы тёплых полов. Установлена монолитная железобетонная двухмаршевая лестница. Дверные проёмы заложены высотой 2,2 м, что визуально увеличивает объём внутренних помещений. Электрика разведена по всему дому — подготовлены точки под розетки, выключатели и освещение. Сделана комплексная разводка отопления по всем этажам, поставлены радиаторы. Подготовлены точки и разводка под установку сантехники, а также смонтированы инсталляции для монтажа навесной сантехники. Потолки также подготовлены под монтаж натяжных конструкций. В гостевой комнате установлены высококачественные акриловые подоконники
Инженерное обеспечение: в доме полностью разведены все основные инженерные системы, включая газоснабжение, водоснабжение, канализацию и электроснабжение. Для обеспечения отопления установлен котёл, а для горячего водоснабжения — бойлер косвенного нагрева ёмкостью 500 л. Выполнена предварительная подготовка под монтаж системы очистки воды. В здании обустроены технологические шахты (закладные) для последующей установки приточно‑вытяжной вентиляционной системы. В части безопасности смонтирована охранная система с сигнализацией, при этом объект находится под охраной Росгвардии; также выполнены закладные элементы для размещения камер видеонаблюдения. Кроме того, установлено слаботочное оборудование, в том числе серверные устройства
Дополнительная информация о доме: фундамент дома выполнен из монолитного железобетона с применением бетона марки 500. Конструктивно он состоит из двух основных элементов: нижней плиты с утеплением толщиной 1,5 м и стен цокольного этажа, которые служат основанием дома. Межэтажные перекрытия также выполнены из монолитного железобетона на базе бетона марки 500. Высота потолков в черновом варианте составляет 3,14 м
Участок
Площадь участка, соток: 20
Тип участка: без деревьев
Благоустройство участка: вокруг дома выполнена дренажная система с трёхуровневой схемой дренажа
Статус земли: индивидуальное жилищное строительство
Дополнительная информация об участке: участок находится на второй линии от леса в престижной локации коттеджного посёлка, в его дальней части, ограждение территории выполнено из пескобетона
Коммуникации
Газ: есть (магистральный)
Э/э: есть (15 кВт, госкомпания)
Водопровод: центральный (управляющая компания)
Канализация: централизованная (управляющая компания)
Телефон: есть (через интернет-провайдера)
Интернет: есть (оптоволокно, есть возможность подключения спутникового телевидения)
Охрана: есть
Описание инфраструктуры
Новый формирующийся охраняемый коттеджный поселок, удобно расположенный, недалеко от трассы, Соединяет 2 направления: Киевское и Калужское шоссе. В 5км от г. Троицка. Центральные коммуникации. Порядка 80% жителей поселка живут в нем круглогодично. Вся территория строго охраняется, патрулирование территории производится ежедневно. При этом поселковый взнос очень бюджетный. На территории поселка расположены детская площадка, коробка для баскетбола, каток, футбольная площадка с газоном и знаменитая школа Юлии Зарубиной, пункты выдачи Озон и Вайлдберриз, магазин. В 5 минутах от поселка расположены: Vnukovo Country Club с открытыми бассейнами, тренажёрными залами, теннисными кортами и прочими активностями, а так же ресторан. Загородный комплекс Империал с зоной рыбалки, беседками и террасами для отдыха, рестораном и барами. Новые школа и садик в Горчаково. Школа Vnukovo International School .
Хочу посмотретьПоделитесь с друзьями:
Похожие предложения:
Дом, Белгатой ДСК (Былово), 665 м2, 20 сот
Ольховая, Прокшино - от 24 мин на автоДом, Белгатой ДСК
Калужское ш., 24 км + 2 км
пл. участка: 20 сот
пл. дома: 665 м2
меблирован
Спален: 7. С/узлов: 7.

Дом, Идиллия КП (Раево), 615 м2, 21 сот
Ольховая, Теплый стан - от 27 мин на автоДом, Идиллия КП
Калужское ш., 22 км + 3 км
пл. участка: 21 сот
пл. дома: 615 м2
под отделку
Спален: 5. С/узлов: 5.
Дом, Богородское КП (Городище), 867 м2, 25 сот
Ольховая, Теплый стан - от 8 мин на автоДом, Богородское КП
Калужское ш., 10 км + 2 км
пл. участка: 25 сот
пл. дома: 867 м2
меблирован
Спален: 7. С/узлов: 6.

Дом, Горчаково, 746 м2, 16.5 сот
Киевское шоссе, от МКАД: 21+9 км
Ольховая, Теплый стан - от 24 мин на автоДом, Горчаково
Калужское ш., 17 км + 10 км
пл. участка: 16.5 сот
пл. дома: 746 м2
меблирован
Спален: 5. С/узлов: 4.


Дом, Ильичевка к/п (Ильичевка), 607 м2, 20 сот
Киевское шоссе, от МКАД: 21+10 км
Крёкшино, Ольховая - от 24 мин на автоДом, Ильичевка к/п
Калужское ш., 17 км + 5 км
пл. участка: 20 сот
пл. дома: 607 м2
под отделку
Спален: 6. С/узлов: 6.




















