Продажа дачи, коттеджа, дома на Киевском, Калужском шоссе — цена, описание, фото, расположение на карте.

Дом, Променад КП

Снят с реализации

Дом 450 кв.м на 37 сотках в КП Променад

Код: 227-113

Особенности объекта

Очень стильный меблированный дом премиум-класса. Большой участок на возвышенности с перепадами, с красивейшим видом на лес и речку с прогулочной зоной. Эксклюзивные отделка в современном стиле по дизайнерскому проекту, мебель и оборудование. Элитный коттеджный поселок премиум-класса со спорткомплексом и бассейном.

Расположение

Ссылка на карту
Променад КП (Бурцево)
Киевское шоссе, от МКАД: 14 км, всего: 17 км
Тип застройки: обжитой к/п
Метро: Аэропорт Внуково, Кокошкино, Филатов луг; от 17 мин на авто
Коттеджный поселок «Променад»

Дом

Общая площадь строений: 450 м2
Год постройки дома: 2012
Количество уровней: 2
Спален: 4. С/узлов: 3. Комнат всего: 8.
Опции: терраса; камин.
Материал стен: кирпич
Облицовка стен: дикий камень и лиственница
Кровля: другое (натуральная черепица)
Окна: другое (деревянные, 2х камерные стеклопакеты, h=3 м, в гостинной 6 м. Подоконники деревянные.)
Стадия готовности: меблирован
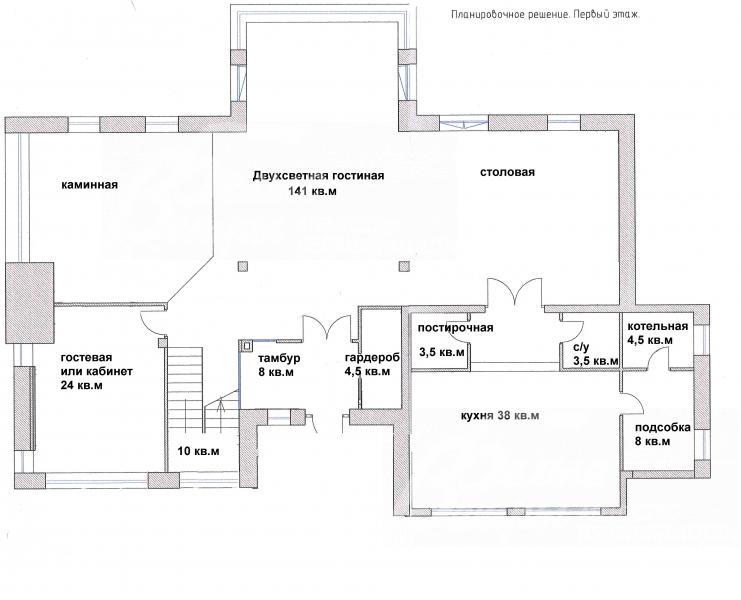
1-ый этаж: прихожая 8 кв.м, гардеробная 4.5 кв.м, гостевая спальня 24 кв.м, гостиная-каминный зал 141 кв.м, кухня 38 кв.м, постирочная 3.5 кв.м, с/у 3.5 кв.м, две подсобки
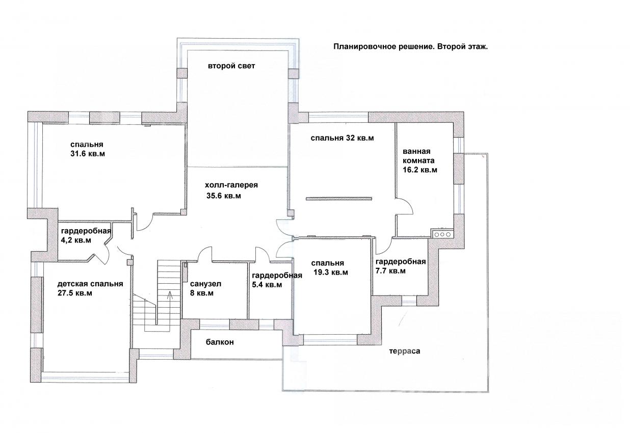
2-ой этаж: холл 36 кв.м, спальня 27.5 кв.м с гардеробная, спальня 32 кв.м с гардеробной 5.5 кв.м, ванная комната 8 кв.м, хозяйская спальня 32 кв.м с гардеробной 8 кв.м и ванной комнатой 16 кв.м, кабинет 19 кв.м
Описание внутренней отделки: эксклюзивная современная отделка по дизайнерскому проекту. В отделке использованы: клинкер, дуб, моющиеся и бумажные обои (Англия), полы- массив дерева американский орех, плитка керамогранит Германия с подогревом. Лестничный марш широкий, деревянными ступенями на бетонном основании, стеклянные ограждения с деревянными перилами. Потолки многоуровневые с фигурными молдингами и встроенной подсветкой, второй свет в гостиной. Сантехника VILLEROY&BOCH. Двери из массива дерева, выполнены на заказ.
Инженерное обеспечение: система "умный дом", котел Viessmann на 100кВа, бойлер Viessmann на 100кВа, многоступенчатая система очистки воды, принудительная центральная вентиляция с кондиционированием, пожарная сигнализация, датчик на утечку воды, есть выводы под видеокамеры наблюдения
Мебель, оборудование: полностью меблирован, оснащен техникой и оборудованием Siemens (духовой шкаф, пароварка, кофеварка, СВЧ), 2 многокамерных холодильника Lieblier, кухонный гарнитур Италия с островом и барной стойкой, вся корпусная мебель Bo Concept (Бельгия), элитные шторы и тюль на 2-х уровнях
Дополнительные строения: - Выведены коммуникации под гостевой дом ( в нижней части уч-ка);
- подготовлен фундамент под гараж на 2 авто.
Дополнительная информация о доме: фундамент и межэтажные перекрытия монолитные, высота потолков на 1 этаже - 3.5 м, в гостиной - 7.8 м (второй свет), на 2 этаже - 3.4 м

Участок

Площадь участка, соток: 37.4
Тип участка: с уклоном (с перепадами высот (3 уровня)), выходит к реке
Дополнительная информация об участке: участок граничит с зоной отдыха на реке Незнайка, рядом лесополоса

Коммуникации

Газ: есть (магистральный)
Э/э: есть (15 кВт)
Водопровод: центральный
Канализация: централизованная
Телефон: есть (московский номер)
Интернет: есть (оптиковолокно)
Охрана: есть (строгая пропускная система, патрулирование)

Описание инфраструктуры

Собственная река с прогулочной набережной-променадом и лодочной пристанью, регулярный парк с аллеями и цветниками. Развитая инфраструктура для активного образа жизни и отдыха: фитнесс-центр с бассейном, теннисные корты, футбольное поле, зимний каток и лыжные трассы, велосипедная трасса в лесу. Ресторан, минимаркет, бильярдная. Для маленьких жителей поселка спортивная площадка, детский сад и детский клуб, игровые площадки и каменные гроты у реки.

Хочу посмотреть


Поделитесь с друзьями:

Собираетесь купить дом, дачу или коттедж на Калужском или Киевском направлении? Обязательно воспользуйтесь услугами компании «Белые Ветры», старейшего оператора загородной недвижимости на Юго-западе Подмосковья!
Рейтинг@Mail.ru