Дом, Пыхчево
Код: 185-305
Особенности объекта
Небольшой уютный дом, полностью готовый к проживанию, расположенный в очень тихом и живописном месте с развитой инфраструктурой. Главное достоинство дома - отличная планировка, очень функциональная для данной площади дома. Ухоженный участок с взрослыми лесными деревьями, ландшафтным дизайном и альпийской горкой. Рядом лесной массив и река. Московская прописка. В 3-х минутах езды строится станция метро
Расположение
Ссылка на карту
Пыхчево
Калужское шоссе, от МКАД: 18 км, всего: 22 км
Тип застройки: коттеджная застройка
Метро: Ольховая, Теплый стан, Бунинская аллея; от 17 мин на авто
Дом
Общая площадь строений: 142 м2
Год постройки дома: 2010 (2015-2016 гг. - косметический ремонт)
Количество уровней: 2
Спален: 4. С/узлов: 2. Комнат всего: 6.
Опции: сауна; камин; холодный подвал; машиномест крытых: 2.
Материал стен: газобетонный блок Hebel (Германия)
Облицовка стен: штукатурка (+ окрашены, отделаны диким камнем и деревом)
Кровля: мягкая (ондулин. Полностью обновлена в 2021 г (паро- и гидроизоляция, а также вентиляция кровли))
Окна: стеклопакеты ПВХ (на окнах 1-го этажа - кованые решетки)
Стадия готовности: меблирован
Цоколь: Полуподвальное помещение 90 кв.м без отделки высотой более 2 м - не включено в общую площадь
1-ый этаж: крыльцо 2 кв.м, тамбур-прихожая 3 кв.м, коридор 4 кв.м, кухня-столовая-гостиная с камином и выходом на участок 36 кв.м, зона сауны 9 кв.м с душем, с санузлом и парной, спальня 11 кв.м, бойлерная 7 кв.м.
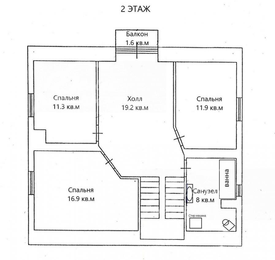
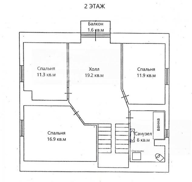
2-ой этаж: холл-гостиная 20 кв.м с балконом, 3 спальни = (17, 12 и 12 кв.м), санузел с ванной 8 кв.м
3-ий этаж: свободное пространство ~ 45кв.м, утеплитель, пол деревянный, высота в коньке более 2 м - не включено в общую площадь
Описание внутренней отделки: отделка в стиле "Кантри". На 1 этаже стены - обои под покраску, на 2 этаже стены обшиты поперечной широкой вагонкой. В комнатах и холлах - ламинат, в санузлах — импортная плитка с подогревом. Деревянная сборная лестница из сосны. Отделка потолков евровагонкой. Унитаз IDA (Финляндия), Roca (Испания), ванная JACOB DELAFON (Франция), смесители Grohe. Деревянные межкомнатные двери.
Инженерное обеспечение: система отопления от настенного 2 х- контурного газового котла Buderus 24 кВт, запасной электрический котел Protherm 21 кВт. Система горячего водоснабжения от 2 х- контурного котла, есть запасной электрический накопительный (настенный) бойлер Ariston на 150 л. Установлены 2 фильтра очистки воды. Естественная вентиляция. Система видеонаблюдения - 4 камеры на ЗУ по периметру (вывод на смартфон). Есть генератор бензиновый (пр-во Германия) на 5 кВт (ресурс работы до 13 часов).
Мебель, оборудование: есть вся необходимая мебель (кухня, столовая, гостиная, спальни, шкафы, кресла, диваны).
Дополнительные строения: - парковка на 2 авто, навес на 2 авто.
Дополнительная информация о доме: ленточный фундамент (1,5 м) пол бетонный. Бетонные межэтажные перекрытия. Высота потолков: 1-ый этаж - 2,9 м; 2-ой этаж - от 1,6 м до 2,9 м.
Участок
Площадь участка, соток: 7
Тип участка: лесопарковый (на участке растут 4 взрослых березы, 4 ели, 10 туй и др. - всего 50 растений)
Благоустройство участка: проведен ландшафтный дизайн с сохранением естественного природного ландшафта. Участок выровнен, 117 кв.м отмостки, сделана зона парковки на 4 а/м (плитка на цементе) 2 из которых под навесом. Цветы (розарии), кусты, место под барбекю, английский газон. Организован дренаж. В 50 м - рядом с участком ручей и родник. В 100 метрах от участка лесной массив.
Статус земли: земли населенных пунктов для ИЖС (с пропиской)
Дополнительная информация об участке: участок огорожен по периметру забором из металлического профиля на бетонном основании, установлены въездные откатные ворота с электроприводом, имеется входная калитка. Участок правильной трапециевидной формы.
Коммуникации
Газ: есть (магистральный)
Э/э: есть (15 кВт)
Водопровод: колодец (колодец на 11 колец (очень чистая вода), насос на 3-ем кольце)
Канализация: автономная (биосептик, Астра-5 на 5 человек)
Интернет: есть (100 МБит/с)
Описание инфраструктуры
Развитая инфраструктура п. Поливаново и г. Троицк. В поселке — магазин. Вблизи поселка расположены элитные резиденции коттеджного поселка Грин Парк.
Элементы положит. окружения
Вблизи поселка расположены элитные резиденции коттеджного поселка Грин Парк. В 100 метрах от участка лесной массив. В 50 метрах - река, рыболовный клуб. Рядом с участком родник.
Хочу посмотретьПоделитесь с друзьями:
Похожие предложения:
Дом, Александровы пруды КП, 139 м2, 9 сот
Варшавское шоссе, от МКАД: 24+6 км
Подольск, Ольховая - от 26 мин на автоДом, Александровы пруды КП
Калужское ш., 25 км + 13 км
пл. участка: 9 сот
пл. дома: 139 м2
под ключ
Спален: 4. С/узлов: 2.




