Продажа дачи, коттеджа, дома на Киевском, Калужском шоссе — цена, описание, фото, расположение на карте.

Дом, Рогозинино к/п

Снят с реализации

Готовый к проживанию дом 300 кв.м в Рогозинино

Код: 229-806

Особенности объекта

Готовый для проживания со своим выходом на пруд. Тихое живописное место, обжитая коттеджная застройка, вокруг лес. Прогуляйтесь по дому с помощью видеролика

Расположение

Ссылка на карту
Рогозинино к/п
Киевское шоссе, от МКАД: 21 км, всего: 25 км
Калужское шоссе, от МКАД: 17 км, всего: 28 км
Тип застройки: обжитой к/п
Метро: Крёкшино, Рассказовка, Саларьево; от 20 мин на авто

Дом

Общая площадь строений: 300 м2
Год постройки дома: 2010
Количество уровней: 3
Спален: 4. С/узлов: 2. Комнат всего: 6.
Опции: сауна; камин; машиномест крытых: 2, в т.ч. в теплом гараже: 1.
Материал стен: 1 этаж-кирпич, 2 этаж- брус 150*150 мм
Облицовка стен: кирпич
Кровля: цементно-песчаная черепица
Окна: стеклопакеты ПВХ
Стадия готовности: меблирован
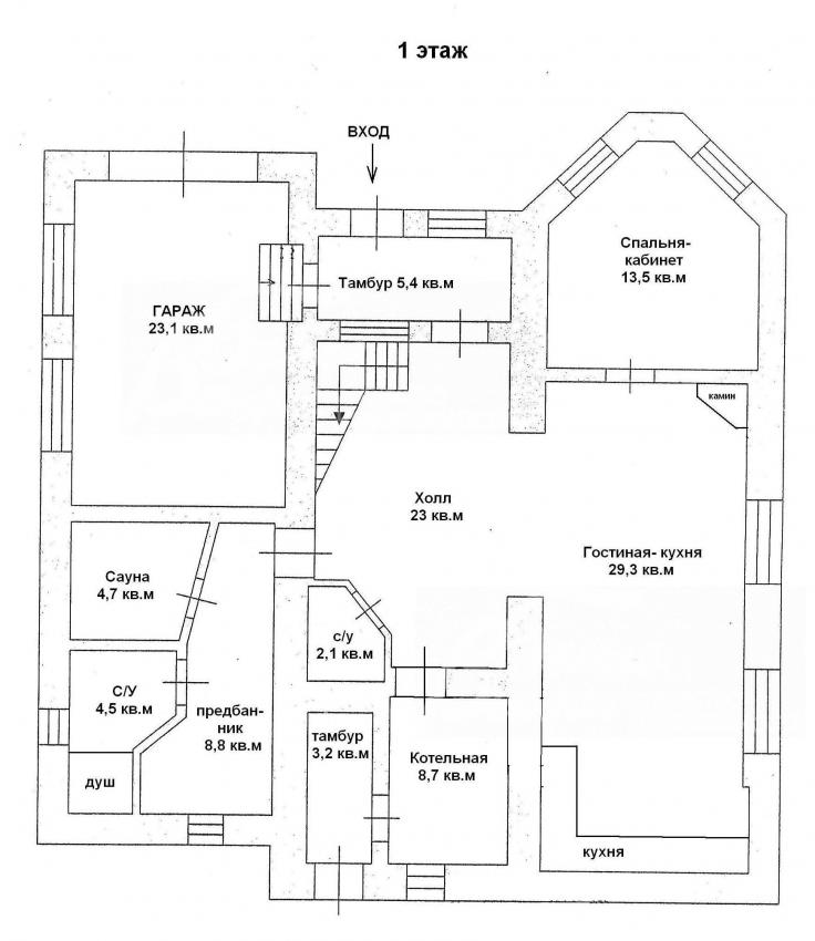
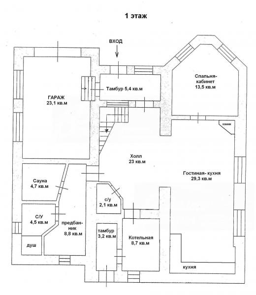
1-ый этаж: Прихожая с окном 5.4 кв.м, большой холл 23 кв.м, кухня-столовая-гостиная 29 кв.м с камином, жилая комната 13.5 кв.м, гостевой с/узел 2 кв.м, котельная с гладильной 8.7 кв.м, тамбур 3 кв.м с выходом на улицу, предбанник 9 кв.м, сауна 4.7 кв.м, с/узел с постирочной 4.5 кв.м, гараж 23 кв.м.
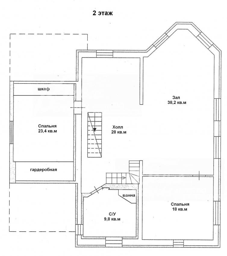
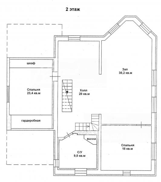
2-ой этаж: Холл 28 кв.м, гостиная-библиотека 38 кв.м, спальня 23.4 кв.м, спальня 18 кв.м, с/узел 10 кв.м
3-ий этаж: Помещение 55 кв.м с фронтальными и мансардными окнами.
Описание внутренней отделки: Стены окрашены, оклеены обоями. На полу ламинат, пробковое покрытие, кафель с водяным подогревом. Лестница деревянная. Потолки подвесные ГКЛ, многоуровневые с различной подсветкой. Все коммуникации по дому разведены под ключ. Вся сантехника в доме установлена (пр-ва Испания, Польша). Двери деревянные,шпонированные. Подоконники деревянные, кафель, мраморные, ПВХ.
Инженерное обеспечение: В доме установлены газовый котел марки Durkirk 58 кВт и бойлер Bradford косвенного нагрева. Система очистки воды многоступенчатая. Вентиляция естественноприточная. На кухне и мансарде установлены 2 кондиционера.
Дополнительная информация о доме: Фундамент железобетонный ленточный, перекрытия на 1 этаже железобетонные монолитные, на 2 и 3 этаже- деревянные

Участок

Площадь участка, соток: 9
Тип участка: поле с ландшафтом
Благоустройство участка: Выполнен ландшафтный дизайн, разбит газон, цветники,растут деревья. Вокруг дома сооружен дренаж.
Статус земли: Земли населенных пунктов, для индивидуального жилищного строительства
Дополнительная информация об участке: Участок прямоугольной формы, огражден металлическим забором на металлических столбах с бетонным цоколем высотой 2 м. Имеет заезд с двух улиц и выход к пруду, расположен в центре поселка.

Коммуникации

Газ: есть (магистральный)
Э/э: есть (15 кВт)
Водопровод: колодец
Канализация: автономная
Интернет: возможно подключение

Описание инфраструктуры

Рядом остановка общественного транспорта до поселка Первомайское, метро Саларьево, МЦД Крекшино и тд. В 5 минутах на машине Пяти звездочный Отель и СПА-комплекс Теплеево Резорт, включающий в себя: детский сад «Империя Знаний», выездной туристический клуб, спортивные и творческие кружки, подготовительные занятия к школе и тп., бизнес-центр с конференц-залами, рестораны, фитнес-центр, SPA-клуб, 25-метровый бассейн с гейзером и массажными противотоками, детский бассейн с горкой, финские сауны и турецкий хамам, арома-баня, косметология, солярий, имидж-студия, банкоматы, прачечная, химчистка. А также рыбалка, катание на лошадях, квадроциклы, пейнтбол, тир, теннисные корты, баскетбол, залы единоборств, парковка. В деревне Рогозинино, расположены Торговый центр, магазин «Перекресток», "Русская теннисная академия" (кроме тенниса: единоборства, детский клуб, студия фитнеса), ресторан «Весна», СПА-комплекс и Международная школа Внуково. А в Горчаково, расположена общеобразовательная школа 1391, частные клиники, банки, супермаркеты, автомойка.

Хочу посмотреть


Поделитесь с друзьями:

Собираетесь купить дом, дачу или коттедж на Калужском или Киевском направлении? Обязательно воспользуйтесь услугами компании «Белые Ветры», старейшего оператора загородной недвижимости на Юго-западе Подмосковья!
Рейтинг@Mail.ru