Продажа дачи, коттеджа, дома на Киевском, Калужском шоссе — цена, описание, фото, расположение на карте.

Дом, Русская Усадьба к/п

Снят с реализации

Код: 332-707

Особенности объекта

Выгодное предложение! Кирпичный дом 220 кв.м, очень светлый и уютный, с гаражом, на 2 линии от реки, в охраняемом коттеджном поселке. Из окон второго этажа открывается захватывающий вид на реку или лес. Все дороги в поселке освещаются в темное время суток, на территории: гостевая охраняемая стоянка для автомобилей, спортивная и детсая площадки, зимой каток, собственный пляж, прогулочная зона. Рядом с лес, спортивный парк Красная Пахра, недалеко г. Троицк с богатой ифраструктурой. До остановки общественного транспорта  10 минут пешком.

Расположение

Ссылка на карту
Русская Усадьба к/п (Былово)
Калужское шоссе, от МКАД: 24 км, всего: 26 км
Тип застройки: сформированный к/п
Метро: Прокшино, Теплый стан, Филатов луг; от 23 мин на авто
Коттеджный поселок «Русская Усадьба»

Дом

Общая площадь строений: 220 м2
Год постройки дома: 2014
Количество уровней: 2
Спален: 4. С/узлов: 3. Комнат всего: 5.
Опции: терраса; камин; машиномест крытых: 1, в т.ч. в теплом гараже: 1.
Материал стен: пеноблок+ облицовочный кирпич
Облицовка стен: облицовочный кирпич 2-х цветов (красный и белый), цоколь отделан камнем
Кровля: металлочерепица
Окна: стеклопакеты ПВХ (с раскладкой, на лестнице панорамное большое окно)
Стадия готовности: под чистовую отделку
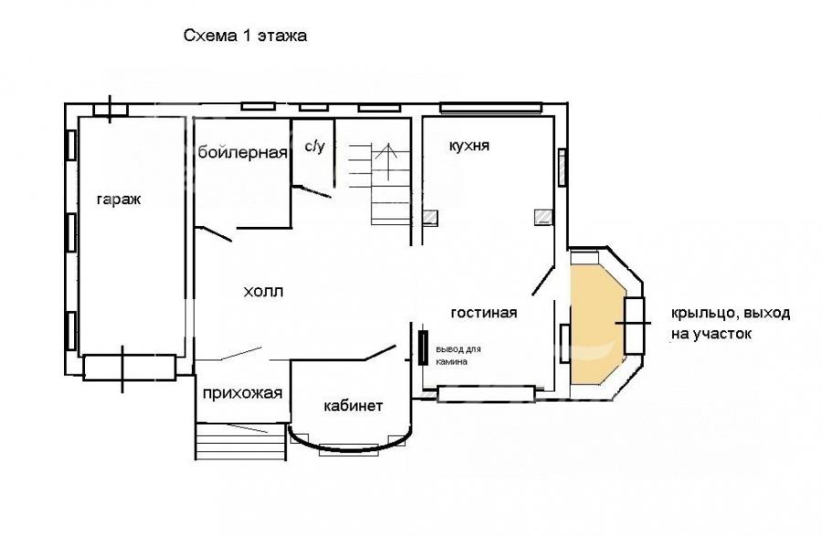
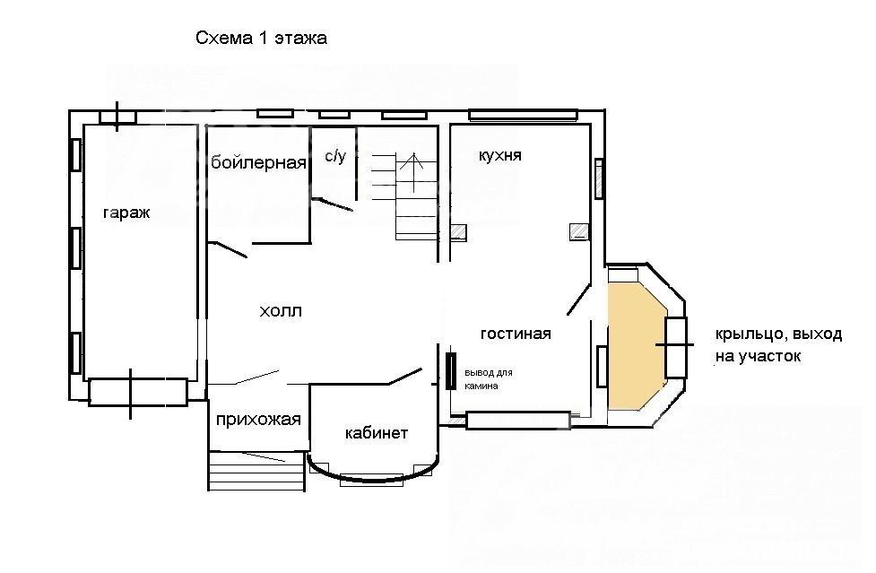
1-ый этаж: крыльцо, прихожая, гараж, бойлерная, с/у, холл, кухня, гостиная с выводом для камина и выходом в сад, кабинет (или спальня) с эркерным окном
2-ой этаж: холл с выходом на балкон, 2 спальни с гардеробными, большой с/у с окнами, спальня
Описание внутренней отделки: стены выровнены, оштукатурены, залита черновая стяжка, установлена ж/б лестница
Инженерное обеспечение: по дому разведено электричество до розеток и отопление до точек
Дополнительная информация о доме: из окон 2 этажа открывается завораживающий вид на реку или лес

Участок

Площадь участка, соток: 7.5
Тип участка: поляна, 2-я линия от воды
Благоустройство участка: выровнен, засеян газоном
Статус земли: ИЖС
Дополнительная информация об участке: ровный, правильной формы, без уклона

Коммуникации

Газ: есть
Э/э: есть
Водопровод: центральный
Канализация: централизованная
Интернет: возможно подключение
Охрана: есть (КПП)

Описание инфраструктуры

Обжитой и охраняемый коттеджный поселок на берегу живописного пруда с благоустроенной пляжной зоной. Свой выход в лес. На территории поселка организованы спортивные и детские площадки (футбольное поле, волейбольная площадка с возможностью заливания катка в зимнее время). Есть здание администрации, эксплуатационной службы и охраны. Гостевая парковка. В 15 минутах пешком остановка общественного транспорта до г. Троицк (школы, детские сады, поликлиника, супермаркеты, банки и тд.). Супермаркет "Вкус Вилл" в 3-х минутах на машине, а в 5 минутах на машине (20 минут пешком) - самый крупный в Москве спортивный парк "Красная Пахра". В 10 минутах на машине теннисный клуб "Цветочный". Элитный клуб Резиденция в г.Троицке с 25-м бассейном, тренажерным залом и теннисным кортом. Инфраструктура посёлка Былово.

Хочу посмотреть


Поделитесь с друзьями:

Собираетесь купить дом, дачу или коттедж на Калужском или Киевском направлении? Обязательно воспользуйтесь услугами компании «Белые Ветры», старейшего оператора загородной недвижимости на Юго-западе Подмосковья!
Рейтинг@Mail.ru