Продажа дачи, коттеджа, дома на Киевском, Калужском шоссе — цена, описание, фото, расположение на карте.

Дом, Русская Усадьба к/п

Снят с реализации

Код: 332-709

Особенности объекта

Новый кирпичный дом с видом на реку, рядом с лесом и спортивным парком "Красная Пахра". Удачная планировка, выгодная цена!

Расположение

Ссылка на карту
Русская Усадьба к/п (Былово)
Калужское шоссе, от МКАД: 24 км, всего: 26 км
Тип застройки: сформированный к/п
Метро: Прокшино, Теплый стан, Филатов луг; от 23 мин на авто
Коттеджный поселок «Русская Усадьба»

Дом

Общая площадь строений: 435 м2
Количество уровней: 3
Спален: 3. С/узлов: 4. Комнат всего: 8.
Опции: сауна; терраса; камин; холодный подвал; машиномест крытых: 2, в т.ч. в теплом гараже: 2; бильярдная.
Материал стен: кирпич
Облицовка стен: штукатурка
Кровля: мягкая (катепал)
Окна: стеклопакеты ПВХ (2-х камерные)
Стадия готовности: под отделку
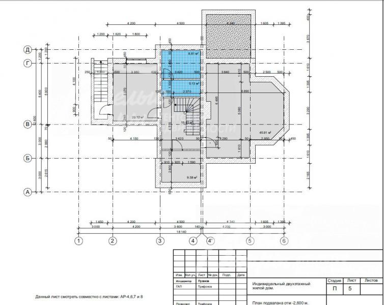
Цоколь: крыльцо, котельная 20 кв.м, сауна 8.8 кв.м, душевая-раздевалка 5 кв.м, холл 15.45 кв.м, комната отдыха 9.6 кв.м, бильярдная 45.9 кв.м
1-ый этаж: крыльцо, прихожая 7 кв.м, гараж 38.5 кв.м, с/у 4.6 кв.м, кабинет 12.6 кв.м, холл 17.5 кв.м, кухня 13.6 кв.м, гостиная с камином 46.1 кв.м, крыльцо с выходом в сад 12.2 кв.м
2-ой этаж: холл 22.6 кв.м, спальня 19.8 кв.м с с/у 10.5 кв.м, спальня 13.5 кв.м, спальня 34.1 кв.м с с/у 11.2
Описание внутренней отделки: лестничный марш из железобетона, шириной 1.2 м
Дополнительная информация о доме: фундамент монолитный ж/б, межэтажные перекрытия ж/б, высота потолков 3 м

Участок

Площадь участка, соток: 21
Тип участка: без деревьев, вторая линия от воды
Благоустройство участка: выровнен, засеян газоном
Статус земли: ИЖС

Коммуникации

Газ: есть
Э/э: есть (15 кВт)
Водопровод: центральный
Канализация: централизованная
Телефон: возможно подключение
Интернет: есть
Охрана: есть (КПП, патрулирование)

Описание инфраструктуры

Обжитой и охраняемый коттеджный поселок на берегу живописного пруда с благоустроенной пляжной зоной. Свой выход в лес. На территории поселка организованы спортивные и детские площадки (футбольное поле, волейбольная площадка с возможностью заливания катка в зимнее время). Есть здание администрации, эксплуатационной службы и охраны. Гостевая парковка. В 15 минутах пешком остановка общественного транспорта до г. Троицк (школы, детские сады, поликлиника, супермаркеты, банки и тд.). Супермаркет "Вкус Вилл" в 3-х минутах на машине, а в 5 минутах на машине (20 минут пешком) - самый крупный в Москве спортивный парк "Красная Пахра". В 10 минутах на машине теннисный клуб "Цветочный". Элитный клуб Резиденция в г.Троицке с 25-м бассейном, тренажерным залом и теннисным кортом. Инфраструктура посёлка Былово.

Элементы положит. окружения

рядом лес, река

Хочу посмотреть


Поделитесь с друзьями:

Собираетесь купить дом, дачу или коттедж на Калужском или Киевском направлении? Обязательно воспользуйтесь услугами компании «Белые Ветры», старейшего оператора загородной недвижимости на Юго-западе Подмосковья!
Рейтинг@Mail.ru