Продажа дачи, коттеджа, дома на Киевском, Калужском шоссе — цена, описание, фото, расположение на карте.

Дом, Сенькино-Секерино

Снят с реализации

Дом под ключ на Калужском шоссе

Код: 334-209

Особенности объекта

Привлекательный по архитектуре дом, под ключ, расположенный на уникальном по красоте участке, граничащем с лесом. Рациональная планировка, большие и светлые комнаты. Гараж. Живописный вид из окон.

Расположение

Ссылка на карту
Сенькино-Секерино
Калужское шоссе, от МКАД: 29 км, всего: 37 км
Киевское шоссе, от МКАД: 32 км, всего: 46 км
Тип застройки: сформированный к/п
Метро: Прокшино, Теплый стан, Филатов луг; от 33 мин на авто

Дом

Общая площадь строений: 300 м2
Год постройки дома: 2011
Количество уровней: 2
Спален: 4. С/узлов: 3. Комнат всего: 5.
Опции: терраса; камин; машиномест крытых: 1, в т.ч. в теплом гараже: 1.
Материал стен: керамоблоки, поризованый камень, базал.утеплитель
Облицовка стен: облицовочный кирпич, штукатурка
Кровля: мягкая
Окна: стеклопакеты ПВХ
Стадия готовности: под ключ
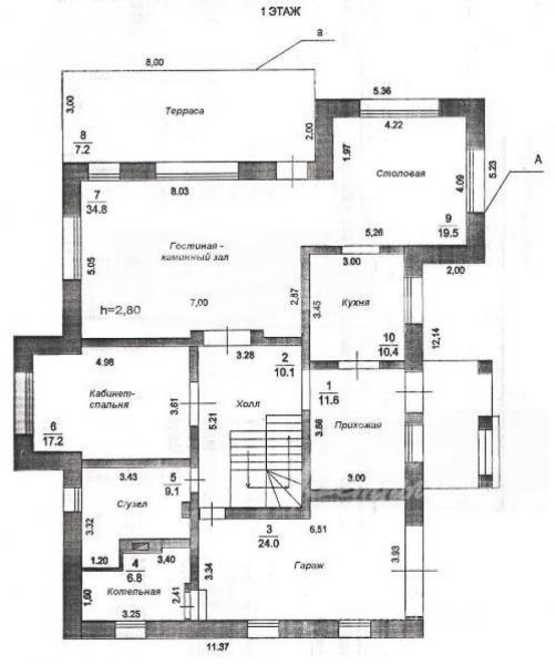
1-ый этаж: крыльцо 8 кв.м, прихожая 11 кв.м, холл 10 кв.м, кухня 10 кв.м, столовая 19.5 кв.м, каминный зал 35 кв.м с выходом на террасу 24 кв.м, кабинет-спальня 17 кв.м, с/узел 9 кв.м; котельная 7 кв.м, гараж 24 кв.м
2-ой этаж: холл 33 кв.м с выходом на балкон 8 кв.м, спальня хозяев 25 кв.м c гардеробной 7.5 кв.м и с/узлом 7 кв.м, спальня 28 кв.м, спальня 31 кв.м, с/узел 8 кв.м, постирочная 4 кв.м
3-ий этаж: возможно обустройство мансардного этажа ок. 50 кв.м
Описание внутренней отделки: стены окрашены; пол - плитка, керамогранит (теплый пол); потолки отделаны деревом, декорированы деревянными балками; лестничный марш железобетонный с коваными перилами, ступени отделаны плиткой
Инженерное обеспечение: котел Термонэ на 45 кВт (Чехия), установлена газплита, радиаторы, электричество и отопление разведены, установлены счетчики электричества и газа; видеодомофон
Дополнительная информация о доме: Классический архитектурный стиль, фасад в стиле "фахверк"; фундамент - ленточный монолит, ж/б перекрытия, высота потолков 2.80 м

Участок

Площадь участка, соток: 14
Тип участка: с лиственными деревьями (березы, осины), граничит с лесом
Благоустройство участка: сделан дренаж участка, организовано освещение
Статус земли: земли населенных пунктов, ИЖС
Дополнительная информация об участке: участок расположен в очень красивом месте. Участок ровный, прямоугольной формы, расположен в центре поселка; фронтальный забор деревянный на кирпичных столбах, с автоматическими воротами на въезде и в гараже, по периметру деревянный забор на металлических столбах

Коммуникации

Газ: есть (магистральный)
Э/э: есть (5 кВт с возможностью увеличения)
Водопровод: индивид. скважина
Канализация: автономная (3-х камерный)
Телефон: возможно подключение
Интернет: возможно подключение

Описание инфраструктуры

Инфраструктура поселка Шишкин Лес. Загородный отель-клуб Лачи . Питомник мини-лошадей. Гостинично-оздоровительный комплекс "Костин двор". Ферма с возможностью приобретения фермерской продукции.

Элементы положит. окружения

Живописное место, рядом расположен лесной массив, в 150 м протекает река Пахра, поблизости пруды.

Хочу посмотреть


Поделитесь с друзьями:

Собираетесь купить дом, дачу или коттедж на Калужском или Киевском направлении? Обязательно воспользуйтесь услугами компании «Белые Ветры», старейшего оператора загородной недвижимости на Юго-западе Подмосковья!
Рейтинг@Mail.ru