Продажа дачи, коттеджа, дома на Киевском, Калужском шоссе — цена, описание, фото, расположение на карте.

Дом, Сенькино-Секерино

Снят с реализации

Код: 334-905

Особенности объекта

Симпатичный дом с мебелью, выполненный из экологически чистого материала - бревна сосны, в тихом обжитом поселке. Гостиная с камином, кухня-столовая с выходом на веранду, 4 спальни, кабинет, балкон, две ванные комнаты, котельная. На участке с лесными и плодовыми деревьями русская баня с комнатой отдыха и купелью. Лес, река. Подходит и для ПМЖ и как дача.

Расположение

Ссылка на карту
Сенькино-Секерино
Калужское шоссе, от МКАД: 29 км, всего: 37 км
Киевское шоссе, от МКАД: 32 км, всего: 46 км
Тип застройки: дачный поселок
Метро: Прокшино, Теплый стан, Филатов луг; от 33 мин на авто

Дом

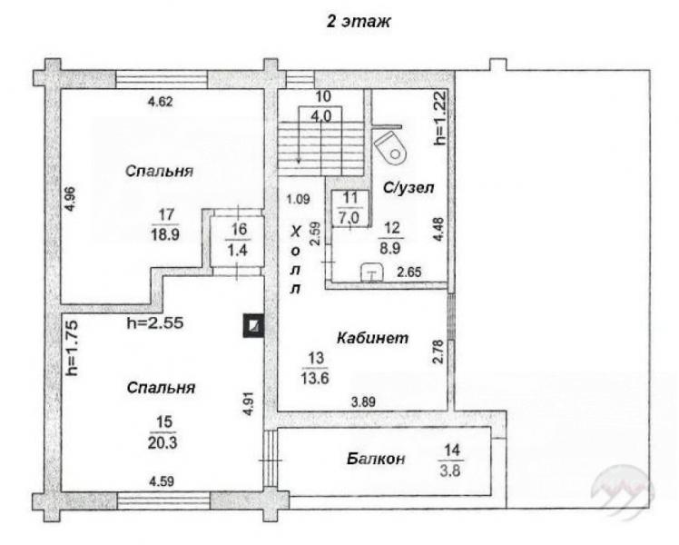
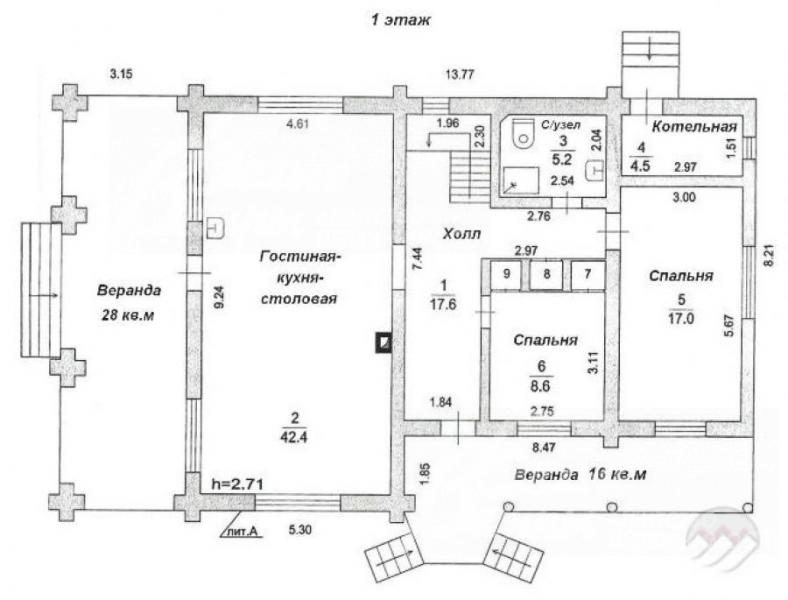
Общая площадь строений: 229.5 м2 (в т.ч.: дом 180 кв.м, баня 49.5 кв.м)
Год постройки дома: 2007
Количество уровней: 2
Материал стен: бревно (сосна)
Облицовка стен: блокхаус
Кровля: мягкая
Окна: стеклопакеты ПВХ
Стадия готовности: меблирован
1-ый этаж: крыльцо-веранда 16 кв.м, прихожая-холл 18 кв.м, гостиная-кухня-столовая 42 кв.м с камином и с выходом на веранду 28 кв.м, спальня 17 кв.м, спальня 9 кв.м, ванная комната 5 кв.м, котельная
2-ой этаж: холл-кабинет 10 кв.м, спальня 20 кв.м с балконом 11 кв.м, спальня 19 кв.м, ванная комната 9 кв.м
Описание внутренней отделки: отделка из лиственницы: стены - блокхаус, полы - доска, потолки - вагонка; лестничный марш деревянный (лиственница); двери деревянные, подоконники пластиковые
Инженерное обеспечение: газовый котел Ferroli (на 2 тонны); многоступенчатая система очистки воды, установлены счетчики воды и электричества, вентиляция естественная приточно-вытяжная
Мебель, оборудование: установлен финский камин Tulikivi; в с/узлах импортная сантехника
Дополнительные строения: Баня 49.5 кв.м: комната отдыха 17 кв.м, русская парная (установлена финская печь TULIKIVI), душевая, туалет. Во дворе рядом с баней купель 4х4 метра.
Хозблок 26.5 кв.м
Дополнительная информация о доме: дом выстроен в стиле "Шале"

Участок

Площадь участка, соток: 14.44
Тип участка: прилесной, с высаженными деревьями
Благоустройство участка: организован газон, сделаны дорожки, высажены 2 большие и 10 маленьких сосен, яблоня, груша, плодово-ягодные кустарники
Статус земли: земли сельскохозяйственного назначения, для садоводства

Коммуникации

Газ: есть
Э/э: есть (10 кВт)
Водопровод: индивид. скважина (скважина 52 м, колодец)
Канализация: автономная (Топаз 8)
Интернет: есть (спутниковый "Радуга"; телевидение "ТриКолор ТВ")
Охрана: есть (на въезде)

Описание инфраструктуры

Инфраструктура поселка Шишкин Лес. Загородный отель-клуб Лачи . Питомник мини-лошадей. Гостинично-оздоровительный комплекс "Костин двор". Ферма с возможностью приобретения фермерской продукции.

Элементы положит. окружения

К участку примыкает небольшой прудик, в 200 м от поселка расположен лесной массив, в 2-х км протекает река Пахра

Хочу посмотреть


Поделитесь с друзьями:

Собираетесь купить дом, дачу или коттедж на Калужском или Киевском направлении? Обязательно воспользуйтесь услугами компании «Белые Ветры», старейшего оператора загородной недвижимости на Юго-западе Подмосковья!
Рейтинг@Mail.ru