Продажа дачи, коттеджа, дома на Киевском, Калужском шоссе — цена, описание, фото, расположение на карте.

Дом, Шаганино к/п

Снят с реализации

Код: 180-715

Особенности объекта

Новый, небольшой (4 спальни), но добротный дом "под ключ" и со всей необходимой мебелью. Со всеми коммуникациями и с возможностью прописки, в мини-поселке на 6 домов с единым ограждением и въездом. Камин. Идеальный вариант взамен московской квартиры.

Примечание. Возможен обмен с доплатой на: квартира на Юго-Западе или Западе Москвы в нормальном приличном доме. Не крайние этажи. Рассматриваются варианты с доплатой в ту или иную сторону в зависимости от рыночной цены квартиры.

Расположение

Ссылка на карту
Шаганино к/п (Шаганино)
Калужское шоссе, от МКАД: 25 км, всего: 32 км
Варшавское шоссе, от МКАД: 24 км, всего: 30 км
Тип застройки: коттеджная застройка
Метро: Ольховая, Теплый стан, Бунинская аллея; от 31 мин на авто
Коттеджный поселок «Шаганино»

Дом

Общая площадь строений: 200 м2
Год постройки дома: 2009
Количество уровней: 2
Спален: 4. С/узлов: 2. Комнат всего: 6.
Опции: терраса; камин.
Материал стен: кирпич, утеплитель
Облицовка стен: колерованная штукатурка
Кровля: металлочерепица
Окна: стеклопакеты ПВХ
Стадия готовности: меблирован (полностью укомплектован новой мебелью)
1-ый этаж: гостиная 31 кв.м с камином и выходом на террасу, кухня-столовая 16 кв.м, гостевая спальня 14 кв.м, с/узел 7 кв.м
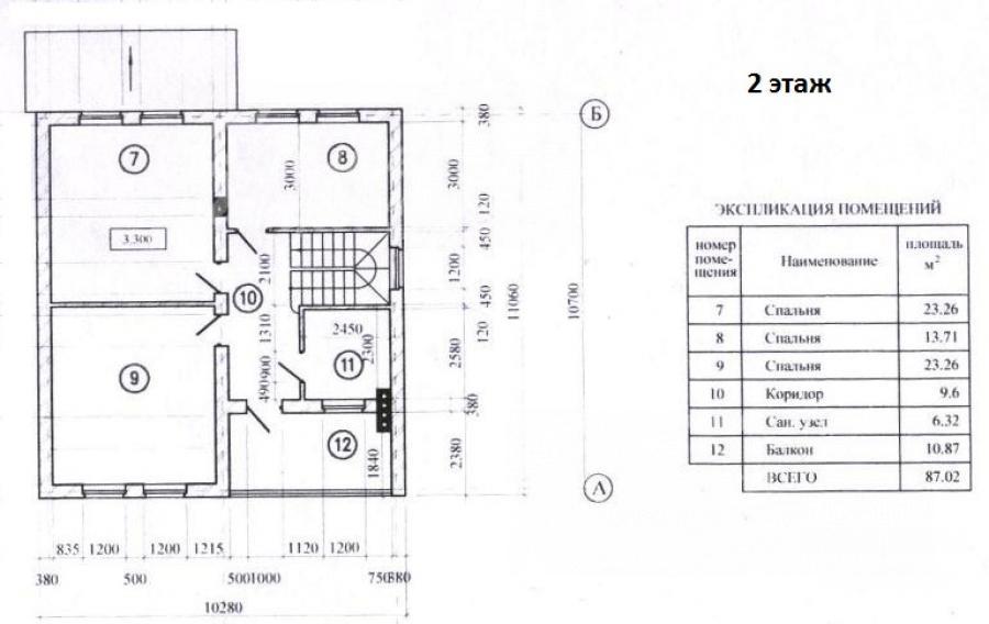
2-ой этаж: 3 спальни: 23, 23 и 14 кв.м; с/узел 6.3 кв.м, балкон 11 кв.м
Описание внутренней отделки: отделка под ключ (евростандарт): стены в коридорах покрашены, в комнатах - обои, в санузлах - плитка; межкомнатные двери деревянные, входная металлическая. Установлена вся сантехника.
Инженерное обеспечение: установлен газовый котел, бойлер.
Дополнительная информация о доме: Вся мебель и оборудование новые: встроенная кухня с бытовой техникой, установлены все люстры, светильники, карнизы и шторы, спальные и столовый гарнитуры.

Участок

Площадь участка, соток: 10
Тип участка: поле с элементами ландшафта.
Благоустройство участка: участок выровнен, засеян газон, ограждение из дерева
Статус земли: земли населенных пунктов, для индивидуального жилищного строительства
Дополнительная информация об участке: участок прямоугольной формы, расположен в центре поселка, по периметру огорожен высоким металлическим забором

Коммуникации

Газ: есть
Э/э: есть
Водопровод: центральный (водоснабжение централизованное на 6 домов)
Канализация: автономная (Топас)
Охрана: есть (дом находится в мини-поселке на 6 домов с единым ограждением и въездом)

Описание инфраструктуры

В 100м - магазин и остановка автобусов с маршрутами до Подольска, Красного и Троицка. (интервал 15-20 мин). Поблизости (несколько минут на автомобиле или автобусом) - школа, детский сад, поликлинника. В 100 м - дом отдыха УДП "Пахра" со спортивно-оздоровительными услугами: бильярдом, теннисом и т.п.

Элементы положит. окружения

Вблизи лесной массив. Неподалеку протекает река Пахра. В 100м - магазин и остановка автобусов с маршрутами до Подольска, Красного и Троицка. (интервал 15-20 мин). В близкой доступности - школа, детский сад, поликлинника. В 200м - дом отдыха с оздоровительными услугами, бильярдом, теннисом и т.п.

Хочу посмотреть


Поделитесь с друзьями:

Собираетесь купить дом, дачу или коттедж на Калужском или Киевском направлении? Обязательно воспользуйтесь услугами компании «Белые Ветры», старейшего оператора загородной недвижимости на Юго-западе Подмосковья!
Рейтинг@Mail.ru