Дом, Согласие-1 к/п
Код: 316-250
Особенности объекта
Очень добротный, с отделкой и 100% меблировкой высокого качества, в классическом стиле дом, в известном обжитом коттеджном поселке. В едином стиле с основным домом на участке расположены вспомогательное строение (баня, зимняя беседка, хозблок) + гараж на 2 авто. Участок с ландшафтом, множеством деревьев и кустарников, парковочный площадкой еще на 3 авто. В доме: высокие потолки; большие спальни, в том числе две мастер-спальни на 1ом и 2-м этажах; кухня, двери, стеновые панели, встроенные шкафы и лестница - из массива дуба и ореха; сантехника ведущих брендов, включая две джакузи, многофункциональные душевые кабины, в том числе с парогенератором. Классно устроенная баня и зимняя беседка, холодный сухой подвал. Достойное окружение. Тихая улица рядом с лесным массивом. Отличная транспортная доступность. В 2 км вся городская инфраструктура Новых Ватутинок (поликлиника, школы, сады, магазины, банк).
Расположение
Ссылка на карту
Согласие-1 к/п (Фоминское)
Калужское шоссе, от МКАД: 14 км, всего: 16 км
Тип застройки: обжитой к/п
Метро: Ольховая, Прокшино, Теплый стан; от 17 мин на авто
Коттеджный поселок «Согласие-1»
Дом
Общая площадь строений: 540 м2 (жилой дом 400 кв.м + вспомогательное строение 90 кв.м (баня, зимняя беседка, хозблок) + гараж 48 кв.м)
Год постройки дома: 2011
Количество уровней: 3
Спален: 5. С/узлов полных: 3. С/узлов неполных: 1. Комнат всего: 8.
Опции: баня; терраса; камин; холодный подвал; машиномест крытых: 2, в т.ч. в теплом гараже: 2; автоматические жалюзи.
Материал стен: газобетон (толщина стен 58 см)
Облицовка стен: облицовочный "рваный" кирпич, цоколь покрыт искусственным камнем, крыльцо - клинкерной плиткой
Кровля: Катепал
Окна: 2х-камерные ПВХ, с раскладкой, белого цвета
Стадия готовности: меблирован
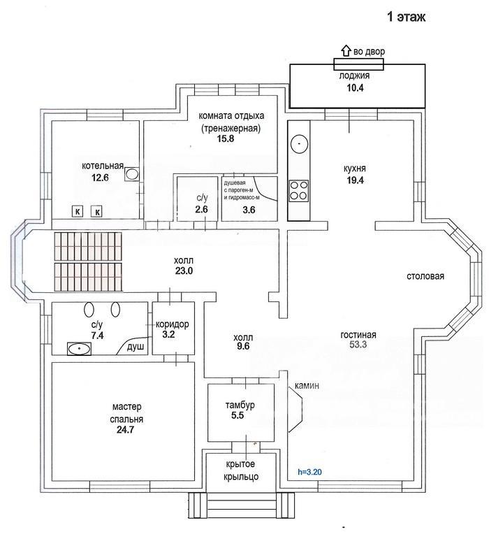
1-ый этаж: крытое крыльцо, тамбур 5.5 кв.м, холл 10 кв.м, столовая-гостиная с камином 53 кв.м, кухня 19 кв.м с выходом на лоджию 10.4 кв.м, мастер-спальня 25 кв.м со своим санузлом 7 кв.м; комната отдыха с тренажером (беговой дорожкой) 16 кв.м и душевой кабиной с парогенератором (аналог хамам), санузел гостевой 3 кв.м, котельная со станцией водоочистки 13 кв.м, коридор 23 кв.м;
2-ой этаж: холл 16 кв.м; мастер-спальня 26.2 кв.м с своим санузлом 18.3 кв.м (с окном, джакузи, душевой кабиной, биде) и гардеробной 15.6 кв.м; спальня 19.4 кв.м, спальня 18.8 кв.м, спальня 27.7 кв.м, общий санузел 16 кв.м (с джакузи, биде)
3-ий этаж: мансардное помещение около 60 кв.м, включает помещение свободного назначения (кинозал) , с 4 мансардными окнами и высотой потолков от 170 до 290 см, с вентиляцией и кондиционером; также кладовая и чемоданная
Описание внутренней отделки: отделка дорогими натуральными материалами. На стенах обои с шелкографией. Ценными породами дерева (панелями высотой 80 см) отделаны стены вдоль лестницы и по периметру разных помещений. Полы 1-го этажа покрыт почти везде (кроме Гостиной и жилой комнаты) и санузлов отделаны плиткой с водяным теплым полом, есть художественные панно. На 2-м этаже - паркетная доска, пол мансарды - ковровое покрытие. Лестничный марш - широкий, из массива орехового дерева. В Гостиной - две колонны. Камин отделан мрамором в классическом стиле. Сантехника ведущих брендов, включая две джакузи, многофункциональные душевые кабины. Двери из красного дерева (высотой 2.1 м), Проемы в холлах и гостиной высотой 270см и большой встроенный шкаф отделаны массивом ореха и дуба. между кухней и столовой - большие раздвижные двери с матовым стеклом. В Бане: печь Kastor Prezident (Финляндия) каминного типа, закрытая (не открытая каменка), облицована талькохлоридом; полки парной - из канадского кедра и абаша, финская стеклянная дверь "волна"; освещение Cariitti.
Инженерное обеспечение: котел Baxi 62 кВт, бойлер Reflex на 300л; многоступенчатая станция водоочистки Экодар.
В котельной установлена система резервного энергопотребления Cyberpower c автоматическим включением, с 4 аккумуляторами, расчитанная на 10 часов работы инженерных систем в аварийной ситуации.
Домофон и видеонаблюдение с камерой на въездные ворота, сигнализация подключена к вневедомственной охране Росгвардии;
Спутниковая (с 2 головками) и эфирная антенна
Мебель, оборудование: импортная и частично отечественная (сделана под заказ) мебель. В гостиной раскладывающийся (на пульте) кожаный диван с реклайнером и кресло, качественные шторы и тюль, телевизор SONY (Smart, 65 дюймов, с камерой), дорогие хрустальные люстры; спальный гарнитур от итальянской фабрики Camelgroup в классическом стиле (ручная резьба, подъемный механизм, кованые элементы). На мансарде пол покрыт антистатическим ковролином, очень удобная мягкая мебель (3 дивана) фабрики Albert&Shtein. Кухонный гарнитур в классическом стиле глубиной 75 см, фасады из массива ореха с резным золоченым орнаментом; высокая цельная с раковиной столешница из искусственного камня, 5-ти конфорочная газовая плита Miele c духовкой, двустворчатый холодильник. Итальянские, из массива стол для завтраков (с 4 стульями) в кухне и столовый гарнитур (с 8 стульями) для приема гостей в столовой;
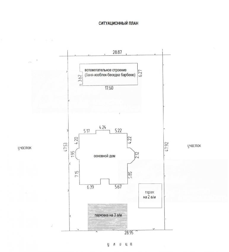
Дополнительные строения: - гараж кирпичный, на 2 а/м, площадью 48 кв.м (шир.620*750см), в едином стиле с с жилым домом; внутрь заведены водопровод и канализация, что позволяет достроить второй этаж;
- вспомогательное кирпичное строение (баня, зимняя беседка-барбекю, хозблок) 90 кв.м, подключенное к централизованным водопроводу и канализации, в едином стиле с жилым домом. В зоне бане: комната отдыха 25 кв.м с камином, раздевалка, парная, душевая с обливным ведром, туалет, кладовка. В хозяйственной части: электро-щитовая с выравнивающим напряжение оборудованием, хозблок, бетонированный погреб с вытяжной вентиляцией 10 кв.м; также большое чердачное пространство для хранения стройматериалов и инструментов.
В зоне зимней беседки (23 кв.м): большой мангал и большая русская печь, внутри отделаны шамотным кирпичом, снаружи - эстонским кирпичом, организованы системы поддува. Установлена кухонная мебель и столовый гарнитур из дуба (стол, стулья, скамьи).
Дополнительная информация о доме: классический архитектурный стиль; ленточный фундамент, перекрытия бетонные;
Участок
Площадь участка, соток: 15
Тип участка: с деревьями и ландшафтом
Благоустройство участка: высаженные деревья, кустарники и цветы: 2 вишни, 3 черешни, 4 яблони, кусты смородины и крыжовника, 12 туй и 5 маленьких туй вдоль забора, 3 куста сирени и другие; сделана подпорная стенка из натурального камня высотой около 80см, разделяющая две разноуровневые части участка
Статус земли: ИЖC, земли населенных пунктов (Москва)
Дополнительная информация об участке: участок расположен в середине поселка, в 100м - лесной массив. Автоматические откатные ворота, внутренняя парковка из брусчатки на 3-5 авто. Красивый фасадный забор - кирпичный, в стиле дома, на фундаменте, высотой 2.2 м, с ковкой сверху и подсветкой.
Коммуникации
Газ: есть
Э/э: есть (15 кВт)
Водопровод: центральный ( + собственная скважина 60м)
Канализация: централизованная
Интернет: есть (оптоволокно)
Охрана: есть (ЧОП)
Описание инфраструктуры
На территории поселка бизнес класса Согласие 1: кафе, детская и спортивная площадки, в зимнее время каток..Вблизи поселка магазин, ресторан, автомойка, начальная школа, красивейшая деревянная церковь «Покров Божьей матери на Десне». В Жуковке частная школа 1-11 классы "Путь к успеху". В 500 м от поселка расположен оздоровительный комплекс УД Президента РФ "Ватутинки", в котором есть: бассейны (детский и взрослый), финская сауна, римская сауна, диско-бар, пивной бар, спортклуб, услуги стилиста, массажиста, косметолога, парикмахера, лечение: диагностика заболеваний, оздоровительные и корректирующие процедуры, кабинеты физиотерапии и стоматологии. В 2-х км г.Троицк с развитой городской инфраструктурой: школы, дет. сады, магазины, поликлиника, фитнес-центр с бассейном Резиденция.
Хочу посмотретьПоделитесь с друзьями:
Похожие предложения:
Дом, Ямонтово, 512 м2, 12.4 сот
Ольховая, Бунинская аллея - от 5 мин на автоДом, Ямонтово
Калужское ш., 8 км + 2 км
пл. участка: 12.4 сот
пл. дома: 512 м2
меблирован
Спален: 9. С/узлов: 3.



