Продажа дачи, коттеджа, дома на Киевском, Калужском шоссе — цена, описание, фото, расположение на карте.

Дом, Согласие-2 КП

Снят с реализации

Код: 124-141

Особенности объекта

Стильный, выполненный по авторскому проекту, деревянный (бревно) дом полностью готовый к проживанию в известном строго охраняемом коттеджном поселке. Качественная отделка и элементы декора, просторные комнаты и большая площадь остекления. Ванные комнаты полностью оборудованы! Центральные коммуникации, телефон, интернет. Лесной массив.

Расположение

Ссылка на карту
Согласие-2 КП (Фоминское)
Калужское шоссе, от МКАД: 14 км, всего: 17 км
Тип застройки: формирующийся к/п
Метро: Ольховая, Теплый стан, Крёкшино; от 20 мин на авто
Коттеджный поселок «Согласие-2»

Дом

Общая площадь строений: 195 м2
Год постройки дома: 2006
Количество уровней: 2
Спален: 4. С/узлов: 2. Комнат всего: 6.
Опции: терраса; камин.
Материал стен: бревно
Облицовка стен: бревно, декоративный камень
Кровля: цементно-песчаная черепица
Окна: стеклопакеты ПВХ
Стадия готовности: под ключ
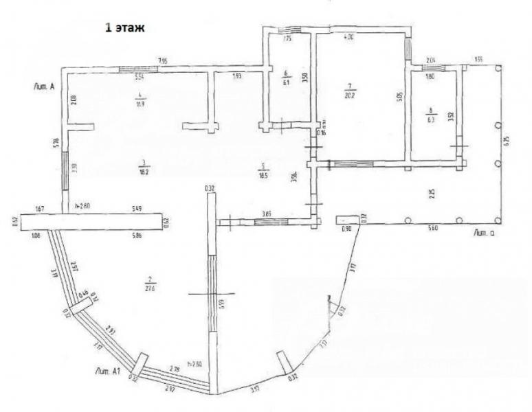
1-ый этаж: терраса 16.5 кв.м, холл 14 кв.м, каминный зал 38 кв.м, жилая комната 16 кв.м, кухня-столовая 33.5 кв.м, с/узел 5 кв.м, котельная 6 кв.м
2-ой этаж: холл 9 кв.м, спальни: 29, 28, 15 и 24 кв.м, с/узел 5 кв.м, лоджия 4 кв.м
Описание внутренней отделки: стены из бревна, в с/узлах отделаны плиткой; полы –паркетная доска, в санузлах и на кухне – плитка с подогревом
Инженерное обеспечение: импортный котел, естественная вентиляция
Дополнительная информация о доме: Индивидуальный проект дома, в отделке использованы элементы декоративного камня, большая площадь остекления; бетонно-ленточный фундамент

Участок

Площадь участка, соток: 9
Тип участка: c высаженными деревьями
Благоустройство участка: газон, сделаны дорожки из плитки, установлены фонарики
Статус земли: земли поселений, ИЖС
Дополнительная информация об участке: участок огорожен сплошным забором из строганных досок высотой 1,9 м на кирпичных столбах и цоколе.

Коммуникации

Газ: есть
Э/э: есть (10 кВт)
Водопровод: центральный
Канализация: централизованная
Телефон: есть
Интернет: есть
Охрана: есть (военизированная)

Описание инфраструктуры

Вблизи поселка два супермаркета, магазин хозтоваров, пункт выдачи Ozon и Wildberries, красивейшая деревянная церковь «Покров Божьей матери на Десне». В Жуковке частная школа 1-11 классы "Путь к успеху". В 2,5 км от поселка расположен оздоровительный комплекс УД Президента РФ "Ватутинки", в котором есть: бассейны (детский и взрослый), финская сауна, римская сауна, диско-бар, бар, спортклуб, услуги стилиста, массажиста, косметолога, парикмахера, лечение: диагностика заболеваний, оздоровительные и корректирующие процедуры, кабинеты физиотерапии/ На выходе из посёлка остановка автобуса до м. Ольховая. В пешей доступности от поселка находится микрорайон "Новые Ватутинки", обладающий полноценной городской инфраструктурой, включающей в себя магазины, банки, рестораны, предприятия бытового обслуживания, детские сады, школы, поликлинику, фитнес - клуб, ТРЦ "Лайнер" и многое другое. Также неподалеку вся инфраструктура наукограда Троицк.

Элементы положит. окружения

Поблизости расположен лесной массив.

Хочу посмотреть


Поделитесь с друзьями:

Собираетесь купить дом, дачу или коттедж на Калужском или Киевском направлении? Обязательно воспользуйтесь услугами компании «Белые Ветры», старейшего оператора загородной недвижимости на Юго-западе Подмосковья!
Рейтинг@Mail.ru