Продажа дачи, коттеджа, дома на Киевском, Калужском шоссе — цена, описание, фото, расположение на карте.

Дом, Согласие-2 КП

Снят с реализации

Коттедж с мебелью у пруда в КП Согласие-2 (Фоминское)

Код: 124-803

Особенности объекта

Красивый светлый дом, с большими общими пространствами, с бассейном. Оригинальная архитектура дома в стиле старой Европы, очень широкая красивая лестница, очень высокие потолки, большое по площади панорамное остекление от пола до потолка, интересные дизайнерские решения в отделке, красивый вид из окон на пруд, хорошее расположение в поселке у пруда и детских площадок. Видео

Расположение

Ссылка на карту
Согласие-2 КП (Фоминское)
Калужское шоссе, от МКАД: 14 км, всего: 17 км
Тип застройки: сформированный к/п
Метро: Ольховая, Теплый стан, Крёкшино; от 20 мин на авто
Коттеджный поселок «Согласие-2»

Дом

Общая площадь строений: 467 м2
Год постройки дома: 2009
Количество уровней: 2
Спален: 4. С/узлов полных: 4. С/узлов неполных: 1. Комнат всего: 7.
Опции: бассейн; сауна; терраса; камин; машиномест крытых: 3, в т.ч. в теплом гараже: 2.
Материал стен: кирпич
Облицовка стен: керамогранитная плитка с элементами керамической мозаики. Плитка рельефная с изображениями - имитация наскальных рисунков
Кровля: металлочерепица
Окна: стеклопакеты ПВХ (двухкамерные под дерево, с раскладкой, имеется витражное остекление от пола)
Стадия готовности: меблирован
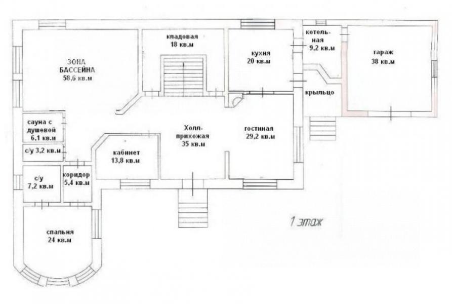
1-ый этаж: холл-прихожая 35 кв.м со вторым светом, кабинет 14 кв.м, гостиная с камином 29 кв.м, кухня 20 кв.м с выходом во двор, спальня 24 кв.м с с/узлом 7 кв.м, зона отдыха с бассейном 58 кв.м (чаша 5.5х4.2 м глубиной 2 м с противотоком), сауна с душевой 6 кв.м, с/узел, котельная 9 кв.м с входом в гараж 38 кв.м
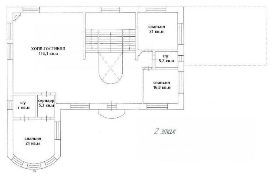
2-ой этаж: холл-гостиная с камином 116 кв.м (установлен бильярд), спальня 17 кв.м, общий с/узел 5 кв.м, спальня 21 кв.м, Главная спальня 24 кв.м с с/узлом 7 кв.м
Описание внутренней отделки: Отделка в современном стиле с интересными дизайнерскими приемами - затемненные зеркала, мозаика, рельефная декоративная штукатурка со вставками под старинные серебряные зеркала, в зоне бассейна на стенах мозаика. Полы отделаны кафелем с водяным подогревом, пробкой. Потолки окрашены и декорированы фигурными карнизами из гипса. Широкая парадная лестница монолитная, с коваными перилами, ступени облицованы кафелем, ширина 1-го пролета 2.9 м, второй пролет двухсторонний шириной по 1.5 м каждый. Камин
Инженерное обеспечение: газовый котел Protherm (Чехия), бойлер газовый на 200 л ACV (Германия), многоступенчатая система очистки воды. В каждом помещение оборудованы вентиляционные каналы, на них установлены вытяжные вентиляторы + дополнительные каналы приточные с клапанами влаги.
Мебель, оборудование: Дом оборудован всем необходимым: мебель, сантехника, оборудование бассейна и кухни, светильники, шторы. Практически вся мебель и оборудование входит в стоимость.
Дополнительные строения: - Беседка-барбекю 4х5 м с печью-мангалом,
- навес для 1-2 а/м с дровницей (на его месте можно пристроить к гаражу квартиру для персонала).
Дополнительная информация о доме: Дом представлен в стиле старой Европы с элементами альпийского стиля и кантри. Фундамент дома и перекрытия монолитные железобетонные, высота потолков 3.9 - 3.1 м, в холле со вторым светом - 7 м

Участок

Площадь участка, соток: 10
Тип участка: парковый с ландшафтом и деревьями
Благоустройство участка: выполнен ландшафтный дизайн: газон, высажены деревья - 2 голубых ели, сосны 11 шт. внутри участка, около 15 - за забором, 5 горных елей, цветники, дорожки выложены из брусчатки, уличное освещение На участке перед домом обустроена площадка из брусчатки на 4-5 а/м
Статус земли: земли населенных пунктов для ИЖС
Дополнительная информация об участке: участок правильной прямоугольной формы в центре поселка у прудов в зоне общественного отдыха. С фасада кирпичный забор с кованой решеткой и коваными воротами, сбоку и сзади деревянный забор на кирпичных столбах с цоколем высотой 3 м

Коммуникации

Газ: есть (магистральный)
Э/э: есть (15 кВт)
Водопровод: центральный
Канализация: централизованная
Телефон: есть (МГТС)
Интернет: есть (высокоскоростной, спутниковое ТВ)
Охрана: есть (КПП, ЧОП)

Описание инфраструктуры

Вблизи поселка два супермаркета, магазин хозтоваров, пункт выдачи Ozon и Wildberries, красивейшая деревянная церковь «Покров Божьей матери на Десне». В Жуковке частная школа 1-11 классы "Путь к успеху". В 2,5 км от поселка расположен оздоровительный комплекс УД Президента РФ "Ватутинки", в котором есть: бассейны (детский и взрослый), финская сауна, римская сауна, диско-бар, бар, спортклуб, услуги стилиста, массажиста, косметолога, парикмахера, лечение: диагностика заболеваний, оздоровительные и корректирующие процедуры, кабинеты физиотерапии/ На выходе из посёлка остановка автобуса до м. Ольховая. В пешей доступности от поселка находится микрорайон "Новые Ватутинки", обладающий полноценной городской инфраструктурой, включающей в себя магазины, банки, рестораны, предприятия бытового обслуживания, детские сады, школы, поликлинику, фитнес - клуб, ТРЦ "Лайнер" и многое другое. Также неподалеку вся инфраструктура наукограда Троицк.

Элементы положит. окружения

Поселок граничит с лесным массивом, в поселке 2 собственных пруда.

Хочу посмотреть


Поделитесь с друзьями:

Собираетесь купить дом, дачу или коттедж на Калужском или Киевском направлении? Обязательно воспользуйтесь услугами компании «Белые Ветры», старейшего оператора загородной недвижимости на Юго-западе Подмосковья!
Рейтинг@Mail.ru