Дом, Согласие-2 КП
Код: 124-806
Особенности объекта
Красивый дом в классическом стиле с дорогим внутренним убранством в стиле Барокко с использованием эксклюзивных материалов. Художественный кафель, эксклюзивный ламинат со структурой "змеиной кожи", роспись на стенах, художественная ковка, элементы лепнины покрыты сусальным золотом, камин из полудрагоценного камня - уральского змеевика. Оборудована система центрального пылесоса. Зона бассейна с сауной, бильярдная (12 футов), тренажерный зал. С веранды 2-ого этажа прекрасный вид на пруд. Коттедж расположен в современном охраняемом коттеджном поселке со всеми центральными коммуникациями.
Расположение
Ссылка на карту
Согласие-2 КП (Фоминское)
Калужское шоссе, от МКАД: 14 км, всего: 17 км
Тип застройки: сформированный к/п
Метро: Ольховая, Теплый стан, Крёкшино; от 20 мин на авто
Коттеджный поселок «Согласие-2»
Дом
Общая площадь строений: 548 м2
Год постройки дома: 2008
Количество уровней: 3
Спален: 4. С/узлов: 4. Комнат всего: 11.
Опции: бассейн; сауна; терраса; камин; машиномест крытых: 2, в т.ч. в теплом гараже: 2.
Материал стен: кирпич
Облицовка стен: штукатурка и элементы внешнего декора из дикого камня (песчаник)
Кровля: металлочерепица
Окна: стеклопакеты деревянные (двухкамерные)
Стадия готовности: меблирован
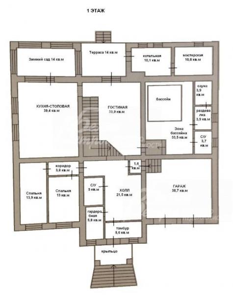
1-ый этаж: Крыльцо 8 кв.м, прихожая 6 кв.м, гардеробная 6 кв.м, с/узел 5 кв.м, холл 21.5 кв.м, гостиная 40 кв.м с камином из натурального камня, со вторым светом, лестницей на второй этаж и с выходом на террасу 14 кв.м, кухня-столовая 39 кв.м с выходом в зимний сад 14 кв.м, две спальни 13 кв.м и 14 кв.м, зона бассейна 33.5 кв.м с сауной, душевой и раздевалкой, котельная 10 кв.м с отдельным входом с улицы и мастерская 11 кв.м, гараж на 2 а/м 39 кв.м
2-ой этаж: холл-галерея 19.5 кв.м со вторвм светом, выход на крытую террасу 44 кв.м, кабинет 23 кв.м, спальня 21.5 кв.м с с/узлом 5 кв.м, спальня 30 кв.м с с/узлом 8.5 кв.м, с гардеробной и балконом 10.6 кв.м
3-ий этаж: мансарда - холл 9 кв.м, кабинет 24.5 кв.м, тренажерный зал 31.5 кв.м, бильярдная 81 кв.м
Описание внутренней отделки: Дорогая отделка с использованием эксклюзивных материалов. Декоративная штукатурка, венецианка, обои (Англия), шелкография, роспись на стенах (в бассейне), много декоративных элементов из лепнины, мансардный этаж отделан деревом, в бассейне искусственный камень. Художественный кафель и керамогранит с водяным подогревом, эксклюзивный ламинат со структурой "змеиной кожи". Потолки с большим количеством лепнины, кое-где покрыта сусальным золотом, ручная роспись, карнизы - плитка с рисунками
Инженерное обеспечение: Два газовых котла Baxi, газовый водонагреватель Baxi, многоступенчатая система подготовки воды; в зоне бассейна принудительная система вентиляции, в остальных помещениях естественная приточно-вытяжная, установлен центральный пылесос
Мебель, оборудование: Дом полностью меблирован: кухонный гарнитур (Италия) со столешницей из искусственного камня, встроенная бытовая техника марки SMEG. В доме очень много импортной дизайнерской мебели и дорогой антикварной. Камин в гостиной из полудрагоценного камня (змеевик уральский).
Бильярдный стол 12 футов - в мансарде. На террасах уличная мебель - гостевые гарнитуры.
Дополнительные строения: - Летняя беседка с мангалом.
- Детский игровой домик.
- Вольер для собаки.
Дополнительная информация о доме: Внешне дом выстроен в классическом стиле, интерьер - элементы стилей Барокко и ар-деко. Фундамент дома ленточный ж/б монолит, ж/б монолитные перекрытия, высота потолков на 1-2 этажах - 3.1 м, второй свет в гостиной - 6.5 м, мансарда - 3.05 м
Участок
Площадь участка, соток: 15
Тип участка: парковый со взрослыми деревьями
Благоустройство участка: высажены более 50 елей и сосен выше 4 м, около 10 голубых елей, 2 плакучие ивы, французский огородик (грядки подняты так, чтобы не надо было нагибаться), на участке садовые фигуры (олень, львы перед главным входом), дорожки выложены камнем, газон, уличное освещение, сделан дренаж
Статус земли: земли населенных пунктов, для ИЖС
Дополнительная информация об участке: участок трапециевидной формы в центре поселка, с фасада кованный забор на цоколе и кирпичных столбах с полупрозрачным поликарбонатом, сзади металлический профиль с цоколем 4 м, по бокам металлический профиль с цоколем 2 м
Коммуникации
Газ: есть (магистральный)
Э/э: есть (20 кВт)
Водопровод: центральный
Канализация: централизованная
Телефон: есть (МГТС)
Интернет: есть (выделенная линия, Дц антенна+спутниковая)
Охрана: есть (КПП, ЧОП)
Описание инфраструктуры
Вблизи поселка два супермаркета, магазин хозтоваров, пункт выдачи Ozon и Wildberries, красивейшая деревянная церковь «Покров Божьей матери на Десне». В Жуковке частная школа 1-11 классы "Путь к успеху". В 2,5 км от поселка расположен оздоровительный комплекс УД Президента РФ "Ватутинки", в котором есть: бассейны (детский и взрослый), финская сауна, римская сауна, диско-бар, бар, спортклуб, услуги стилиста, массажиста, косметолога, парикмахера, лечение: диагностика заболеваний, оздоровительные и корректирующие процедуры, кабинеты физиотерапии/ На выходе из посёлка остановка автобуса до м. Ольховая. В пешей доступности от поселка находится микрорайон "Новые Ватутинки", обладающий полноценной городской инфраструктурой, включающей в себя магазины, банки, рестораны, предприятия бытового обслуживания, детские сады, школы, поликлинику, фитнес - клуб, ТРЦ "Лайнер" и многое другое. Также неподалеку вся инфраструктура наукограда Троицк.
Элементы положит. окружения
Лесной массив расположен в 300 метрах, в поселке зона отдыха со своим небольшим прудом. Фасадные окна дома выходят на зону отдыха поселка. Тихое место.
Хочу посмотретьПоделитесь с друзьями:
Похожие предложения:
Дом, Валуевская слобода к/п (Валуево), 502 м2, 12.5 сот
Калужское шоссе, от МКАД: 7+6 км
Филатов луг, Ольховая - от 17 мин на автоДом, Валуевская слобода к/п
Киевское ш., 7 км + 4 км
пл. участка: 12.5 сот
пл. дома: 502 м2
под ключ
Спален: 5. С/узлов: 6.
Дом, Чистые Ключи КП (Милюково), 535 м2, 15 сот
Саларьево, Рассказовка - от 15 мин на автоДом, Чистые Ключи КП
Киевское ш., 21 км + 5 км
пл. участка: 15 сот
пл. дома: 535 м2
меблирован
Спален: 5. С/узлов: 3.



Дом, Согласие-2 КП (Фоминское), 647 м2, 15 сот
Ольховая, Теплый стан - от 20 мин на автоДом, Согласие-2 КП
Калужское ш., 14 км + 3 км
пл. участка: 15 сот
пл. дома: 647 м2
меблирован
Спален: 5. С/узлов: 6.
Дом, Елизарово Парк КП (Каменка), 499 м2, 15 сот
Рассказовка, Саларьево - от 24 мин на автоДом, Елизарово Парк КП
Киевское ш., 21 км + 7 км
пл. участка: 15 сот
пл. дома: 499 м2
под ключ
Спален: 5. С/узлов: 3.


Дом, Чистые Ключи КП (Милюково), 500 м2, 15 сот
Саларьево, Рассказовка - от 15 мин на автоДом, Чистые Ключи КП
Киевское ш., 21 км + 5 км
пл. участка: 15 сот
пл. дома: 500 м2
меблирован
Спален: 4. С/узлов: 3.




















