Продажа дачи, коттеджа, дома на Киевском, Калужском шоссе — цена, описание, фото, расположение на карте.

Дом, Согласие-2 КП

Снят с реализации

Дом под отделку 268 кв.м. на участке 11.5 соток в коттеджном поселке Согласие-2

Код: 124-867

Особенности объекта

Небольшой по площади, но стильный дом, с очень функциональной, почти идеальной планировкой в известном охраняемом коттеджном поселке с развитой инфраструктурой.

Расположение

Ссылка на карту
Согласие-2 КП (Фоминское)
Калужское шоссе, от МКАД: 14 км, всего: 17 км
Тип застройки: обжитой к/п
Метро: Ольховая, Теплый стан, Крёкшино; от 20 мин на авто
Коттеджный поселок «Согласие-2»

Дом

Общая площадь строений: 268 м2
Год постройки дома: 2008
Количество уровней: 2
Спален: 4. С/узлов: 3. Комнат всего: 5.
Опции: терраса; камин (возможен); машиномест крытых: 2, в т.ч. в теплом гараже: 2; панорамное остекление, второй свет.
Материал стен: кирпич
Облицовка стен: фактурная штукатурка
Кровля: металлочерепица
Окна: стеклопакеты деревянные
Стадия готовности: под чистовую отделку
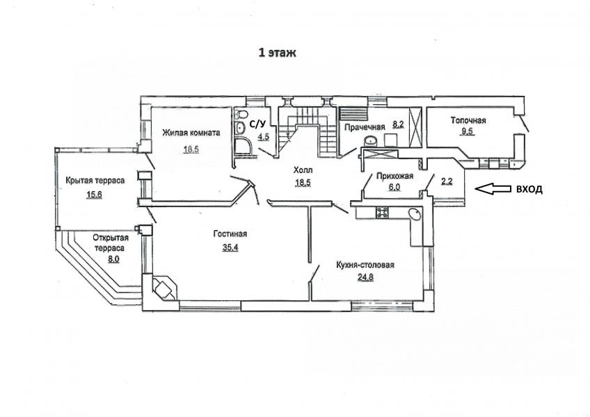
1-ый этаж: гараж на 2 а/м 34 кв.м (вход с улицы), котельная 10 кв.м; крыльцо 2 кв.м; прихожая 6 кв.м, постирочная 8 кв.м, спальня 19 кв.м, санузел 5 кв.м, кухня-столовая 25 кв.м, гостиная 35 кв.м с выходом на крытую террасу 15.6 кв.м;
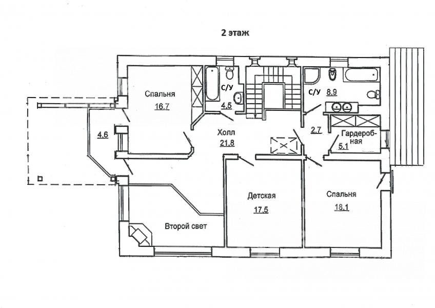
2-ой этаж: холл 22 кв.м, спальня хозяев 18 кв.м с гардеробной 5 кв.м и санузлом 9 кв.м, 2 спальни (18 и 17 кв.м с балконом 5 кв.м), санузел 4.5 кв.м;
Описание внутренней отделки: стены оштукатурены, сделана черновая стяжка пола; лестничный марш ж/б монолитный; в дом заведены канализация (разведена по стоякам), вода, электричество. Отопление: сделаны отводы в котельной и закольцовано на одной батареи. Установлена входная металлическая дверь.
Инженерное обеспечение: Газовый котел BUDERUS на 52 кВт Бойлер косвенного нагрева BUDERUS на 200 л естественная приточно-вытяжная вентиляция; установлены автоматические гаражные ворота
Дополнительная информация о доме: фундамент ж/б монолитный ленточный, перекрытия межэтажные ж/б плиты и монолитные, даже на чердак; дом в классическом архитектурном стиле;

Участок

Площадь участка, соток: 11.5
Тип участка: без деревьев
Благоустройство участка: выполнен дренаж по участку и вокруг дома, а также разведено электричество по участку для уличного освещения и к автоматическим воротам и домофону
Статус земли: земли населенных пунктов, для индивидуального жилищного строительства
Дополнительная информация об участке: участок вытянутой прямоугольной формы огорожен с двух сторон металлическим забором с бетонным цоколем, с других двух сторон кирпичным забором, расположен крайним к поселку Росинтер и имеет два заезда (через поселок Согласие-2 и Росинтер)

Коммуникации

Газ: есть (магистральный)
Э/э: есть (15 кВт заведено на участок)
Водопровод: центральный (подключено в дом)
Канализация: централизованная (подключено в дом)
Интернет: есть (оптиволокно)
Охрана: есть (КПП ЧОП + Видеонаблюдение по поселку)

Описание инфраструктуры

Вблизи поселка два супермаркета, магазин хозтоваров, пункт выдачи Ozon,, автомойка, , красивейшая деревянная церковь «Покров Божьей матери на Десне». В Жуковке частная школа 1-11 классы "Путь к успеху". В 2,5 км от поселка расположен оздоровительный комплекс УД Президента РФ "Ватутинки", в котором есть: бассейны (детский и взрослый), финская сауна, римская сауна, диско-бар, пивной бар, спортклуб, услуги стилиста, массажиста, косметолога, парикмахера, лечение: диагностика заболеваний, оздоровительные и корректирующие процедуры, кабинеты физиотерапии/ На выходе из посёлка остановка автобуса 422 до м. Ольховая. В 4 км микрорайон "Новые Ватутинки Центральные" со всей инфраструктурой (школы, поликлиника, супермаркеты, кафе, фитнес - клуб, ТРЦ "Лайнер" )

Элементы положит. окружения

В поселке есть искусственные озера, рядом детский центр. Все соседи построились.

Хочу посмотреть


Поделитесь с друзьями:

Собираетесь купить дом, дачу или коттедж на Калужском или Киевском направлении? Обязательно воспользуйтесь услугами компании «Белые Ветры», старейшего оператора загородной недвижимости на Юго-западе Подмосковья!
Рейтинг@Mail.ru