Дом, Согласие-2 КП
Код: 124-987
Особенности объекта
Оригинальный проект дома в стиле "шале". Компактный и очень функциональный. Стильная двухсветная гостиная, Главная спальня на 1-ом этаже со своей ванной и выходом на участок, на 2-ом этаже - три двухуровневых спальни. На участке с богатым ландшафтом баня из бруса с просторной комнатой отдыха и большой зоной патио, гараж с квартирой для персонала. Видео дома
Расположение
Ссылка на карту
Согласие-2 КП (Фоминское)
Калужское шоссе, от МКАД: 14 км, всего: 17 км
Тип застройки: сформированный к/п
Метро: Ольховая, Теплый стан, Крёкшино; от 20 мин на авто
Коттеджный поселок «Согласие-2»
Дом
Общая площадь строений: 295 м2
Год постройки дома: 2005
Количество уровней: 2
Спален: 4. С/узлов: 3. Комнат всего: 5.
Опции: баня; квартира для персонала; терраса; камин; машиномест крытых: 4, в т.ч. в теплом гараже: 2; парная.
Материал стен: крупноформатный керамический поризованный кирпич Rauf
Облицовка стен: облицовочный кирпич (пр-во Эстония)
Кровля: мягкая (Катепал)
Окна: стеклопакеты деревянные (сосна)
Стадия готовности: под ключ (частично меблирован)
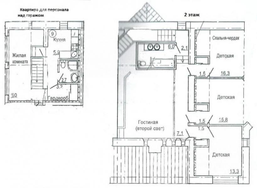
1-ый этаж: гараж на 2 автомобиля 32 кв.м, прихожая 8 кв.м, кладовая для продуктов 8 кв.м, с/узел, постирочная 6 кв.м, кухня 16 кв.м, гостиная со вторым светом 41 кв.м и обеденной зоной 15 кв.м, главная спальня 18.6 кв.м c с/узлом 14.5 кв.м и выходом на участок; котельная 6 кв.м.
2-ой этаж: галерея над гостиной, три детские спальни с антресолями 16 кв.м, 15.8 кв.м и 13 кв.м, с/узел 6 кв.м.
Квартира для персонала над гаражом: жилая комната/спальня 16 кв.м, кухня 6 кв.м, с/узел, кладовая (отдельный вход с улицы и из гаража).
Описание внутренней отделки: стены окрашены и отделаны декоративной штукатуркой; полы - плитка с подогревом, пробка; потолки оштукатурены и окрашены; двери деревянные, подоконники - мрамор; лестничный марш монолитный, отделан плиткой, перила кованые
Инженерное обеспечение: котел Mora (Чехия), бойлер OSO (Норвегия); многоступенчатая система очистки воды, все коммуникации разведены по дому; счетчики воды и электричества, сигнализация
Мебель, оборудование: В кухне установлен кухонный гарнитур со встроенной техникой, столовый гарнитур; в гостиной шторы, светильники; в санузлах установлена импортная сантехника. Здание бани полностью оборудовано, в том числе мебелью кухонной и для отдыха.
Дополнительные строения: Баня под ключ с патио 80 кв.м (кухня, комната отдыха, бильярдная, парная, помывочная с душевой, с/узел; патио-веранда).
Дополнительная информация о доме: Дом выстроен и отделан в стиле "шале". Фундамент дома - ленточный монолит, ж/б перекрытия, высота потолков 3 метра.
Участок
Площадь участка, соток: 12.3
Тип участка: с деревьями и ландшафтом
Благоустройство участка: выполнен ландшафтный дизайн: высажено более 30 деревьев, организованы дорожки, освещение, полив участка, сделан дренаж; на участке свой декоративный пруд.
Статус земли: земли поселений, для ИЖС
Дополнительная информация об участке: участок правильной формы, расположен в центре поселка, огорожен деревянным вентилируемым забором на кирпичных столбах и ж/б фундаменте
Коммуникации
Газ: есть (магистральный)
Э/э: есть (15 кВт)
Водопровод: центральный
Канализация: централизованная
Телефон: есть
Интернет: есть (оптиковолокно; спутниковая антенна ТВ)
Охрана: есть (КПП на въезде в поселок)
Описание инфраструктуры
Вблизи поселка два супермаркета, магазин хозтоваров, пункт выдачи Ozon,, автомойка, , красивейшая деревянная церковь «Покров Божьей матери на Десне». В Жуковке частная школа 1-11 классы "Путь к успеху". В 2,5 км от поселка расположен оздоровительный комплекс УД Президента РФ "Ватутинки", в котором есть: бассейны (детский и взрослый), финская сауна, римская сауна, диско-бар, пивной бар, спортклуб, услуги стилиста, массажиста, косметолога, парикмахера, лечение: диагностика заболеваний, оздоровительные и корректирующие процедуры, кабинеты физиотерапии/ На выходе из посёлка остановка автобуса 422 до м. Ольховая. В 4 км микрорайон "Новые Ватутинки Центральные" со всей инфраструктурой (школы, поликлиника, супермаркеты, кафе, фитнес - клуб, ТРЦ "Лайнер" )
Элементы положит. окружения
Лесной массив расположен в 300 метрах, 1.5 км до реки Десна. Очень тихое место.
Хочу посмотретьПоделитесь с друзьями:
Похожие предложения:
Дом, Фортопс КП (Былово), 328 м2, 15 сот
Ольховая, Теплый стан - от 23 мин на автоДом, Фортопс КП
Калужское ш., 24 км + 2 км
пл. участка: 15 сот
пл. дома: 328 м2
меблирован
Спален: 5. С/узлов: 4.
Дом, Две Поляны к/п (Птичное), 310 м2, 15 сот
Киевское шоссе, от МКАД: 21+9 км
Ольховая, Теплый стан - от 26 мин на автоДом, Две Поляны к/п
Калужское ш., 17 км + 7 км
пл. участка: 15 сот
пл. дома: 310 м2
меблирован
Спален: 4. С/узлов: 4.

Дом, Фортопс КП (Былово), 328 м2, 15 сот
Ольховая, Теплый стан - от 23 мин на автоДом, Фортопс КП
Калужское ш., 24 км + 2 км
пл. участка: 15 сот
пл. дома: 328 м2
под ключ
Спален: 5. С/узлов: 4.











