Продажа дачи, коттеджа, дома на Киевском, Калужском шоссе — цена, описание, фото, расположение на карте.

Дом, Солнечный Город к/п

Снят с реализации

Дом 332 кв.м под ключ в КП "Солнечный город"

Код: 511-419

Особенности объекта

Красивый современный проект, абсолютно новый дом с качественным ремонтом и отличной современной планировкой. Сформированный коттеджный поселок с центральными коммуникациями 

Расположение

Ссылка на карту
Солнечный Город к/п (Лужки)
Калужское шоссе, от МКАД: 29 км, всего: 38 км
Киевское шоссе, от МКАД: 32 км, всего: 48 км
Тип застройки: формирующийся к/п
Метро: Ольховая, Теплый стан, Бунинская аллея; от 35 мин на авто
Коттеджный поселок «Солнечный Город»

Дом

Общая площадь строений: 232 м2
Год постройки дома: 2012
Количество уровней: 2
Спален: 4. С/узлов полных: 3. С/узлов неполных: 1. Комнат всего: 6.
Опции: терраса; камин.
Материал стен: газосиликатные блоки+ утеплитель " полистирол"
Облицовка стен: штукатурка "короед" + декоративный камень на цоколе и по фасаду
Кровля: металлочерепица
Окна: стеклопакеты ПВХ
Стадия готовности: под ключ
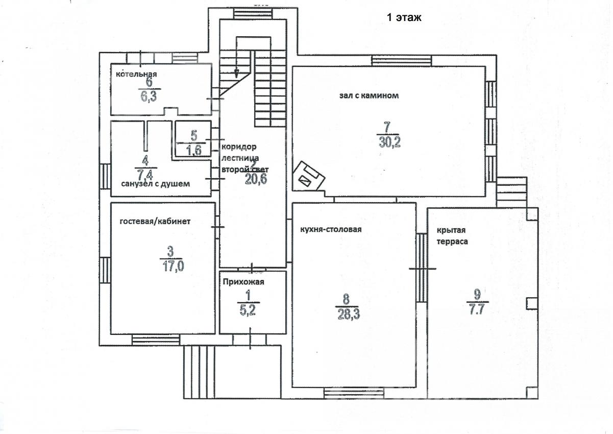
1-ый этаж: Прихожая, коридор 20.6 кв.м, санузел, кабинет 17 кв.м, санузел 7.4 кв.м, котельная 6 кв.м, гостиная с камином 30 кв.м, кухня-столовая 28 кв.м, терраса 7.7 кв.м.
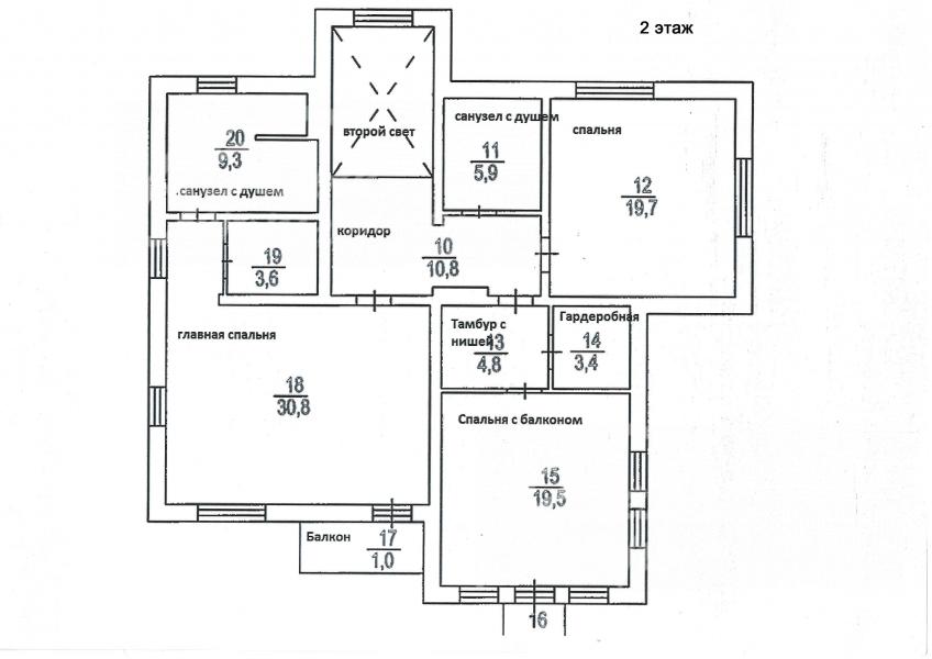
2-ой этаж: Спальня 19.7 кв.м, главная спальня 31 кв.м с балконом, спальня с балконом 19.5 кв.м, тамбур, гардеробная, коридор 11 кв.м, санузел 9 кв.м, санузел 6 кв.м.
Описание внутренней отделки: Стены окрашены краской марки Tikkurila, потолки подвесные матовые, полы в комнатах отделаны ламинатом, в санузлах плиткой (теплый пол). Лестничный марш деревянный ( лиственница). Вся сантехника установлена. Все коммуникации разведены под ключ.
Инженерное обеспечение: В доме установлен котел марки Kiturami (пр-ва Корея) на 35 кВт. Вентиляция принудительная, система очистки воды установлена.
Дополнительная информация о доме: Фундамент бетонная лента глубиной 60 см + сваи на глубину 1.5 м через каждый метр. Перекрытия ж/б монолитные. Высота потолков от 3 м.

Участок

Площадь участка, соток: 10
Тип участка: без деревьев
Благоустройство участка: Участок выровнен, разбит газон.
Статус земли: Земли населенных пунктов для ИЖС
Дополнительная информация об участке: Участок расположен ближе к лесному краю поселка, в тупике, огражден забором из металлопрофиля на столбах с кирпичным основанием, облицован декоративным камнем, калитка украшена сварной декоративной решеткой.

Коммуникации

Газ: есть (магистральный)
Э/э: есть (15 кВт)
Канализация: централизованная
Телефон: есть
Интернет: есть
Охрана: есть

Описание инфраструктуры

Жилой, охраянемый коттеджный поселок Солнечный город. На территории поселка сфальтированные дороги с ливневой канализацией и яркое освещение, профессиональная охрана, круглосуточно патрулирующая территорию, посты охраны и современная система видеонаблюдения. Благоустроенная прогулочная зона с мощеными дорожками и уютными скамейками. На территории поселка: загородный клуб "Лачи" предлагает широкий спектр услуг: от комфортабельного гостиничного комплекса с необычными домиками-перевертышами до детского развлекательного комплекса "Корабль", луна-парка, веревочного парка и лазертага. Для любителей спорта – спортивные площадки, а для проведения мероприятий – шатры, бары и рестораны. Многофункциональном комплексе "NEШ спорт", где есть теннисный корт, фитнес-клуб и секции по футболу, баскетболу, каратэ и другим видам спорта. А для удобства автовладельцев на въезде работает автосервис. Всего в полутора километрах находится Костина Ферма, где можно полюбоваться на мини-лошадей. А в соседнем поселке "Шишкин Лес", до которого всего 15 минут езды, доступна вся городская инфраструктура: детский сад и школа, поликлиника, супермаркеты, рестораны, банки, аптеки, Детская Художественная школа Бабенская Игрушка, Михайлово-Ярцевская детская школа искусств, Церковь собора Новомучеников Подольских, конный клуб Элитар. В 20 минутах езды расположен город Апрелевка с развитой инфраструктурой и Красная Пахра, предлагающие еще больше возможностей для комфортной жизни. Это место, где вы сможете наслаждаться тишиной и спокойствием загородной жизни, не отказываясь от преимуществ города.

Хочу посмотреть


Поделитесь с друзьями:

Собираетесь купить дом, дачу или коттедж на Калужском или Киевском направлении? Обязательно воспользуйтесь услугами компании «Белые Ветры», старейшего оператора загородной недвижимости на Юго-западе Подмосковья!
Рейтинг@Mail.ru