Продажа дачи, коттеджа, дома на Киевском, Калужском шоссе — цена, описание, фото, расположение на карте.

Дом, Сосновый бор к/п

Снят с реализации

Дом 417.5 кв.м под финишную отделку в КП Сосновый бор

Код: 328-911

Особенности объекта

Дом премиум класса по оригинальному проекту - очень высокие потолки и панорамные окна высотой 2.70 м, красивая архитектура в классическом стиле.

Расположение

Ссылка на карту
Сосновый бор к/п (Кленово)
Варшавское шоссе, от МКАД: 32 км, всего: 35 км
Калужское шоссе, от МКАД: 29 км, всего: 45 км
Тип застройки: формирующийся к/п
Метро: Подольск, Ольховая, Теплый стан; от 35 мин на авто
Коттеджный поселок «Сосновый Бор»

Дом

Общая площадь строений: 418 м2
Год постройки дома: 2013
Количество уровней: 3
Спален: 5. С/узлов: 3. Комнат всего: 6.
Опции: терраса; камин; холодный подвал; машиномест крытых: 2, в т.ч. в теплом гараже: 2.
Материал стен: кирпич, утеплитель
Облицовка стен: штукатурка, окраска
Кровля: мягкая
Окна: стеклопакеты деревянные (ширина окон 2.5м, высота 2.7м)
Стадия готовности: под финишную отделку
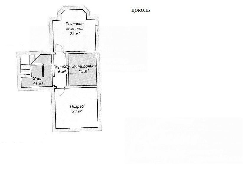
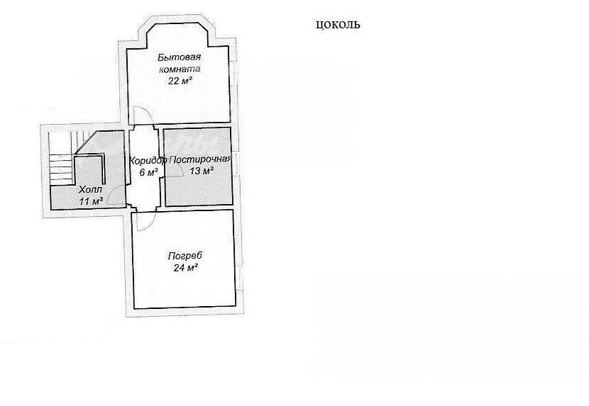
Цоколь: винный погреб, прачечная, мастерские 76 кв.м
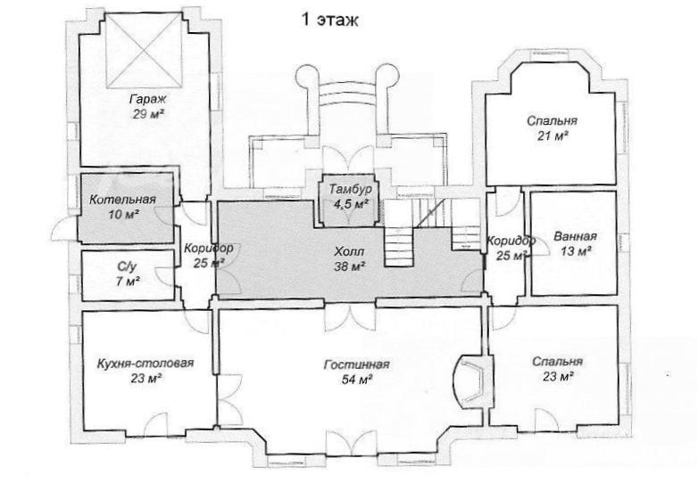
1-ый этаж: тамбур 4.5 кв.м, гостиная 54 кв.м, кухня-столовая 23 кв.м, холл со вторым светом 38 кв.м, спальня 21 кв.м, с/узел 13 кв.м, с/узел 7 кв.м, спальня 23 кв.м, котельная 10 кв.м, гараж 29 кв.м
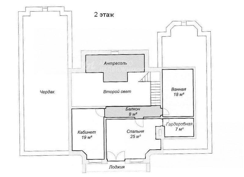
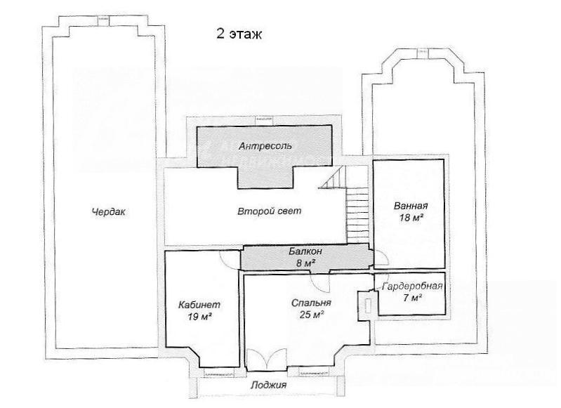
2-ой этаж: кабинет 19 кв.м, спальня 25 кв.м, с/узел 18 кв.м, гардеробная 7 кв.м, балкон 8 кв.м
Описание внутренней отделки: Стены и потолки выровнены и покрашены, на полу стяжка. Установлена временная деревянная лестница. Коммуникации по дому разведены.
Дополнительная информация о доме: Дом выстроен в Ретро стиле - русская дворянская классика. Фундамент монолитный, перекрытия - плиты. Высота потолков на 1 этаже 3.5 м, на 2 этаже 3 м, в подвале 3 м.

Участок

Площадь участка, соток: 25
Тип участка: лесной
Благоустройство участка: участок с ландшафтным дизайном
Статус земли: сельскохозяйственного назначения, для дачного строительства
Дополнительная информация об участке: участок расположен в центре поселка, огорожен деревянным забором на каменных столбах.

Коммуникации

Газ: есть
Э/э: есть (15 кВт)
Водопровод: центральный
Канализация: централизованная
Телефон: есть
Интернет: есть
Охрана: есть (пропускная система, патрулирование)

Описание инфраструктуры

В поселке действует собственная служба эксплуатации, есть детский игровой комплекс, спортивная площадка, устроены парковые рекреационные зоны, широкие освещенные дороги, выложенные брусчаткой. Поселок строго охраняемый, въезд в поселок через КПП, территория патрулируется 24 часа в сутки. В 5 км от поселка расположены: спортивный комплекс с бассейном, баней, SPA (Вороново, дер. Ясенки); база олимпийского резерва. В 10 км полная городская инфраструктура г. Подольск: школы, детские сады, спортивные центры, торговые центры, магазины, рестораны, аптеки, банки, кинотеатр.

Элементы положит. окружения

Поселок расположен в сосновом лесу. В 5 км от поселка расположены: спортивный комплекс с бассейном, баней, SPA, массажем (Вороново, дер. Ясенки); база олимпийского резерва.

Хочу посмотреть


Поделитесь с друзьями:

Собираетесь купить дом, дачу или коттедж на Калужском или Киевском направлении? Обязательно воспользуйтесь услугами компании «Белые Ветры», старейшего оператора загородной недвижимости на Юго-западе Подмосковья!
Рейтинг@Mail.ru