Продажа дачи, коттеджа, дома на Киевском, Калужском шоссе — цена, описание, фото, расположение на карте.

Дом, Страдань дер.

Снят с реализации

Дом в деревне Страдань, 25 км по Калужскому шоссе

Код: 304-303

Особенности объекта

Новый каменный дом, теплый, строился «для себя», выполнен "под финишную отделку". Из окон открывается чудесный вид на окрестности, лесной массив. До реки Пахра 5 минут пешком, в 10 минутах ходьбы расположены пруды, зоопарк, Святой источник. Вокруг - обжитая коттеджная застройка (земля выделялась профессуре).

Расположение

Ссылка на карту
Страдань дер.
Калужское шоссе, от МКАД: 25 км, всего: 26 км
Тип застройки: коттеджная застройка
Метро: Коммунарка, Теплый стан, Филатов луг; от 25 мин на авто

Дом

Общая площадь строений: 270 м2
Год постройки дома: 2011
Количество уровней: 3
Спален: 3. С/узлов: 2. Комнат всего: 5.
Опции: терраса; холодный подвал; вывод под камин.
Материал стен: пеноблоки+утеплитель
Облицовка стен: облицовочный кирпич, цоколь - натуральный камень
Кровля: мягкая ("Тегола" - пр-во Финляндии)
Окна: стеклопакеты ПВХ ("КВЕ Эксперт" тонированные, с раскладкой)
Стадия готовности: под финишную отделку
Цоколь: холл 20 кв.м, котельная 13.5 кв.м, 2 помещения свободного назначения 24 кв.м и 29.6 кв.м
1-ый этаж: крытое крыльцо, прихожая 8 кв.м, гардеробная 5 кв.м, с/узел 6 кв.м, холл 21 кв.м, кухня-столовая 30.5 кв.м с эркером, гостиная 25.5 кв.м с выводом под камин и выходом на террасу 23 кв.м
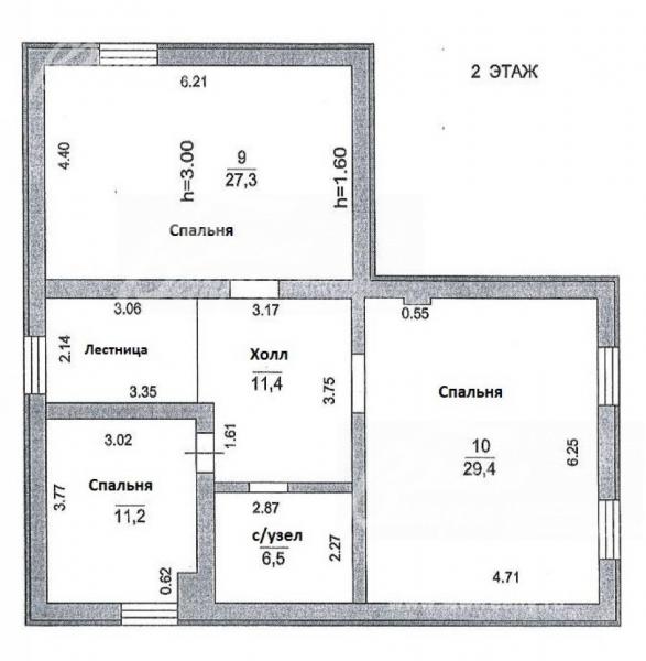
2-ой этаж: холл 11.5 кв.м, 3 спальни - 27 кв.м, 29.5 кв.м и 11 кв.м, с/узел 6.5 кв.м
Описание внутренней отделки: стены оштукатурены и ошпаклеваны; на полах - утеплитель "Венти Баттс Д" - 20 см, бетонная стяжка с встроенными теплыми полами; потолки на 2м этаже оштукатурены. Отопление - установлены радиаторы, электричество разведено (розетки), выполнена разводка стояков канализации. Лестничный марш железобетонный. Установлены утепленные металлические входные двери.
Инженерное обеспечение: счетчики электричества. Резервное отопление - смонтированы две керамические дымоходные системы (Германия) с вентиляционными каналами для микроклимата дома, возможно подсоединение печей, каминов и т.д.
Дополнительная информация о доме: Дом в классическом стиле. Фундамент железобетонный ленточный, глубиной 190см + 80см цоколь, сделана прифундаментная система дренажа, а также отмостки.

Участок

Площадь участка, соток: 15
Благоустройство участка: двухуровневый участок, организовано два заезда (с двух стон)
Статус земли: земли населённых пунктов, для ИЖС
Дополнительная информация об участке: участок прямоугольной формы, огорожен забором из металлопрофиля на кирпичных оштукатуренных столбах, с бетонным фундаментом по всему периметру.

Коммуникации

Газ: есть (есть Тех.условия на подключение, точка подключения- на границе участка)
Э/э: есть (15 кВт, 3хфазное)
Водопровод: индивид. скважина (заведено в дом)
Телефон: возможно подключение
Интернет: возможно подключение

Элементы положит. окружения

Поблизости расположен лесной массив, до реки Пахра 5 минут пешком, в 10 минутах ходьбы расположены пруды, зоопарк, Святой источник. Очень живописный вид на окрестности.

Хочу посмотреть


Поделитесь с друзьями:

Собираетесь купить дом, дачу или коттедж на Калужском или Киевском направлении? Обязательно воспользуйтесь услугами компании «Белые Ветры», старейшего оператора загородной недвижимости на Юго-западе Подмосковья!
Рейтинг@Mail.ru