Дом, Светлый к/п
Код: 117-311
Особенности объекта
Загородный дом премиального класса в стиле "шале", построен по авторскому проекту известного архитектора МАРХИ. Дом гармонично вписан в большой красивый лесной участок с ландшафтом. В доме отличный бассейн, очищаемый серебром с римским входом, сауна из канадского кедра, бильярд, кинозал. Элитная отделка и мебель, современная инженерия. На участке также есть дом для персонала. Дом расположен в элитном камерном обжитом коттеджном поселке между Калужским и Киевским шоссе. Также можно заезжать с Боровского и Минского шоссе (по платной дороге).
Дом строился для себя из качественных импортных материалов, имеет функциональную планировку. Видео дома
Расположение
Ссылка на карту
Светлый к/п (Губцево)
Калужское шоссе, от МКАД: 17 км, всего: 22 км
Тип застройки: обжитой к/п
Метро: Ольховая, Теплый стан, Крёкшино; от 26 мин на авто
Коттеджный поселок «Светлый»
Дом
Общая площадь строений: 630 м2 (Дом 595 кв.м+дом персонала 35 кв.м)
Год постройки дома: 2012
Количество уровней: 3
Спален: 4. С/узлов полных: 4. С/узлов неполных: 2. Комнат всего: 10.
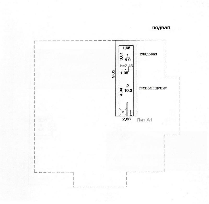
Опции: бассейн; сауна; квартира для персонала; терраса; камин; холодный подвал; машиномест крытых: 2, в т.ч. в теплом гараже: 2; русский бильярд, кинозал,оружейная комната.
Материал стен: кирпич (керамический, с утеплителем производства США)
Облицовка стен: оштукатурен
Кровля: цементно-песчаная черепица (BRAAS (Германия))
Стадия готовности: меблирован
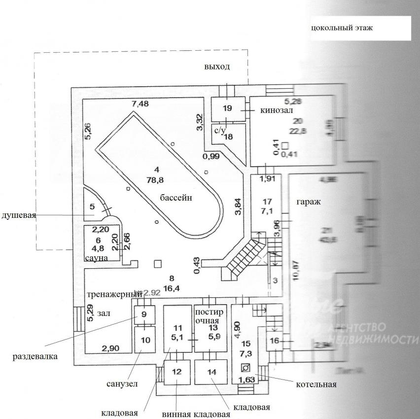
Цоколь: Кинозал 23 кв.м, бассейн 80 кв.м, сауна 5 кв.м, душевая, тренажерный зал 17 кв.м, с/узел, постирочная 6 кв.м, кладовки 5 и 3 кв.м, винная комната 3 кв.м, котельная 7 кв.м, сейфовая комната, технические и вспомогательные помещения, гараж на 2 а/м 43 кв.м.
1-ый этаж: Крыльцо 14 кв.м, тамбур 3.5 кв.м, прихожая 5 кв.м, холл 19 кв.м, санузел 3 кв.м, 3-хсветная гостиная 37 кв.м с камином и вторым светом, кухня-столовая 31.5 кв.м с выходом на террасу 70 кв.м с барбекю; спальня 31 кв.м с камином, гардеробной 4 кв.м и с/узлом 11 кв.м; холл 9 кв.м, библиотека-кабинет 32 кв.м
2-ой этаж: Двухсветный холл 54 кв.м, спальня 28 кв.м с с/у 4 кв.м, спальня 28 кв.м с с/узлом 13 кв.м и гардеробной 4 кв.м, гостевая спальня 13 кв.м
Описание внутренней отделки: Отделка дорогостоящими импортными материалами. Камины отделаны мрамором и деревом. Мраморные подоконники. Двери из массива дерева. Радиаторы (Германия). Потолки на верхнем этаже и в гостиной отделаны лиственницей и вишней. Стены в жилых помещениях окрашены, в сауне - отделаны кедром. Полы отделаны керамогранитом (водяные теплые полы), массивом дерева, есть стеклянные элементы. Потолки оштукатурены, окрашены. Лестничный марш - бетонный, ступени из массива дерева, ограждение - художественная ковка. Дорогая сантехника. Бассейн с противотоком и гейзером отделан мозаикой, очищается серебром.
Инженерное обеспечение: В доме многоуровневая система очистки воды, газовый котел Viessmann мощностью 150 кВт с погодозависимой автоматикой. Стабилизаторы напряжения. Вентиляция принудительная приточно-вытяжная (в цоколе и кухне), в бассейне также осушитель. Генератор Honda мощностью 10 кВт с автоматическим включением.
Мебель, оборудование: Кухня - массив красного дерева с витражами из мурановского стекла, столешница - натуральный гранит. Техника в кухне марки MIELE, LIEBHERR, GAGGENAU. Кинозал со специальным аудиопоглощающим покрытием стен и потолков и с автоматическими жалюзи-шторами, с проекционным экраном. По дому разведена компьютерная сеть на базе Cisco. Также видеокамеры на участке. Wi-Fi по дому. Аудио и видео мультирум (встроенная музыка во всех помещениях) и на террасе. Проходные (с датчиками движения) и сенсорные выключатели света. Итальянская мебель фабрики "Angelo Cappellini" и др. C одной кнопки (из трех мест) закрываются все наружные жалюзи, плюс у каждого окна своя кнопка. Телефонная связь между всеми помещениями в доме (внутренняя), телефоном можно дистанционно открывать входную дверь и калитку (на базе АТС Panasonic), камеры внутри дома с интернет-трансляцией (можно следить издалека). Также видеокамеры на участке. ТВ по всему дому с интернетом и связаны с видеотекой. Тренажеры Kettler.
Дополнительные строения: Дом для персонала (комната для водителя, охранника, туалет, кухня, спальня).
Беседка
Дополнительная информация о доме: Дом построен по оригинальному проекту известного архитектора МАРХИ.
Фундамент ленточный ж/б монолитный, перекрытия железобетонные. Высота потолков: 1-ый этаж - 4м, 2-ой этаж - до 7м.
Участок
Площадь участка, соток: 30
Тип участка: лесной, с ландшафтом
Благоустройство участка: На участке – дренаж, автоматический полив (и на террасах также), ландшафт, беседка. Газон спереди дома. Парадное и повседневное освещение. Живая изгородь из крупномеров по периметру. Коллекционная сирень, элитные хвойники, магнолии, черешни. Также по участку проложены дорожки из камня, перед домом выложена брусчаткой парковочная зона.
Статус земли: для ИЖС
Дополнительная информация об участке: Участок огражден деревянным забором высотой 2.5 м на каменных столбах и цоколе.
Коммуникации
Газ: есть (магистральный)
Э/э: есть (24 кВт)
Водопровод: центральный
Канализация: централизованная
Телефон: есть
Интернет: есть (оптоволокно)
Охрана: есть (ЧОП, КПП на въезде в поселок, видеонаблюдение)
Описание инфраструктуры
В поселке прогулочная, парковая зона, детская и спортивная площадки. В непосредственной близости (1.5км) от посёлка расположена вся инфраструктура гор.Троицк (Наукограда) – конный клуб, спортцентры и фитнес, балет Тодес, государственные и частные детские сады и школы, музыкальная школа, лицей и гимназии, 2 больницы (одна академическая), поликлиники и аптеки, магазины, кафе, прекрасные супермаркеты, колхозный рынок и т.д., в скором времени откроется метро. С другой стороны располагается крупный комплекс Империал Парк Отель &SPA 5 звёзд (Газпром), Теннисный комплекс Vnukovo Sport Club, Английская школа (Внуково), гимназия МЭШ (Зайцево), а так же государственные учреждения.
Хочу посмотретьПоделитесь с друзьями:
Похожие предложения:
Дом, Жуковка-2 КП, 581 м2, 37 сот
Киевское шоссе, от МКАД: 21+12 км
Ольховая, Прокшино - от 23 мин на автоДом, Жуковка-2 КП
Калужское ш., 14 км + 6 км
пл. участка: 37 сот
пл. дома: 581 м2
меблирован
Спален: 12. С/узлов: 5.
Дом, Вузсервис к/п (Большое Покровское), 733 м2, 27 сот
Филатов луг, Рассказовка - от 18 мин на автоДом, Вузсервис к/п
Киевское ш., 15 км + 2 км
пл. участка: 27 сот
пл. дома: 733 м2
меблирован
Спален: 4. С/узлов: 3.

Дом, Варварино эко-поселок, 630 м2, 30 сот
Ольховая, Теплый стан - от 27 мин на автоДом, Варварино эко-поселок
Калужское ш., 25 км + 2 км
пл. участка: 30 сот
пл. дома: 630 м2
меблирован
Спален: 5. С/узлов: 7.












