Дом, Синергия КП
Код: 535-824
Особенности объекта
Новый современный загородный дом с дизайнерским ремонтом в охраняемом коттеджном поселке бизнес-класса. Высокое качество строительства. Функциональная планировка. Все центральные коммуникации. Детские площадки на территории поселка, рядом лесной массив, река Сосенка. Широкие улицы. Отличная транспортная доступность (в 5 мин. от метро на а/м).
Расположение
Ссылка на карту
Синергия КП (Зименки)
Калужское шоссе, от МКАД: 7 км, всего: 11 км
Киевское шоссе, от МКАД: 7 км, всего: 12 км
Тип застройки: сформированный к/п
Метро: Ольховая, Теплый стан, Бунинская аллея; от 10 мин на авто
Коттеджный поселок «Синергия»
Дом
Общая площадь строений: 224 м2
Год постройки дома: 2022
Количество уровней: 3
Спален: 4. С/узлов: 4. Комнат всего: 6.
Опции: терраса (крытая).
Материал стен: поризованный керамический блок Protherm 38
Облицовка стен: цоколь - керамогранит.
Стены - кирпич керамический условно эффективный пластического формования М-200 графит антика
Декоративные элементы фасада: оконные молдинги, сандрик с замковым камнем, портал с карнизом на входной группе.
Металлическое кованное ограждения на террасе.
Кровля: черепица цементно-песчаная Brass, водосточная система металлическая с полимерным покрытием
Окна: стеклопакеты ПВХ (двухкамерные ламинированные с наружи в цвет графит с раскладкой. Высота окон 1.95 м)
Стадия готовности: меблирован
1-ый этаж: крыльцо 8.5 кв.м, прихожая 9.8 кв.м с гардеробной 3 кв.м, кухня-гостиная 30.4 кв.м с выходом на террасу 26.2 кв.м, спальня 16.4 кв.м, санузел 3.1 кв.м (душевая), котельная с прачечной 6.4 кв.м и с отдельным входом;
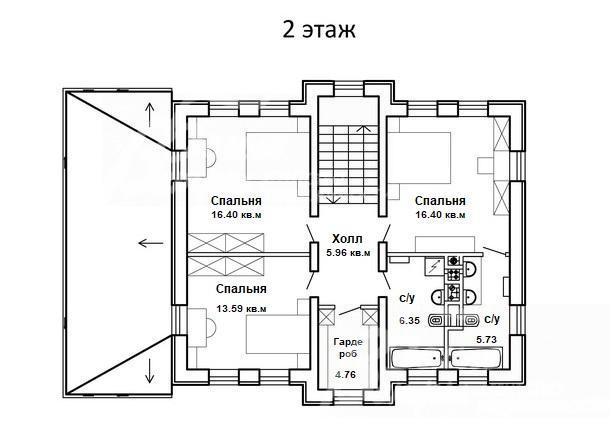
2-ой этаж: холл 6 кв.м, главная спальня 16.4 кв.м с санузлом 5.7 кв.м (ванная), спальня 16.4 кв.м, спальня 13.6 кв.м, общий санузел 6.3 кв.м (ванная), общая гардеробная 4.8 кв.м;
3-ий этаж: холл 8.2 кв.м, кабинет-библиотека 24.1 кв.м, спальня с гардеробной 19.6 кв.м, санузел 3 кв.м (душевая);
Описание внутренней отделки: современная отделка в стиле Неоклассика выполнена по разработанному дизайн проекту вплоть до мебели. В жилых зонах на стенах краска интерьерная и дизайнерские обои ЭВА.
В санузлах - плитка Декор Porcelanosa Berna Deco Berna, мозаика Porcelanosa Berna Mosaico Berna Acero, краска интерьерная. Полы: гостиная-кухня - Керамогранит (Kerama marazzi МОНТЕ ТИБЕРИО ОБРЕЗНОЙ), с водяным подогревом. Спальни и кабинет - Кварц-виниловое покрытие под дерево, рисунок ""французская ёлка"", с водяным подогревом. Санузлы - Керамогранит Porcelanosa Berna Acero, с водяным подогревом. Лестничный марш: ж/б монолит ширина 0,95 м, ступени керамогранит, шаг 27Х16,7 см, ограждения - стеклянные с металлическими хромированными перилами. Потолки: подвесные ГКЛ с нишами под скрытые карнизы и освещение, с различной подсветкой. Сантехника вся установлена: ванны - Art&Max
унитазы с инсталляцией и раковины - SSWW, смесители - WasserKRAFT Main. Коммуникации: Все разведено под ключ. Отопление в доме выполнено в виде водяных теплых полов. Э/э (Розетки, выключатели) - Schneider Electrics Atlas Design. Двери: ламинированные - Estet белые. Подоконники деревянные (дуб).
Инженерное обеспечение: газовый котел, бойлер косвенного нагрева, естественно приточная вентиляция;
Мебель, оборудование: будут установлены точечные светильники
Дополнительная информация о доме: фундамент ж/б монолитная плита, жб монолитные перекрытия. Потолки: 1 эт. - 3.02 м, 2 эт. - 3.02 м. Архитектурный стиль - английская классика.
Участок
Площадь участка, соток: 6
Тип участка: с ландшафтом
Благоустройство участка: высажен газон, устроена стоянка на 2 авто, отмостка вокруг дома
Статус земли: земли населенных пунктов для ИЖС
Дополнительная информация об участке: расположен в центре поселка, имеет ограждение в виде кованого прозрачного забора со всех сторон
Коммуникации
Газ: есть (магистральный)
Э/э: есть (15 кВт)
Водопровод: центральный (ВЗУ на поселок)
Канализация: централизованная (очистные на поселок)
Интернет: есть (Оптико волокно)
Охрана: есть (КПП)
Описание инфраструктуры
Инфраструктура в поселке: въездная группа с парковкой, общий выход в лес, частный детский сад. Инфраструктура внешняя: лучшая школа в России в Летово, спортивный центр Теннис с кортами, бассейном и фитнес-клубом. В 1 км метро Филатов Луг. В 500 м остановка общественного транспорта до м Тёплый стан (автобус 878). Мега, Ашан, Икеа, магазины и рестораны в Дубровке, спорткомплексы и иные услуги в п.Газопровод, Воскресенское и г. Московский.
Хочу посмотретьПоделитесь с друзьями:
Похожие предложения:
Дом, Монплезир-Пушкино КП (Валуево), 222 м2, 5.52 сот
Калужское шоссе, от МКАД: 5+9 км
Филатов луг, Прокшино - от 9 мин на автоДом, Монплезир-Пушкино КП
Киевское ш., 5 км + 8 км
пл. участка: 5.52 сот
пл. дома: 222 м2
под ключ
Спален: 3. С/узлов: 3.
Дом, Монплезир-Пушкино КП (Валуево), 225 м2, 5.52 сот
Калужское шоссе, от МКАД: 5+9 км
Филатов луг, Прокшино - от 9 мин на автоДом, Монплезир-Пушкино КП
Киевское ш., 5 км + 8 км
пл. участка: 5.52 сот
пл. дома: 225 м2
под ключ
Спален: 5. С/узлов: 2.
Дом, Синергия КП (Зименки), 220 м2, 5 сот
Киевское шоссе, от МКАД: 7+5 км
Ольховая, Теплый стан - от 10 мин на автоДом, Синергия КП
Калужское ш., 7 км + 4 км
пл. участка: 5 сот
пл. дома: 220 м2
меблирован
Спален: 4. С/узлов: 3.
Дом, Синергия КП (Зименки), 220 м2, 5 сот
Киевское шоссе, от МКАД: 7+5 км
Ольховая, Теплый стан - от 10 мин на автоДом, Синергия КП
Калужское ш., 7 км + 4 км
пл. участка: 5 сот
пл. дома: 220 м2
меблирован
Спален: 5. С/узлов: 4.
















