Дом, Сырьево
Код: 209-203
Особенности объекта
Современный функциональный дом с отделкой. Интересная архитектура, высокое качество строительства и отделки. Тихий, обжитой, живописный поселок в лесу, рядом пруд и магазины.
Расположение
Ссылка на карту
Сырьево
Киевское шоссе, от МКАД: 34 км, всего: 36 км
Тип застройки: обжитой к/п
Метро: Победа, Рассказовка, Саларьево; от 19 мин на авто
Дом
Общая площадь строений: 265 м2
Год постройки дома: 2013
Количество уровней: 2
Спален: 5. С/узлов: 2. Комнат всего: 7.
Опции: терраса; камин; машиномест крытых: 2, в т.ч. в теплом гараже: 2.
Материал стен: пеноблок
Облицовка стен: Оштукатурен и покрашен, частично снаружи дом облицован деревом и искусственным камнем, цоколь полностью облицован камнем
Кровля: металлочерепица
Окна: стеклопакеты деревянные
Стадия готовности: под ключ
1-ый этаж: Тамбур, холл 25 кв.м, кабинет 14 кв.м, санузел, гостиная 52 кв.м, котельная 6 кв.м
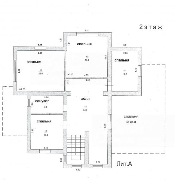
2-ой этаж: Холл 34 кв.м, санузел 6 кв.м, 5 спален 24 кв.м, 13 кв.м, 21 кв.м, 13 кв.м, 33 кв.м.
Описание внутренней отделки: Стены оштукатурены и окрашены, на 1 этаже и в санузле плитка с теплым полом, на 2 этаже на полу ламинат, потолки из гипсокартона, окрашены. Лестничный марш бетонный, ступени деревянные под покраску. Все коммуникации разведены под ключ. Двери и подоконники массив сосны цвета ванге. Установлены стальные панельные радиаторы марки Kermi. Отмостка вокруг дома сделана из натурального камня.
Инженерное обеспечение: Вентиляция естественная. В доме установлены котел напольный одноконтурный Термона на 35 кВт, бойлер косвенного нагрева Термона на 250 л, фильтры для очистки воды.
Дополнительная информация о доме: Фундамент ленточный, перекрытия железобетонные, высота потолков от 2.9 м.
Участок
Площадь участка, соток: 15
Тип участка: с деревьями
Благоустройство участка: На участке разбит газон, сделан дренаж.
Статус земли: Земли для ИЖС
Дополнительная информация об участке: Участок прямоугольной формы, расположен в центре поселка, огражден забором из металлопрофиля с кирпичными оштукатуренными столбами по фасаду.
Коммуникации
Газ: есть (магистральный)
Э/э: есть (15 кВт)
Водопровод: индивид. скважина (165 м)
Канализация: автономная (2 колодца на 6.5 куба)
Телефон: есть
Интернет: есть (по границе участка)
Описание инфраструктуры
Детская игровая площадка, магазин, супермаркет, минимаркет, медпункт, аптека, химчистка, круглосуточный магазин
Хочу посмотреть