Дом, Троекурово КП
Снят с реализации
Код: 439-101
Особенности объекта
Стильная вилла в средиземноморском стиле по авторскому проекту известного архитектора. Готова к проживанию. Изюминкой дома является просторный атриум - традиционный внутренний дворик - под стеклянной крышей, с фонтаном, зимним садом, окруженный галереей. Дом расположен на лесном участке с вековыми дубами, лиственницами, соснами, в обжитом тихом поселке. Видеорлик
Расположение
Ссылка на карту
Троекурово КП (Мартемьяново)
Киевское шоссе, от МКАД: 27 км, всего: 29 км
Тип застройки: сформированный к/п
Метро: Филатов луг, Рассказовка, Теплый стан; от 25 мин на авто
Дом
Общая площадь строений: 937 м2
Год постройки дома: 2011
Количество уровней: 3
Спален: 6. С/узлов: 6. Комнат всего: 14.
Опции: сауна; квартира для персонала; терраса; камин; холодный подвал; машиномест крытых: 3, в т.ч. в теплом гараже: 3; атриум (внутренний двор дома) со стекл.крышей.
Материал стен: кирпич, пеноблок, утеплитель
Облицовка стен: штукатурка, дикий камень
Кровля: натуральная черепица
Окна: стеклопакеты ПВХ (бронированные, ударопрочные)
Стадия готовности: под ключ
1-ый этаж: Прихожая, 2 гардеробные, гостевой с/узел 6 кв.м, внутренний дворик (атриум со стеклянной крышей) 70 кв.м - зимний сад с фонтаном и зоной барбекю, по периметру дворика галерея 79 кв.м, двухсветный каминный зал 35 кв.м, кухня 21.5 кв.м, столовая 18 кв.м, винная комната; детская игровая комната 37 кв.м, кинозал 21 кв.м, тренажерный зал 26 кв.м, СПА-зона с сауной и душевой. 2 комнаты для персонала по 18 кв.м с с/узлом 4 кв.м, постирочная 13.5 кв.м, бойлерная 23.5 кв.м, гараж на 3 а/м 73 кв.м.
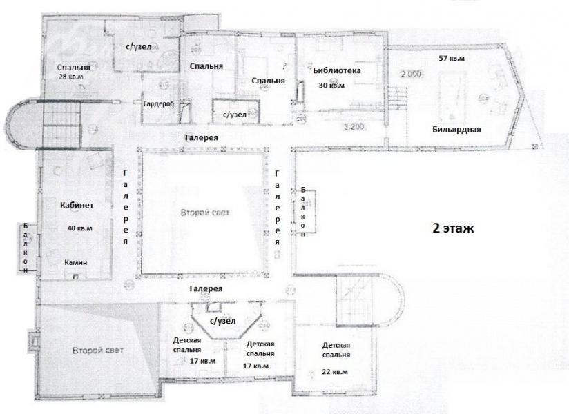
2-ой этаж: Галерея над вторым светом, кабинет с камином 40 кв.м и выходом на балкон, библиотека 30 кв.м, бильярдная 57 кв.м с выходом на балкон. Спальня хозяев 28 кв.м с ванной комнатой 15 кв.м и гардеробной 8 кв.м, 2 спальни по 20 кв.м, с/узел 5 кв.м; 2 детских спальни по 17 кв.м, детский с/узел 8 кв.м, спальня 22 кв.м
Описание внутренней отделки: Ввнутрення отделка, как и внешняя архитектура - ярко выдержаны в стиле Средиземноморья. Натуральные высококачественные строительные и отделочные материалы, бронированные стеклопакеты, пол, двери и подоконники из массива дуба, фрески, мрамор. Лестничный марш - дубовый с коваными перилами.
Инженерное обеспечение: Инженерные сети немецкого производства Oventrop, Rehau. Котел Beretta, медные трубы. Стеклянняя крыша над атриумом с теплодиодами для таяния снега. Многоступенчатая система притяжной вентиляции и кондиционирования, климат-контроль. Сложная система видеонаблюдения за домом ( on-line из любой точки мира) и пожарно-охранной сигнализации. Система акустики и звука Hi-End.
Мебель, оборудование: Меблирован только блок для персонала. Во всех санузлах установлена элитная сантехника Villeroi&Boch.
Дополнительная информация о доме: Дом выполнен в стиле "Средиземноморской виллы". Фундамент дома монолитный с железобетонными перекрытиями, высота потолков от 3 метров. В строительстве дома были задействованы зарекомендовавшие себя строительные компании. Стеклянную крышу во внутреннем дворе устанавливали с помощью вертолета. На ней установлены специальные обогревающие диоды для того, чтобы зимой снег на ней не скапливался и таял.
Участок
Площадь участка, соток: 21
Тип участка: лесной, более 30 взрослых деревьев
Благоустройство участка: выполнен ландшафтный дизайн: газон, дорожки, освещение участка; более 30 взрослых деревьев: вековые дубы, ели, липы, лиственницы, декоративные кустарники. Сделан дренаж участка.
Статус земли: ИЖС
Дополнительная информация об участке: участок прямоугольной формы, огорожен забором из металлопрофиля на кирпичных, оштукатуренных столбах, автоворота
Коммуникации
Газ: есть (магистральный)
Э/э: есть (30 кВт (25 кВт своя подстанция + 5 кВт мощность от поселка))
Водопровод: индивид. скважина (опробирована - пригодна для питьевой воды)
Канализация: автономная (многоступенчатый)
Телефон: есть
Интернет: есть
Охрана: есть
Описание инфраструктуры
Городская инфраструктура г.Апрелевка.
Элементы положит. окружения
Участок граничит со смешанным лесом - дубы, сосны, ели, липы. Недалеко протекает река Десна. Тихое место.
Хочу посмотретьПоделитесь с друзьями:
Похожие предложения:
Дом, Новоглаголево к/п (Новоглаголево), 868 м2, 24 сот
Апрелевка, Рассказовка - от 26 мин на автоДом, Новоглаголево к/п
Киевское ш., 32 км + 5 км
пл. участка: 24 сот
пл. дома: 868 м2
под ключ
Спален: 7. С/узлов: 6.


Дом, Славнефть КП (Афинеево), 850 м2, 20 сот
Апрелевка, Саларьево - от 18 мин на автоДом, Славнефть КП
Киевское ш., 25 км + 3 км
пл. участка: 20 сот
пл. дома: 850 м2
меблирован
Спален: 6. С/узлов: 5.









