Продажа дачи, коттеджа, дома на Киевском, Калужском шоссе — цена, описание, фото, расположение на карте.

Дом, Микрорайон К

Снят с реализации

Готовый к проживанию дом 524 кв.м в Троицке (Микрорайон "К")

Код: 312-108

Особенности объекта

Кирпичный коттедж с мебелью в статусном обжитом поселке с лесной прогулочной зоной и мини-футбольным полем. Современный кирпичный дом, полностью укомплектованный оборудованием и мебелью и готовый к проживанию. Функциональная планировка - много комнат, очень качественный ремонт. На ухоженном участке беседка-барбекю, детская площадка, фонтан с подсветкой. Вблизи развитая городская инфраструктура и остановка общественного транспорта до м.Теплый Стан.

Расположение

Ссылка на карту
Микрорайон К (Троицк)
Калужское шоссе, от МКАД: 22 км, всего: 22 км
Тип застройки: обжитой к/п
Метро: Ольховая, Прокшино, Теплый стан; от 19 мин на авто
Коттеджный поселок «Микрорайон К (Троицк)»

Дом

Общая площадь строений: 524 м2
Год постройки дома: 2008
Количество уровней: 4
Спален: 5. С/узлов: 5. Комнат всего: 8.
Опции: бассейн; сауна; терраса; камин; холодный подвал; машиномест крытых: 2, в т.ч. в теплом гараже: 1; бильярдная, кинозал, возможно организовать квартиру для персонала, бассейн с подогревом и водоочисткой 7м Х 3м Х 1.3м.
Материал стен: щелевой кирпич в 3 слоя+базальтовая вата
Облицовка стен: высокопрочная фасадная цветная штукатурка
Кровля: металлочерепица (и утеплитель "Роквел" 15 см)
Окна: стеклопакеты ПВХ (двухкамерные "золотой дуб" с золотой раскладкой)
Стадия готовности: меблирован
Цоколь: Холл 22 кв.м, бильярдная-кинозал 42 кв.м, сауна, душевая "дождь", топочная 14 кв.м, кладовая 21 кв.м, холодная кладовая 31 кв.м
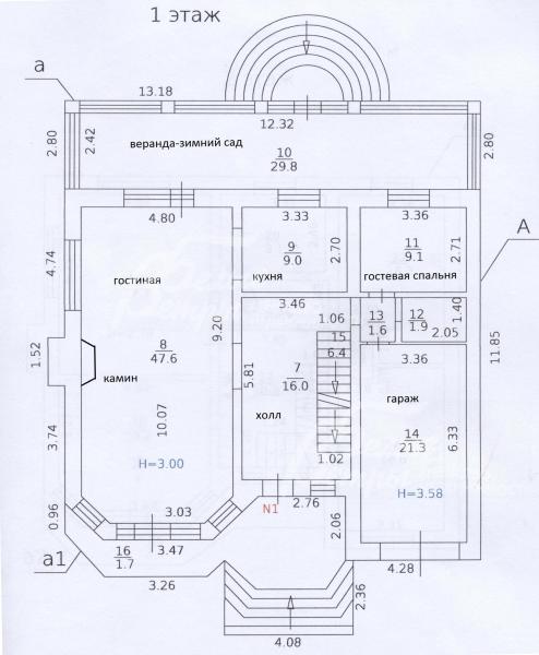
1-ый этаж: Холл 16 кв.м, гостиная-столовая с камином 47.6 кв.м, кухня 9.4 кв.м, гостевая спальня-кабинет 9 кв.м, с/узел, гараж 21 кв.м, утепленная веранда-зимний сад 30 кв.м.
2-ой этаж: Холл 10 кв.м, кабинет 19 кв.м с выходом на балкон 11 кв.м, хозяйская спальня 28 кв.м с с/узлом 8 кв.м, спальня 16 кв.м, спальня 16.6 кв.м, с/узел 5 кв.м, гардеробная.
3-ий этаж: Мансарда: помещение свободного назначения 102 кв.м с выходом на балкон, санузел 6 кв.м.
Описание внутренней отделки: Выполнена стильная и качественная отделка. Стены лестничных холлов отделаны испанской плиткой под натуральный "рваный" камень, в столовой/гостиной - итальянская декоративная штукатурка с вкраплениями и оттенком "мерцающий велюр". Пол - плитка с водяным подогревом (Италия), качественный ламинат "Tarkett" (пр-во Германии). Потолки многоуровневые фигурные с встроенным освещением, в гостиной декоративные деревянные балки в стиле "Фахверк".
Инженерное обеспечение: котел Sime 85 кВт, бойлер "Reflex" 300 л, многоступенчатая система водоочистки, вентиляция естественно-приточная, сигнализация - тревожная кнопка на пульт КПП, также система видеонаблюдения (4 камеры), видеодомофон, установлены счетчики электричества
Мебель, оборудование: Дом обставлен итальянской мебелью, в санузлах импортная сантехника.
Дополнительные строения: Летняя крытая беседка-барбекю 20 кв.м (с подогревом ступенек), вольер из кованой стали 10 кв.м.
Дополнительная информация о доме: Дом представлен в стиле Охотничьего домика, фасад отделан в стиле "Фахверк". Фундамент дома монолитный, перекрытия - железобетонные плиты, высота потолков 3 метра. Лестничный марш монолитный, массив ясеня с деревянными перилами, двери деревянные (пр-ва Италии).

Участок

Площадь участка, соток: 10
Тип участка: с деревьями и ландшафтом
Благоустройство участка: выполнен ландшафтный дизайн: газон, дорожки из камня, фонарики, фонтан с водопадом, альпийская горка, цветники, на участке растут взрослые лесные и плодовые деревья, сделан дренаж участка
Статус земли: ИЖС
Дополнительная информация об участке: участок правильной прямоугольной формы, по периметру огорожен кирпичным, оштукатуренным и отделанным натуральным камнем, забором высотой 3 м, расположен на центральной улице поселка.

Коммуникации

Газ: есть (магистральный)
Э/э: есть (15 кВт, 3 фазы)
Водопровод: индивид. скважина (86 м + центральный водопровод)
Канализация: централизованная
Телефон: есть (МГТС)
Интернет: есть ("Троицк Телеком")
Охрана: есть

Описание инфраструктуры

У въезда в поселок — магазин «Продукты». Рядом остановка общественного транспорта до м.Теплый Стан. В поселке — минифутбольное поле. Инфраструктура г.Троицка (школы, детские сады, больницы, банки, рестораны, элитный фитнес-центр "Резиденция" и т.д.).

Элементы положит. окружения

Поселок граничит с лесным массивом, расположен в 250 м от дома.

Хочу посмотреть


Поделитесь с друзьями:

Собираетесь купить дом, дачу или коттедж на Калужском или Киевском направлении? Обязательно воспользуйтесь услугами компании «Белые Ветры», старейшего оператора загородной недвижимости на Юго-западе Подмосковья!
Рейтинг@Mail.ru