Продажа дачи, коттеджа, дома на Киевском, Калужском шоссе — цена, описание, фото, расположение на карте.

Дом, У Реки КП

195 000 000
2 745 612 $
2 359 720 €
Дом 485 кв.м под ключ на участке 40 соток в КП У Реки Площадь террас дома составляют 115 кв.м

Код: 749-601

Особенности объекта

Новый современный дом 485 кв.м на уникальном большом участке 40 соток со взрослыми лесными деревьями и с собственным выходом на берег реки Десна, в камерном коттеджном поселке на 7 домовладений. Качественно построенный дом по периметру окружен террасами, имеет панорамное остекление во многих помещениях. Дом будет сдаваться с качественной внутренней отделкой "под ключ" со всеми подключенными и функционирующими коммуникациями, полы - керамогранит и паркетная доска, покраска стен, установка межкомнатных дверей, облицовка и оборудование санузлов, установка сантехники. На участке также расположен гараж на 2 м/м с квартирой персонала. Инфраструктура п. Первомайское в пешей доступности, удобная транспортная доступность с Киевского и Калужского шоссе, московская прописка. Цена дома указана с отделкой под ключ.

Расположение

Ссылка на карту
У Реки КП (Первомайское)
Киевское шоссе, от МКАД: 21 км, всего: 24 км
Тип застройки: формирующийся к/п
Метро: Филатов луг, Рассказовка, Теплый стан; от 21 мин на авто

Дом

Общая площадь строений: 600 м2 (Дом 370 кв.м + Террасы 115 кв.м + Хозяйственные помещения 115 кв.м)
Год постройки дома: 2025
Количество уровней: 2
Спален: 4. С/узлов: 5. Комнат всего: 8.
Опции: квартира для персонала; терраса; машиномест крытых: 2, в т.ч. в теплом гараже: 2; спортзал, студия 70 кв.м с отдельным входом.
Материал стен: монолитный каркас с заполнением двойным щелевым керамическим кирпичом марки 150, утеплитель PAROC 18
Облицовка стен: отделка фасада по системе quick-mix с использованием оригинальных компонентов BASF
Кровля: монолитная (200 мм) плоская кровля с наплавляемой пароизоляцией и утеплением карбон-проф от Технониколь
Окна: алюминиевый оконный профиль с энергосберегающими двухкамерными стеклопакетами
Стадия готовности: под ключ (готовность под ключ - декабрь 2025 -январь 2026г)
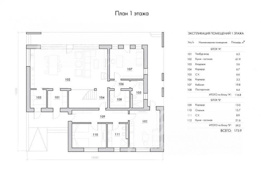
1-ый этаж: тамбур 6.5 кв.м, кухня-гостиная 62 кв.м с выходом на террасу, кладовая 5.6 кв.м, кабинет 20 кв.м с выходом на террасу, санузел 6.6 кв.м, постирочная 6.4 кв.м, коридор 13 кв.м, мастер-блок: спальня 16 кв.м, санузел 9 кв.м, вторая кухня-гостиная 21.6 кв.м с выходом на террасу
2-ой этаж: холл 17 кв.м, две спальни по 20.6 кв.м со своими санузлами 10 кв.м, детская спальня 14.5 кв.м с санузлом 5.6 кв.м, тренажерный зал 19 кв.м с выходом на открытую террасу по периметру дома с великолепными видами
Описание внутренней отделки: Дом будет сдаваться готовым для проживания, все коммуникации уже подключены и функционируют, предчистовая отделка уже произведена. Начата внутренняя финишная отделка - полы керамогранит и паркетная доска, покраска стен, установка межкомнатных дверей, облицовка и оборудование санузлов, установка сантехники.
Инженерное обеспечение: котельное оборудование BUDERUS
Дополнительные строения: - Гараж на 2 авто, котельная, квартира для персонала.
Дополнительная информация о доме: Фундаментная монолитная ж/б плита 400 мм. Особенность проекта - безопорные конструкции и консольные выносы.

Участок

Площадь участка, соток: 40
Тип участка: С лесными деревьями
Благоустройство участка: великолепный участок со множеством взрослых лесных деревьев и со своим выходом на берег реки Десна. Заканчиваются работы по благоустройству участка и въездной группы.
Статус земли: ИЖС

Коммуникации

Газ: есть (магистральный)
Э/э: есть (25 кВт)
Водопровод: индивид. скважина
Канализация: автономная (индивидуальная система биоочистки)
Интернет: возможно подключение

Описание инфраструктуры

Рядом с посёлком расположены спортивный комплекс, рестораны, магазины. Отличная транспортная доступность (остановка общественного транспорт, каршеринг, удобный выезд на несколько шоссе, разгруженное от пробок направление). Посёлок окружён лесом, рядом большое чистое озеро с благоустроенным пляжем, беседки, рыбалка. Рядом школа и детский сад VNUKOVO INTERNATIONAL SCHOOL, Теннисная академия, ресторан "Весна". В пешей доступности вся инфраструктура п. Первомайское (детский сад, школа, магазины и мн. др.). Поблизости расположен SPA комплекс Теплеево Резорт 5* (бизнес-центр с конференц-залами, рестораны, ночной клуб «Сафари», фитнес-центр, SPA-клуб, 25-метровый бассейн). Автобус до станции метро "Саларьево" или "Внуково". Московская прописка, вблизи инфраструктура п. Птичное и г. Троицк: магазины спортивные центры, школы, детские сады и многое другое.

Хочу посмотреть


Поделитесь с друзьями:

Собираетесь купить дом, дачу или коттедж на Калужском или Киевском направлении? Обязательно воспользуйтесь услугами компании «Белые Ветры», старейшего оператора загородной недвижимости на Юго-западе Подмосковья!
Рейтинг@Mail.ru