Дом, Усадьба Бергов к/п
Код: 214-706
Особенности объекта
Современный кирпичный коттедж 750 кв.м со свободной планировкой и центральными коммуникациями на участке 25 соток в строго охраняемом клубном элитном поселке в едином стиле, разработанном архитектурным бюро SPEECH. Свободная планировка предполагает размещение СПА-зоны с бассейном, 4 спальни, каждая из которых со своей ванной комнатой и гардеробной. Коттеджный поселок находится на берегу реки Десна в историческом месте с сохраненными усадебными парками с хвойными и лиственными деревьями, отреставрированными приусадебными постройками культурного наследия. В поселке более 5 км обустроенных прогулочных зон, в т.ч. набережная с местами для отдыха и спорта (павильон для йоги, площадка с тренажерами, беседки, качели), есть причал с лодками. На территории поселка заканчивается строительство клубного спа центра с бассейном, банями, спортзалами, с кафе и банкетным залом. В 5 минутах езды на авто «Русская теннисная академия» (РТА)- крупнейший современный теннисный клуб европейского уровня, (кроме тенниса: единоборства, детский клуб, студия фитнеса), торговый центр и супермаркет «Перекресток», детский сад и школа Vnukovo International School, в 10 минутах на авто: отделение МЭШ в д. Зайцево, Премьерский лицей в д. Крекшино, Православная гимназия Святителя Василия Великого. Инфраструктура п.Первомайский 15 мин пешком. Удобный выезд на Киевское, Боровское, Минское шоссе, в т.ч. платная трасса до Москва Сити.
Расположение
Ссылка на карту
Усадьба Бергов к/п (Первомайское)
Киевское шоссе, от МКАД: 21 км, всего: 25 км
Тип застройки: формирующийся к/п
Метро: Филатов луг, Рассказовка, Теплый стан; от 21 мин на авто
Коттеджный поселок «Усадьба Бергов»
Дом
Общая площадь строений: 750 м2
Количество уровней: 2
Спален: 5. С/узлов: 5. Комнат всего: 7.
Опции: квартира для персонала (с отдельным входом в цокольном этаже); терраса; камин; машиномест крытых: 2, в т.ч. в теплом гараже: 2; большие панорамные окна.
Материал стен: Безригельный монолитный каркас с заполнением кирпичной кладкой 250 мм. Между стенами расположен эффективный утеплитель толщиной 120мм (Несущие конструкции-пилоны 250х400 скрыты в конструкции наружных стен и соединены между собой обвязочными балками над проемами. Внутри домов предусмотрены железобетонные колонны (пилоны) с максимальным шагом в осях 6.6 метра. Таким образом все пространство интерьера имеет одну или две несущие опоры, что позволяет добиться максимальной вариабельности планировок.)
Облицовка стен: кирпич (клинкерный кирпич "Wienerberger" (Германия) 120мм)
Кровля: цементно-песчаная черепица (Braas)
Окна: стеклопакеты алюминиевые (2-х камерные, алюминиевый профиль. Снаружи алюминий, внутри деревянные накладки. Подьемно-сдвижной механизм открывания. Панорамные от пола. Высота до 2,7м)
Стадия готовности: под отделку (со свободной планировкой)
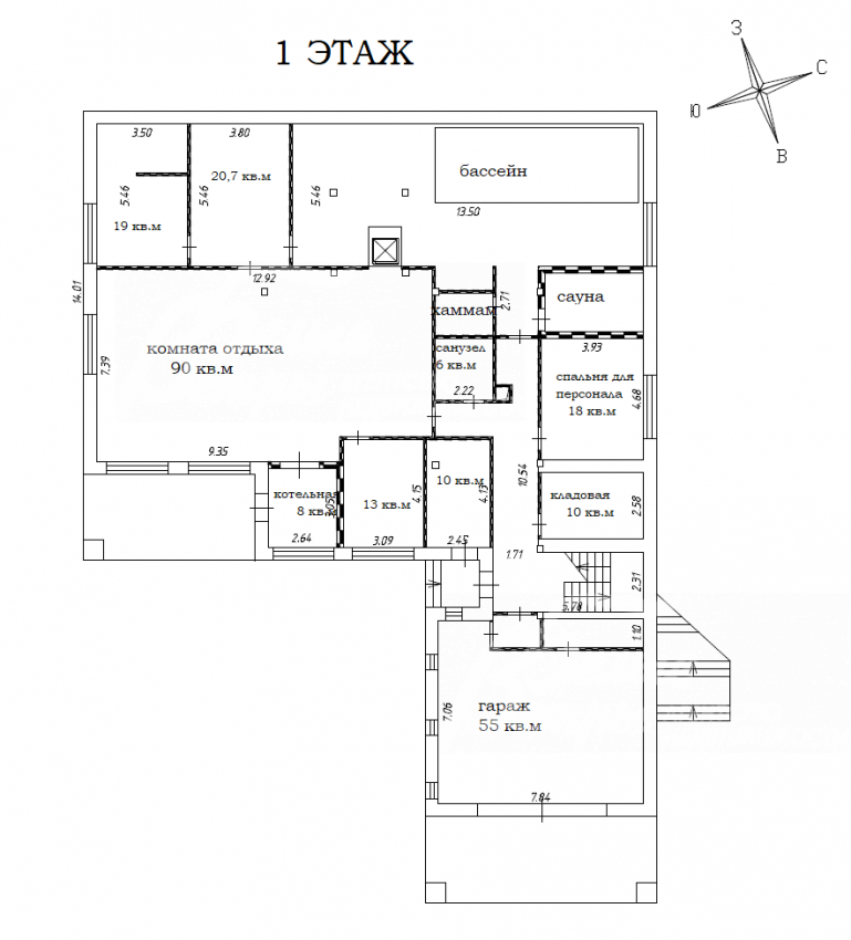
1-ый этаж: 1 этаж, частично цокольный -свободная планировка. Возможный вариант планировки: просторная СПА-зона с бассейном, сауна/хамам, душевые, санузел, котельная с отдельным входом, кладовые, гараж на 2 м/м, блок для персонала.
2-ой этаж: Свободная планировка: возможный вариант планировки: кухня, столовая, гостиная, мастер спальня с ванной комнатой, гардеробной и выходом на террасу, 3 спальни, каждая с ванной комнатой
Описание внутренней отделки: под отделку со свободной планировкой.
Дополнительная информация о доме: фундамент - монолитная ж/б плита, перекрытие ж/б.
Участок
Площадь участка, соток: 25.1
Тип участка: без деревьев с перепадом высот
Статус земли: земли населенных пунктов для ИЖС
Дополнительная информация об участке: участок с перепадом высот.
Коммуникации
Газ: есть (магистральный)
Э/э: есть (20 кВт)
Водопровод: центральный
Канализация: централизованная
Телефон: есть
Интернет: есть (оптоволокно)
Охрана: есть (КПП на въезде в поселок, охранная сигнализация и камеры внешнего наблюдения по периметру поселка)
Описание инфраструктуры
В поселке более 5 км обустроенных прогулочных зон, в т.ч. набережная с местами для отдыха и спорта (павильон для йоги, площадка с тренажерами, беседки, качели), есть причал с лодками. На территории поселка клубный спа центра с бассейном, банями, спортзалами, с кафе и банкетным залом. В 5 минутах езды на авто «Русская теннисная академия» (РТА)- крупнейший современный теннисный клуб европейского уровня, (кроме тенниса: единоборства, детский клуб, студия фитнеса), торговый центр и супермаркет «Перекресток», детский сад и школа Vnukovo International School, ресторан Vesna, загородный СПА клуб «Теплеево Резорт». В 10 минутах на авто: отделение МЭШ в д. Зайцево, Премьерский лицей в д. Крекшино, Православная гимназия Святителя Василия Великого. Инфраструктура п.Первомайский 15 мин пешком. Удобный выезд на Киевское, Боровское, Минское шоссе, в т.ч. на платную дорогу до Москва Сити.
Элементы положит. окружения
широкие дороги (6м) , тротуары, покрытые брусчаткой, освещение, ландшафтный дизайн на улицах поселка и в местах общественного отдыха. Есть спуск к реке - заливу, где можно покататься на лодочках.
Хочу посмотретьПоделитесь с друзьями:
Похожие предложения:
Дом, Резиденция Николинские Ключи (Ивановское), 855 м2, 25.22 сот
Крёкшино, Саларьево - от 16 мин на автоДом, Резиденция Николинские Ключи
Киевское ш., 21 км + 3 км
пл. участка: 25.22 сот
пл. дома: 855 м2
под отделку
Спален: 6. С/узлов: 5.


Дом, Идиллия КП (Раево), 858 м2, 31.7 сот
Ольховая, Теплый стан - от 27 мин на автоДом, Идиллия КП
Калужское ш., 22 км + 3 км
пл. участка: 31.7 сот
пл. дома: 858 м2
под отделку
Спален: 6. С/узлов: 7.

Дом, Апрелевка Парк КП (Мартемьяново), 695 м2, 26.4 сот
Апрелевка, Аэропорт Внуково - от 13 мин на автоДом, Апрелевка Парк КП
Киевское ш., 25 км + 2 км
пл. участка: 26.4 сот
пл. дома: 695 м2
меблирован
Спален: 7. С/узлов: 6.


Дом, Согласие-1 к/п (Фоминское), 708 м2, 22.5 сот
Ольховая, Прокшино - от 17 мин на автоДом, Согласие-1 к/п
Калужское ш., 14 км + 2 км
пл. участка: 22.5 сот
пл. дома: 708 м2
меблирован
Спален: 6. С/узлов: 4.
Дом, Империал КП (Рогозинино), 774 м2, 22 сот
Калужское шоссе, от МКАД: 17+11 км
Ольховая, Бунинская аллея - от 18 мин на автоДом, Империал КП
Киевское ш., 21 км + 3 км
пл. участка: 22 сот
пл. дома: 774 м2
под отделку
Спален: 5. С/узлов: 5.





















