Дом, Усадьба Жодочи КП
Код: 420-633
Особенности объекта
Новый, построенный для себя загородный дом 360 кв.м, из современных качественных материаловв коттеджном поселке Усадьба Жодочи! Коттедж на благоустроенном участке 14 соток с функциональной планировкой: 4 спальни, одна из которых на первом этаже и со своими гардеробной и ванной комнатой, просторная гостиная с панорамным остеклением, камином и выходом на террасу, оборудованная кухня, гараж на 2 м/м. Лучшие материалы декора, выполненные по индивидуальному заказу. Обжитой охраняемый коттеджный поселок с центральными коммуникациями. Удобная транспортная доступность, московская прописка.
Расположение
Ссылка на карту
Усадьба Жодочи КП (Жедочи)
Киевское шоссе, от МКАД: 32 км, всего: 40 км
Калужское шоссе, от МКАД: 29 км, всего: 43 км
Тип застройки: обжитой к/п
Метро: Филатов луг, Рассказовка, Теплый стан; от 33 мин на авто
Коттеджный поселок «Усадьба Жодочи»
Дом
Общая площадь строений: 360 м2
Год постройки дома: 2025
Количество уровней: 2
Спален: 5. С/узлов: 3. Комнат всего: 6.
Опции: терраса; камин; машиномест крытых: 2, в т.ч. в теплом гараже: 2.
Материал стен: газобетонный блок ITONG 400 мм с утеплением Пеноплэкс 100 мм
Облицовка стен: комбинированный фасад: штукатурка- вентилируемый навесной фасад (керамогранит) - планкен (лиственница производства компании Термовуд).
Кровля: премиальная модульная металлочерепица производства ведущего европейского концерна Bratex
Окна: панорамные трехкамерные стеклопакеты с алюминиевым профилем, немецкие мансардные окна из ПВХ, производитель ROTO FRANK (Алюминиевые подъемно-сдвижные системы, стеклопакет с мультифукциональным и закаленным стеклом 8 мм с антивандальной функцией.)
Стадия готовности: меблирован
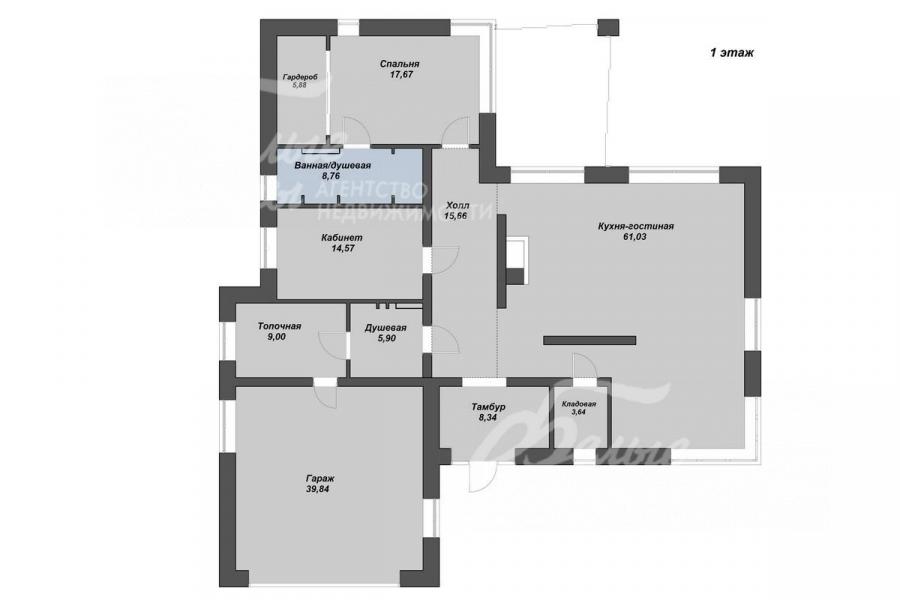
1-ый этаж: прихожая 8 кв.м, холл 15.6 кв.м, санузел с душевой 6 кв.м, кухня с кладовой 3.6 кв.м, гостиная 61 кв.м с камином и выходом на уютную летнюю террасу, спальня 17.6 кв.м с гардеробом 6 кв.м и санузлом 8.7 кв.м, кабинет 14.5 кв.м, котельная 9 кв.м, гараж на 2 м/м 40 кв.м
2-ой этаж: холл 18 кв.м, гардеробная 7 кв.м, детская 27.5 кв.м, санузел с душевой 7.5 кв.м, спальня 18 кв.м с гардеробной 10 кв.м, спальня 18 кв.м с гардеробной 4 кв.м
Описание внутренней отделки: дизайнерская отделка с применением современных качественных материалов. Лучшие материалы декора: печатные обои по индивидуальному заказу, шпонированные обои, керамогранит, краска, декор-панели Белы и «под дерево», листы полированной профилированной стали «Волна». Полы отделаны кварцвинилом, в санузлах - керамогранит, гараж - керамогранит 2 см. Водяные теплые полы во всем доме. Парящая лестница со стеклянным ограждением, облицовка ступеней шпоном дуба. Входная термодверь, выполненная по индивидуальному заказу, внутри три контура обогрева, электронная дверная защелка, стеклопакеты с антивандальной функцией.
Инженерное обеспечение: установлены кондиционеры Haier, единый наружный блок, 6 сплитов в комнатах с раздельным управлением. Оборудована децентрализованная система приточно/вытяжной вентиляции немецкой фирмы GetAir. Система интеллектуального видеонаблюдения и сигнализации Цезарь-Сателлит.
Мебель, оборудование: кухонная столешница из кварцита, встроенная кухонная техника Bosch, холодильник Liebherr, винный шкаф Kuppersbusch. Сантехника Grohe. Камин в гостиной немецкой компании Hoxter.
Дополнительная информация о доме: фундамент - монолитная плита 35 см, железобетонные перекрытия 200 мм из бетона марки 500
Участок
Площадь участка, соток: 14
Тип участка: поле с ландшафтом
Благоустройство участка: участок правильной формы с ухоженным газоном, выполнен ландшафтный дизайн, разведено освещение. Подготовлены площадки для зоны барбекю (4х6), спортивной площадки, хозблока и садовых качелей (забетонированы площадки, подведены коммуникации).
Статус земли: ИЖС
Дополнительная информация об участке: участок огорожен по периметру, откатные ворота при въезде
Коммуникации
Газ: есть (магистральный)
Э/э: есть (15 кВт)
Водопровод: центральный
Канализация: централизованная
Охрана: есть
Описание инфраструктуры
В поселке благоустроена детская и спортивные площадки. Широкие асфальтированные и освещенные дороги. Лесные прогулочные зоны, недалеко живописное озеро. Поселок круглосуточно охраняется: 2 КПП, патруль, видеонаблюдение. Рядом развитая инфраструктура д.Новоглаголево и п. Шишкин лес: д/сады, школы, мед.учреждения, супермаркеты, рестораны, бассейн и т.д. Загородный развлекательный клуб «Лачи» с банным комплексом, рестораном. Транспортная доступность: на авто по 2-м скоростным шоссе –Киевскому и Калужскому, общественный транспорт- ж/д ст. Селятино или от метро Теплый Стан на автобусе 512.
Хочу посмотретьПоделитесь с друзьями:
Похожие предложения:
Дом, Цветочный к/п, 334 м2, 12 сот
Ольховая, Теплый стан - от 29 мин на автоДом, Цветочный к/п
Калужское ш., 24 км + 3 км
пл. участка: 12 сот
пл. дома: 334 м2
меблирован
Спален: 5. С/узлов: 3.
Дом, Приозерный к/п (Вороново), 350 м2, 13 сот
Варшавское шоссе, от МКАД: 42+2 км
Ольховая, Прокшино - от 39 мин на автоДом, Приозерный к/п
Калужское ш., 39 км + 3 км
пл. участка: 13 сот
пл. дома: 350 м2
меблирован
Спален: 4. С/узлов: 5.

Дом, Фортопс КП (Былово), 328 м2, 15 сот
Ольховая, Теплый стан - от 23 мин на автоДом, Фортопс КП
Калужское ш., 24 км + 2 км
пл. участка: 15 сот
пл. дома: 328 м2
меблирован
Спален: 5. С/узлов: 4.











