Продажа дачи, коттеджа, дома на Киевском, Калужском шоссе — цена, описание, фото, расположение на карте.

Дом, Усадьба Жодочи КП

Снят с реализации

Дом под чистовую отделку в коттеджном поселке Усадьба Жодочи

Код: 420-722

Особенности объекта

Новый просторный дом под чистовую отделку в обжитом охраняемом коттеджном поселке бизнес класса "Усадьба Жодочи" со всеми центральными коммуникациями. Функциональная планировка дома предполагает: 5 спален, 2 из которых, на первом этаже, кабинет, гостиная с камином со вторым светом, веранда и несколько террас. Поселок полностью сформирован и расположен в историческом месте, в окружении лесного массива, рядом пруд и река. ИЖС.

Расположение

Ссылка на карту
Усадьба Жодочи КП (Жедочи)
Киевское шоссе, от МКАД: 32 км, всего: 40 км
Калужское шоссе, от МКАД: 29 км, всего: 43 км
Тип застройки: сформированный к/п
Метро: Филатов луг, Рассказовка, Теплый стан; от 33 мин на авто
Коттеджный поселок «Усадьба Жодочи»

Дом

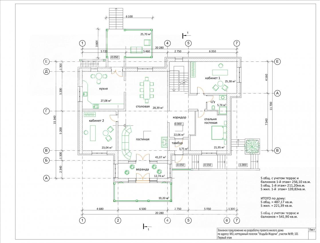
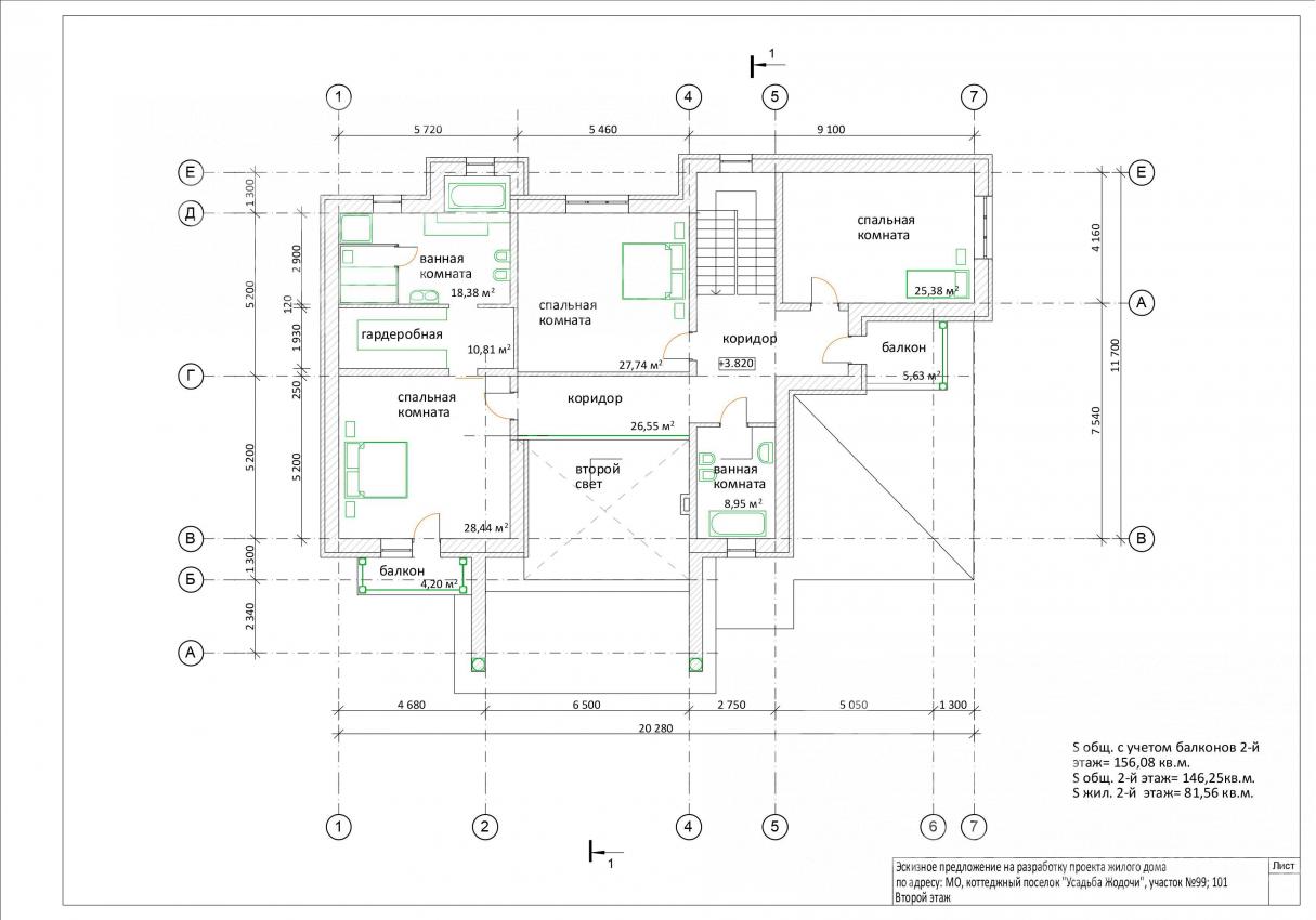
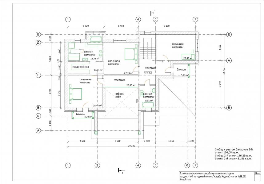
Общая площадь строений: 370 м2
Количество уровней: 2
Спален: 5. С/узлов: 3. Комнат всего: 8.
Опции: терраса; камин; двусветная гостиная, зимний сад.
Материал стен: газосиликатные блоки ((Аэрстоун г.Дмитров)375 мм, пенополистерол 50мм)
Облицовка стен: цоколь – искусственный камень, дом – лицевой кирпич 120мм (Голицинский кирпичный завод)
Кровля: мягкая (битумная черепица (CERTAINTEED, серия – LANDMARK, цвет - BURNT SIENNA, производства США), выполнена по сплошному основанию из ОСП-3 12мм и сплошному подкладочному ковру (CERTAINTEED). В кровле выполнены проходки и установлены вентиляционные трубы, трубы для фановой вентиляции и дымоходы для котла и камина. Свесы кровли подшиты софитами (Дёке). Водосток: стальной (Аквасистемс 150/100).)
Окна: стеклопакеты ПВХ (КВЕ ТЕРМО толщиной 70мм, отливы, москитные сетки. Также установлены мансардные окна Velux GGL м10 1600х780 – 4 шт.)
Стадия готовности: под чистовую отделку
1-ый этаж: гостиная 41 кв.м, кухня 27 кв.м, столовая 28 кв.м, спальня/кабинет 25 кв.м, кабинет 23 кв.м, спальня гостевая 22 кв.м, санузел 6 кв.м, коридор 22 кв.м, тамбур 4 кв.м, веранда 13 кв.м, террасы 19 и 26 кв.м.
2-ой этаж: спальня 28 кв.м с гардеробной 11 кв.м, санузлом 18 кв.м и с выходом на балкон 4 кв.м, спальни 25 и 28 кв.м, санузел 9 кв.м, коридор 27 кв.м, балкон 6 кв.м.
Описание внутренней отделки: стены отштукатурены, залита стяжка пола
Инженерное обеспечение: В дом заведено электричество и выполнена разводка по всем помещениям (9 силовых щитов), выполнено заземление.
Дополнительная информация о доме: Фундамент ленточный монолитный, армированный, с фундаментной пятой. Глубина заложения 1700мм. Перекрытия монолитные. Лестница в доме монолит ж.б. Потолок 2-го этажа утеплен базальтовой ватой 200мм по пароизоляционной пленке и подшит плитами ОСП-3 9мм.

Участок

Площадь участка, соток: 24
Тип участка: полевой
Благоустройство участка: Участок ровный прямоугольной формы в центре поселка. Проведены трубы и колодцы для разводки уличного освещения (9 точек).
Статус земли: земли населенных пунктов под индивидуальное жилищное строительство
Дополнительная информация об участке: установлен забор с автоматическими воротами по периметру участка в едином стиле поселка.

Коммуникации

Газ: есть (магистральный)
Э/э: есть (10 кВт)
Водопровод: центральный
Канализация: централизованная
Интернет: возможно подключение
Охрана: есть (2 КПП, ЧОП)

Ипотека:

возможна

Описание инфраструктуры

В поселке благоустроена детская и спортивные площадки. Широкие асфальтированные и освещенные дороги. Лесные прогулочные зоны, недалеко живописное озеро. Поселок круглосуточно охраняется: 2 КПП, патруль, видеонаблюдение. Рядом развитая инфраструктура д.Новоглаголево и п. Шишкин лес: д/сады, школы, мед.учреждения, супермаркеты, рестораны, бассейн и т.д. Загородный развлекательный клуб «Лачи» с банным комплексом, рестораном. Транспортная доступность: на авто по 2-м скоростным шоссе –Киевскому и Калужскому, общественный транспорт- ж/д ст. Селятино или от метро Теплый Стан на автобусе 512.

Элементы положит. окружения

Поселок находится в центре лесного массива. Рядом река. На КПП магазин, детская площадка, пешеходные прогулочные дорожки.

Хочу посмотреть


Поделитесь с друзьями:

Собираетесь купить дом, дачу или коттедж на Калужском или Киевском направлении? Обязательно воспользуйтесь услугами компании «Белые Ветры», старейшего оператора загородной недвижимости на Юго-западе Подмосковья!
Рейтинг@Mail.ru