Дом, Усадьба Жодочи КП
Код: 420-807
Особенности объекта
Дом расположен на лесном участке, граничит с лесом. Модная качественная отделка. Четыре большие спальни. Центральные коммуникации. Тихое живописное место в лесном массиве.
Расположение
Ссылка на карту
Усадьба Жодочи КП (Жедочи)
Киевское шоссе, от МКАД: 32 км, всего: 40 км
Калужское шоссе, от МКАД: 29 км, всего: 43 км
Тип застройки: формирующийся к/п
Метро: Филатов луг, Рассказовка, Теплый стан; от 33 мин на авто
Коттеджный поселок «Усадьба Жодочи»
Дом
Общая площадь строений: 400 м2
Год постройки дома: 2013
Количество уровней: 3
Спален: 5. С/узлов: 4. Комнат всего: 8.
Опции: терраса; камин.
Материал стен: кирпич
Облицовка стен: Цоколь отделан искусственным камнем, 1 и 2 этажи отделаны фасадной штукатуркой и покрашены по технологии Bau Color с элементами клинкерной плитки и керамической мозаики.
Кровля: металлочерепица
Окна: стеклопакеты ПВХ
Стадия готовности: под ключ
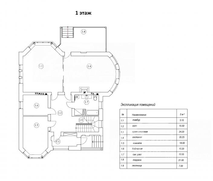
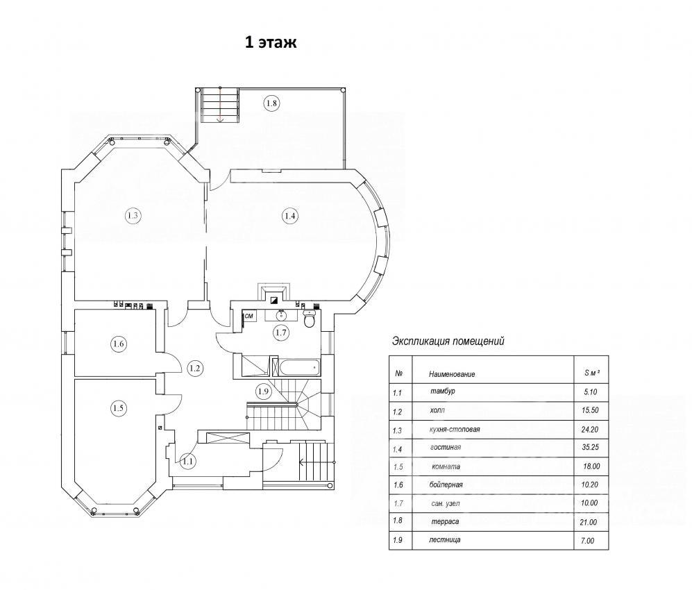
1-ый этаж: Прихожая 5 кв.м, холл 15.5 кв.м, кухня-столовая 24 кв.м, гостиная 35 кв.м с камином с выходом на террасу 21 кв.м, кабинет-спальня 18 кв.м, с/узел 10 кв.м, котельная 10 кв.м.
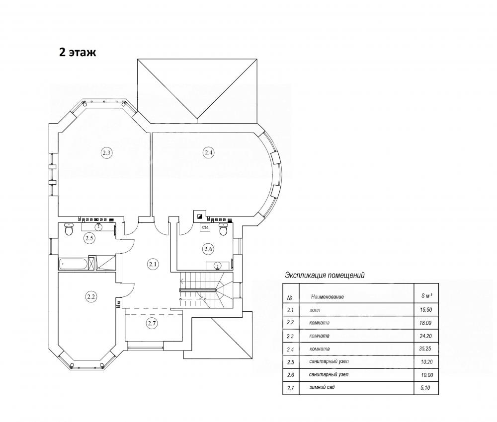
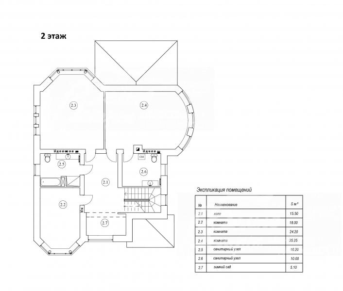
2-ой этаж: Холл 15.5 кв.м, гл. спальня 35 кв.м с с/узлом 10 кв.м, спальня 24 кв.м, спальня 18 кв.м, общий с/узел 10 кв.м, зимний сад 5 кв.м.
3-ий этаж: Холл 29.7 кв.м, бильярдная 45.6 кв.м, спальня 25 кв.м, кинотеатр 18 кв.м с кладовой 10 кв.м, с/узел 8.4 кв.м.
Описание внутренней отделки: Cтены оклеены обоями под покраску (пр-ва Италии), окрашены краской " Венецианка" и " Ренессанс " ( пр-ва Финляндия), в санузлах художественный кафель (пр-ва Италии, Испании). На 1 этаже и в санузлах 2го этажа пол отделан кафелем (теплый пол с водяным подогревом). В жилых комнатах паркетная доска. Крыльцо и терраса отделаны керамогранитом ( пр-ва Испания). Потолки подвесные многоуровневые фигурные со скрытой подсветкой, в комнатах кессоны. Лестница железобетонная монолитная, ступени и поручни дубовые. В доме установлена сантехника марок Cersanit, Vitra, Dreja. Межкомнатные двери шпонированные.
Инженерное обеспечение: Все коммуникации разведены под ключ. Для системы отопления и горячего водоснабжения установлены газовый котел мощностью 60 кВт и бойлер на 200л марки Protherm (пр-ва Чехия). Радиаторы водяного отопления марки "Корадо" ( пр-ва Чехия). Система очистки воды трехуровневая. Кондиционирование представлено фирмой Ballu.
Дополнительная информация о доме: Фундамент монолитный железобетонный, перекрытия - железобетонные плиты.
Участок
Площадь участка, соток: 17
Тип участка: лесной
Благоустройство участка: На участке растут взрослые сосны и ели. Отмостка, площадка для автомобиля и дорожка до крыльца выложены из тротуарной плитки на мягком основании, вокруг отмостки сооружен дренаж с дождеприемником.
Статус земли: Земли населенных пунктов, для индивидуального жилищного строительства
Дополнительная информация об участке: Участок прямоугольной формы, огорожен деревянным забором высотой 1.7 м, с фасада, справа и сзади на кирпичных столбах, слева металлический высотой 2 м.
Коммуникации
Газ: есть (магистральный)
Э/э: есть (10 кВт)
Водопровод: центральный
Канализация: централизованная
Интернет: есть (по границе участка)
Охрана: есть (КПП, патрулирование)
Описание инфраструктуры
В поселке благоустроена детская и спортивные площадки. Широкие асфальтированные и освещенные дороги. Лесные прогулочные зоны, недалеко живописное озеро. Поселок круглосуточно охраняется: 2 КПП, патруль, видеонаблюдение. Рядом развитая инфраструктура д.Новоглаголево и п. Шишкин лес: д/сады, школы, мед.учреждения, супермаркеты, рестораны, бассейн и т.д. Загородный развлекательный клуб «Лачи» с банным комплексом, рестораном. Транспортная доступность: на авто по 2-м скоростным шоссе –Киевскому и Калужскому, общественный транспорт- ж/д ст. Селятино или от метро Теплый Стан на автобусе 512.
Хочу посмотретьПоделитесь с друзьями:
Похожие предложения:
Дом, Голицыно-3 КП, 405 м2, 15.2 сот
Киевское шоссе, от МКАД: 32+8 км
Апрелевка, Рассказовка - от 15 мин на автоДом, Голицыно-3 КП
Минское ш., 28 км + 6 км
пл. участка: 15.2 сот
пл. дома: 405 м2
меблирован
Спален: 4. С/узлов: 2.

Дом, Приозерный к/п (Вороново), 350 м2, 13 сот
Варшавское шоссе, от МКАД: 42+2 км
Ольховая, Прокшино - от 39 мин на автоДом, Приозерный к/п
Калужское ш., 39 км + 3 км
пл. участка: 13 сот
пл. дома: 350 м2
меблирован
Спален: 4. С/узлов: 4.










