Продажа дачи, коттеджа, дома на Киевском, Калужском шоссе — цена, описание, фото, расположение на карте.

Дом, Уварово к/п

Снят с реализации

Код: 284-809

Особенности объекта

Очаровательный дом, под чистовую отделку, в тихом и живописном месте, граничащем с лесом. В доме: 3 уровня, двусветная гостиная с выходом на открытую террасу, кухня, столовая с выходом на участок, 3 спальни, гардеробные, 3 с/узла, 3 балкона, СПА-зона, гараж,мансарда свободного назначения. Качественные материалы строительства, функциональная планировка, прекрасный вид из окон на живописные окрестности. Красивый участок с лесными деревьями (березы, ели).

Расположение

Ссылка на карту
Ирбис кп (Уварово)
Киевское шоссе, от МКАД: 21 км, всего: 28 км
Калужское шоссе, от МКАД: 17 км, всего: 25 км
Тип застройки: формирующийся к/п
Метро: Филатов луг, Рассказовка, Теплый стан; от 25 мин на авто

Дом

Общая площадь строений: 490 м2
Год постройки дома: 2011
Количество уровней: 3
Материал стен: кирпич щелевой+утеплитель
Облицовка стен: фасадная штукатурка Crepi Decor
Кровля: металлочерепица
Окна: стеклопакеты ПВХ
Стадия готовности: под чистовую отделку (гараж и котельная "под ключ")
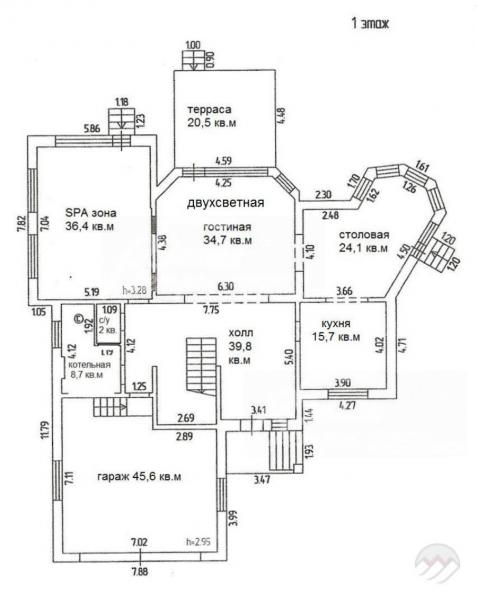
1-ый этаж: крыльцо, прихожая-холл 40 кв.м, кухня 16 кв.м, столовая 24 кв.м с отдельным выходом на участок, двусветная гостиная 35 кв.м с выходом на открытую террасу 20.5 кв.м, СПА-зона 36 кв.м, с/узел, котельная, гараж 45.6 кв.м
2-ой этаж: холл над вторым светом 39 кв.м с балконом, спальня 45 кв.м, с/узел, спальня 17 кв.м с с/узлом 6 кв.м и с балконом 17 кв.м, спальня 19 кв.м с с/узлом 14 кв.м, гардеробной 8 кв.м и балконом
3-ий этаж: мансарда: помещение свободного назначения 130 кв.м
Описание внутренней отделки: стены отшпатлеваны и оштукатурены, выполнена чистовая стяжка пола, потолки выровнены, лестничный марш железобетонный
Инженерное обеспечение: установка котла входит в стоимость, разведен тепловой контур, установлены батареи Kermi, счетчик электричества, вентиляция естественная приточно-вытяжная
Дополнительные строения: Гараж "под ключ" на 2 а/м 45.6 кв.м с автоматическими воротами.
Дополнительная информация о доме: Европейский архитектурный стиль; фундамент и перекрытия монолитные ж/б, высота потолков 3.4 м

Участок

Площадь участка, соток: 12
Тип участка: с лесными деревьями (взрослые березы, ели) и граничит с лесом
Статус земли: земли населенных пунктов, для ИЖС
Дополнительная информация об участке: участок прямоугольной формы, с фасада кованый забор на кирпичных столбах, по бокам - металлопрофиль на фундаменте и металлических столбах

Коммуникации

Газ: есть (магистральный)
Э/э: есть (10 кВт)
Водопровод: индивид. скважина (60 м)
Канализация: автономная (+ центральная ливневая)
Охрана: есть

Описание инфраструктуры

Прогулочная зона в лесном массиве с живым уголком, детскими и спортивными площадками. В 2-х км школа, детский сад, супермаркет, п. Птичное. В 5 км в коттеджном поселке «Империал» расположена гимназия «Доверие» - начальная школа и детский сад; спа отель "Теплеево резорт", Русская теннисная академия, Ресторан "Весна", школа Уникум. В 8 км г.Троицк. За считанные минуты вы сможете добраться до аэропорта Внуково, бизнес-парка "Румянцево", городам Апрелевка и Троицк, где имеется множество разнообразных инфраструктурных объектов.

Элементы положит. окружения

Тихое место, поселок в окружении леса, 2 больших озера в 5 минутах езды.

Хочу посмотреть


Поделитесь с друзьями:

Собираетесь купить дом, дачу или коттедж на Калужском или Киевском направлении? Обязательно воспользуйтесь услугами компании «Белые Ветры», старейшего оператора загородной недвижимости на Юго-западе Подмосковья!
Рейтинг@Mail.ru