Продажа дачи, коттеджа, дома на Киевском, Калужском шоссе — цена, описание, фото, расположение на карте.

Дом, Уварово к/п

Снят с реализации

Код: 284-821

Особенности объекта

Современный дом «под ключ» из кирпича  на участке с ландшафтным дизайном. В доме установлена итальянская сантехника, дорогие осветительные приборы, кухонный гарнитур. На полу итальянская плитка и паркетная доска, на стенах венецианская штукатурка, подоконники  из натурального мрамора. Коттедж расположен в охраняемом коттеджном поселке в лесном массиве между Калужским и Киевским шоссе. Ознакомьтесь с домом с помощью видеоролика

Расположение

Ссылка на карту
Ирбис кп (Уварово)
Киевское шоссе, от МКАД: 21 км, всего: 28 км
Калужское шоссе, от МКАД: 17 км, всего: 25 км
Тип застройки: сформированный к/п
Метро: Филатов луг, Рассказовка, Теплый стан; от 25 мин на авто

Дом

Общая площадь строений: 400 м2
Год постройки дома: 2012
Количество уровней: 3
Спален: 5. С/узлов: 4. Комнат всего: 7.
Опции: сауна; терраса; камин; машиномест крытых: 2, в т.ч. в теплом гараже: 2.
Материал стен: кирпич
Облицовка стен: полимерная фасадная штукатурка Crepi Decor
Кровля: металлочерепица (Швейцария)
Окна: стеклопакеты ПВХ
Стадия готовности: под ключ (с сантехникой, кухонным гарнитуром и осветительными приборами)
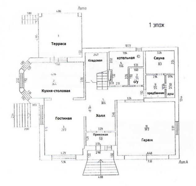
1-ый этаж: Прихожая, холл 25 кв.м, гостиная с немецким камином и выходом во двор 28 кв.м, кухня-столовая 26 кв.м с выходом на террасу 25 кв.м, кладовая под лестницей, с/узел, зона сауны: предбанник 5.5 кв.м, душевая, сауна 8 кв.м; котельная 11 кв.м, гараж 39 кв.м
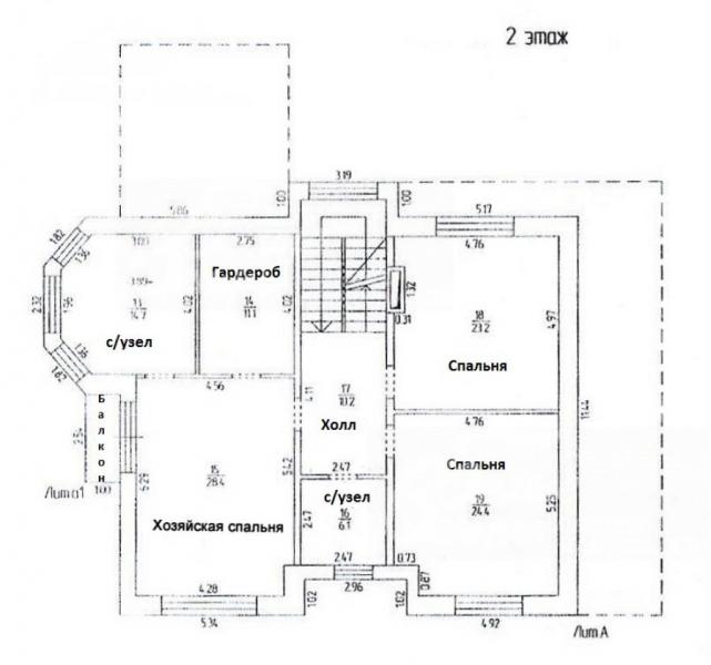
2-ой этаж: холл 10 кв.м, спальни 23 кв.м и 24 кв.м, с/узел 6 кв.м, главная спальня 28 кв.м с гардеробной 11 кв.м, с/узлом 15 кв.м и балконом
3-ий этаж: холл 10 кв.м, спальни 26 кв.м и 24 кв.м, с/узел 7 кв.м, бильярдная 57 кв.м
Описание внутренней отделки: на стенах венецианская штукатурка, окраска, пробка (в бильярдной), в главной спальне выполнена фреска. Отделка полов: плитка с водяным подогревом, паркетная доска, на мансарде ковролин. Железобетонный лестничный марш шириной 1.3 метра с перилами из массива дерева. Установлена итальянская сантехника. Двери - шпон, подоконники - натуральный мрамор. В парной стена за печкой сделана из Гималайской соли.
Инженерное обеспечение: установлены котел Buderus, бойлер Buderus 300 л, многоступенчатая система очистки воды; вытяжка естественно-приточная, установлено 3 кондиционера. Все коммуникации разведены по дому. Установлены 4 видеокамеры по периметру и выведены на домашний монитор.
Мебель, оборудование: Установлен кухонный гарнитур, дорогие осветительные приборы.
Дополнительная информация о доме: Фундамент: монолитный ж/б ленточный, монолитные железобетонные перекрытия, высота потолков 3 м.

Участок

Площадь участка, соток: 10 (возможно докупить еще 10 сот по 14 тыс.$/сот)
Тип участка: с высаженными молодыми деревьями
Благоустройство участка: площадка для стоянки 3 а/м из брусчатки, дорожки из дикого камня, уличное освещение, газон, клумбы, декоративные кустарники, сделана ливневка для водостоков
Статус земли: земли населенных пунктов, для индивидуального жилищного строительства

Коммуникации

Газ: есть
Э/э: есть (15 кВт)
Водопровод: индивид. скважина
Канализация: автономная (Топаз 5, выведен в центральную ливневку)
Охрана: есть

Описание инфраструктуры

Прогулочная зона в лесном массиве с живым уголком, детскими и спортивными площадками. В 2-х км школа, детский сад, супермаркет, п. Птичное. В 5 км в коттеджном поселке «Империал» расположена гимназия «Доверие» - начальная школа и детский сад; спа отель "Теплеево резорт", Русская теннисная академия, Ресторан "Весна", школа Уникум. В 8 км г.Троицк. За считанные минуты вы сможете добраться до аэропорта Внуково, бизнес-парка "Румянцево", городам Апрелевка и Троицк, где имеется множество разнообразных инфраструктурных объектов.

Элементы положит. окружения

Поселок расположен в лесном хвойном массиве.

Хочу посмотреть


Поделитесь с друзьями:

Собираетесь купить дом, дачу или коттедж на Калужском или Киевском направлении? Обязательно воспользуйтесь услугами компании «Белые Ветры», старейшего оператора загородной недвижимости на Юго-западе Подмосковья!
Рейтинг@Mail.ru