Продажа дачи, коттеджа, дома на Киевском, Калужском шоссе — цена, описание, фото, расположение на карте.

Дом, Уварово к/п

Снят с реализации

Усадьба 935 кв.м на лесном участке 65 соток в КП Уварово

Код: 284-826

Особенности объекта

Усадьба, состоящая из основного дома и вспомогательного дома с бассейном, бильярдной и сауной. Редкий по красоте природный ландшафт с естественным оврагом, ручьем и прудом.
Дом со своей изюминкой. В отделке и дизайне интерьера использованы редкие дорогие материалы, элементы декора и мебели. Современная мощная инженерия

Расположение

Ссылка на карту
Ирбис кп (Уварово)
Киевское шоссе, от МКАД: 21 км, всего: 28 км
Калужское шоссе, от МКАД: 17 км, всего: 25 км
Тип застройки: обжитой к/п
Метро: Филатов луг, Рассказовка, Теплый стан; от 25 мин на авто

Дом

Общая площадь строений: 935 м2 (основной дом 399 кв.м+гараж возле дома 48 кв.м+вспомогательный дом 406 кв.м+гараж с котельной 82 кв.м)
Год постройки дома: 2006
Количество уровней: 3
Спален: 5. С/узлов: 6. Комнат всего: 16.
Опции: бассейн; баня; квартира для персонала; терраса; камин; холодный подвал; машиномест крытых: 4, в т.ч. в теплом гараже: 4; пруд, бильярдная, солярий, фонтан.
Материал стен: керамический кирпич+ утеплитель пеноплекс
Облицовка стен: кирпич
Кровля: металлочерепица
Окна: стеклопакеты ПВХ
Стадия готовности: меблирован
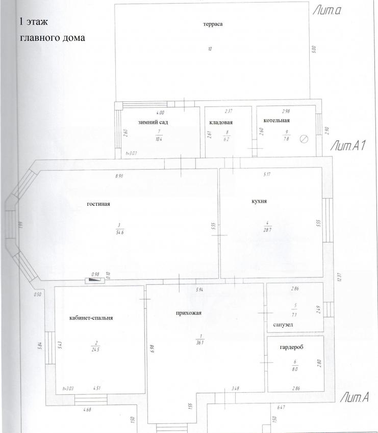
1-ый этаж: Прихожая- холл 36 кв.м с гардеробной 8 кв.м, кухня-столовая 29 кв.м, гостиная 55 кв.м, зимний сад 10 кв.м, спальня-кабинет 24.5 кв.м, с/узел 7 кв.м, прачечная, котельная, терраса 49 кв.м с рольставнями и барбекю
2-ой этаж: Холл 18.5 кв.м, спальня 20 кв.м с гардеробной, спальня 25 кв.м, спальня 20 кв.м с гардеробной , с/узел общий 7 кв.м, главная спальня 27 кв.м с с/узлом 13 кв.м, гардеробной и с балконом
3-ий этаж: Холл 20 кв.м, жилая комната 38 кв.м.
Описание внутренней отделки: Стены окрашены, обработаны декоративной штукатуркой, в санузлах -кафель. Полы отделаны кафелем и керамогранитом с водяным подогревом, паркетной доской из ореха и бамбука. Потолки выровнены и окрашены, в каминном зале деревянные с декоративными балками. Все коммуникации разведены под ключ. Лестничный марш из металлоконструкции с деревянными ступенями. Подоконники бетонные с декоративным покрытием. Вся сантехника установлена марки Ido, Duravit, Rihard Knauff.
Инженерное обеспечение: В основном доме установлен газовый котел Lamborghini 50 кВт, в вспомогательном 2 газовых котла Buderus по 60 кВт. Горячее водоснабжение обеспечивают бойлеры Reflex на 200 л и Buderus на 200л. Система очистки воды многоступенчатая. Вентиляция естественно приточная, в вспомогательном доме принудительная. Установлен генератор и стабилизаторы напряжения. На участке автоматическая система полива Hunter c датчиками влажности газона.
Дополнительные строения: - Гараж на 2 авто ок.48 кв.м (в стиле основного дома);
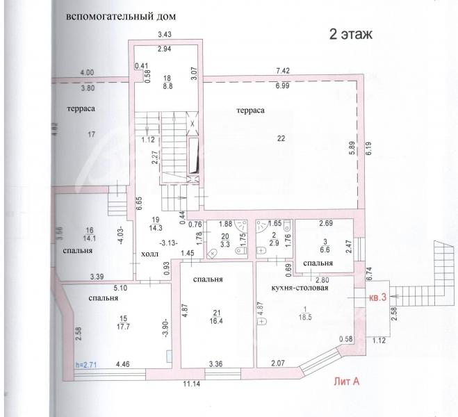
- Вспомогательный дом 389 кв.м (Цоколь: спортзал с солярием 47 кв.м с душевыми и с с/узлом, бильярдная со столом 9-футового русского бильярда, с баром 52 кв.м; 1 эт.: кухня 33 кв.м, кабинет 20 кв.м, с/узел, зона бассейна 42 кв.м с чашей переливного бассейна 5х3.6м, с подогреваемым каменным лежаком, парная с каменной печкой на дровах; Кв.№ 1 (для персонала/гостей) с отдельным входом: кухня-гостиная 23 кв.м, две спальни 10 кв.м и 9 кв.м, с/узел; 2 эт.: холл 14 кв.м с выходом на террасу 41.5 кв.м, спальня 14 кв.м с выходом на террасу 18.5 кв.м, две спальни 18 кв.м и 16 кв.м, с/у; Кв.№ 2 (для персонала/гостей) с отдельным входом с улицы: кухня-столовая 18.5 кв.м, спальня 7 кв.м, с/узел)
- Хозблок: гараж 50 кв. м на 2 авто, котельная 15 кв.м, мастерская 16 кв.м.
- Две теплицы.
- Фонтан
Дополнительная информация о доме: Фундамент железобетонный монолитный ленточный. Перекрытия железобетонные монолитные.

Участок

Площадь участка, соток: 65
Тип участка: лесной
Благоустройство участка: Выполнен ландшафтный дизайн: более 100 взрослых деревьев и различных кустарников, пруд 15х6 м с рыбами, большой фонтан из камня, площадка для 8 авто, вымощенные брусчаткой дорожки, уличное освещение, по участку проходит овраг с ручьем, зона барбекю. Вокруг дома и на участке - дренаж.
Статус земли: Земли населенных пунктов для ИЖС
Дополнительная информация об участке: Участок имеет два заезда, огражден забором из блоков под дикий камень высотой более 3 метров.

Коммуникации

Газ: есть (магистральный)
Э/э: есть (30 кВт)
Водопровод: индивид. скважина (2 скважины)
Канализация: автономная
Телефон: есть (МГТС)
Интернет: есть
Охрана: есть (индивидуальная система сигнализации выведена на ЧОП)

Описание инфраструктуры

Прогулочная зона в лесном массиве с живым уголком, детскими и спортивными площадками. В 2-х км школа, детский сад, супермаркет, п. Птичное. В 5 км в коттеджном поселке «Империал» расположена гимназия «Доверие» - начальная школа и детский сад; спа отель "Теплеево резорт", Русская теннисная академия, Ресторан "Весна", школа Уникум. В 8 км г.Троицк. За считанные минуты вы сможете добраться до аэропорта Внуково, бизнес-парка "Румянцево", городам Апрелевка и Троицк, где имеется множество разнообразных инфраструктурных объектов.

Хочу посмотреть


Поделитесь с друзьями:

Собираетесь купить дом, дачу или коттедж на Калужском или Киевском направлении? Обязательно воспользуйтесь услугами компании «Белые Ветры», старейшего оператора загородной недвижимости на Юго-западе Подмосковья!
Рейтинг@Mail.ru