Продажа дачи, коттеджа, дома на Киевском, Калужском шоссе — цена, описание, фото, расположение на карте.

Дом, Уварово к/п

Снят с реализации

Дом с мебелью пл.399 кв.м на лесном участке 32 сотки в КП Уварово

Код: 284-827

Особенности объекта

Меблированный коттедж в европейском стиле на лесном участке. Оригинальный дизайн из уникальных материалов и предметов интерьера.

Расположение

Ссылка на карту
Ирбис кп (Уварово)
Киевское шоссе, от МКАД: 21 км, всего: 28 км
Калужское шоссе, от МКАД: 17 км, всего: 25 км
Тип застройки: обжитой к/п
Метро: Филатов луг, Рассказовка, Теплый стан; от 25 мин на авто

Дом

Общая площадь строений: 447 м2 (Основной дом 399 кв.м + гараж возле дома 48 кв.м)
Год постройки дома: 2006
Количество уровней: 3
Спален: 5. С/узлов: 4. Комнат всего: 7.
Опции: терраса; камин; холодный подвал; машиномест крытых: 2, в т.ч. в теплом гараже: 2; фонтан.
Материал стен: керамический кирпич+утеплитель пеноплекс
Облицовка стен: кирпич
Кровля: металлочерепица
Окна: стеклопакеты ПВХ
Стадия готовности: меблирован
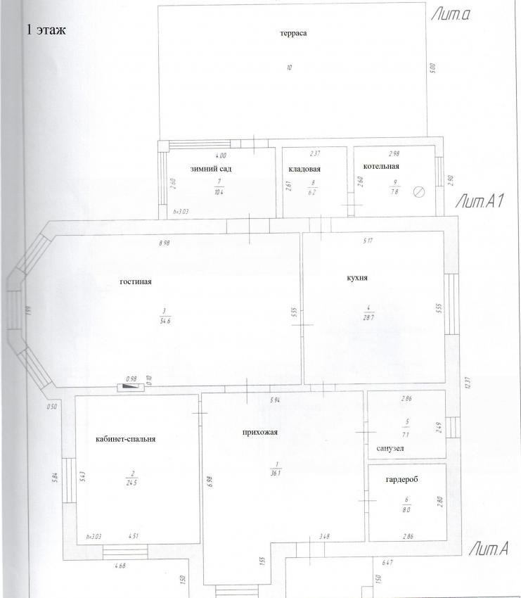
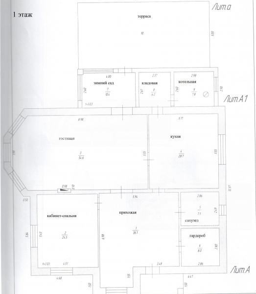
1-ый этаж: Прихожая- холл 36 кв.м с гардеробной 8 кв.м, кухня-столовая 29 кв.м, гостиная 54.6 кв.м c выходом на улицу через зимний сад 10 кв.м, спальня-кабинет 24.5 кв.м, с/узел 7 кв.м, прачечная, котельная 8 кв.м, терраса 49 кв.м с рольставнями и барбекю.
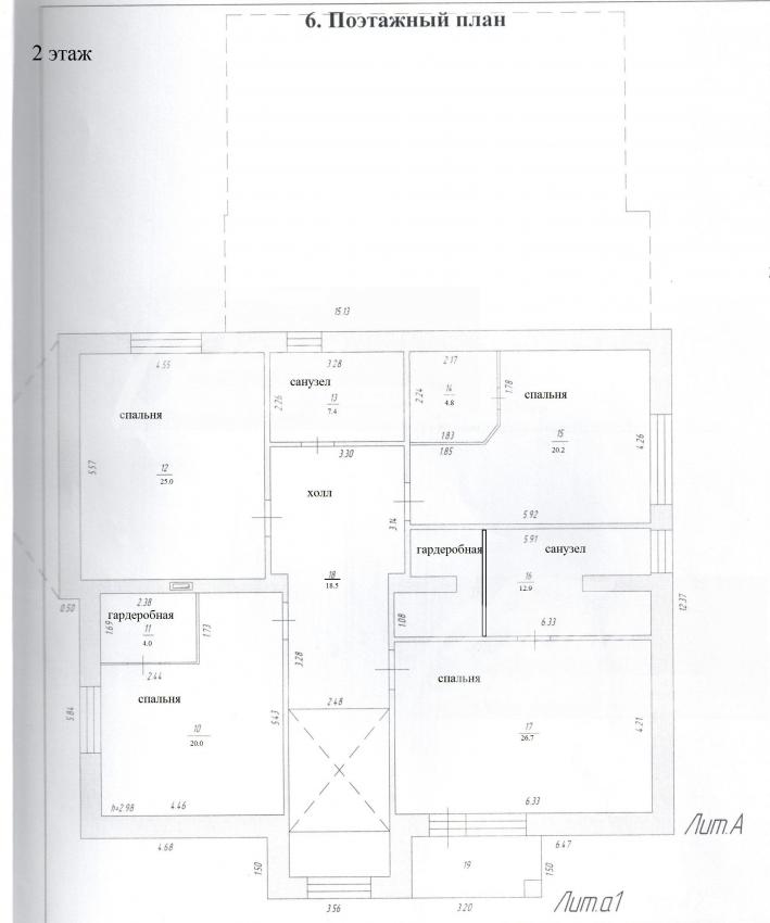
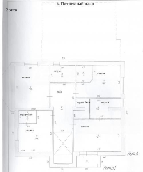
2-ой этаж: Холл 18.5 кв.м, спальня 20 кв.м с гардеробной, спальня 25 кв.м, спальня 20 кв.м с гардеробной, с/узел общий 7 кв.м, главная спальня 27 кв.м с с/узлом 13 кв.м, с гардеробной и с балконом.
3-ий этаж: Холл 20 кв.м, жилая комната 37.7 кв.м
Описание внутренней отделки: В доме современная отделка с использованием дорогих материалов. Стены окрашены, покрыты декоративной штукатуркой, в санузлах кафель. Потолки выровнены,окрашены, в каминном зале деревянные с декоративными балками. Полы отделаны кафелем и керамогранитом с водяным подогревом, паркетной доской из ореха и бамбука.Все коммуникации разведены под ключ. Вся сантехника установлена. Лестничный марш-металлоконструкция с деревянными ступенями. Двери шпонированные. Подоконники из натурального камня доломита.
Инженерное обеспечение: В доме установлены газовый котел Lamborghini 50 кВт и бойлер Reflex на 200 л, генератор и стабилизаторы напряжения. Система очистки воды многоступенчатая. Вентиляция естественно приточная. Для газона организована автоматическая система полива Hunter с датчиками влажности .
Мебель, оборудование: Дом полностью меблирован. Кухонный гарнитур (пр-ва Италия) с пластиковыми фасадами, столешницей из искусственного камня, есть "остров". Встроенная техника: варочная панель Ceran, посудомойка Whirlpool, духовой шкаф и микроволновка марки Neff
Дополнительные строения: Гараж 48 кв.м.
Фонтан.
Дополнительная информация о доме: Фундамент железобетонный монолитный ленточный. Перекрытия железобетонные монолитные.

Участок

Площадь участка, соток: 32
Тип участка: лесной
Благоустройство участка: Выполнен ландшафтный дизайн. Растет около 50 взрослых хвойных деревьев и различных кустарников. Перед домом большой фонтан. На территории проходит овраг с ручьем. На участке и вокруг дома сооружен дренаж.
Статус земли: Земли населенных пунктов для ИЖС
Дополнительная информация об участке: Участок прямоугольной формы, огорожен каменным забором высотой более 3 метров.

Коммуникации

Газ: есть (магистральный)
Э/э: есть (15 кВт)
Водопровод: индивид. скважина
Канализация: автономная
Телефон: есть (МГТС)
Интернет: есть
Охрана: есть (индивидуальная система сигнализации выведена на ЧОП)

Описание инфраструктуры

Прогулочная зона в лесном массиве с живым уголком, детскими и спортивными площадками. В 2-х км школа, детский сад, супермаркет, п. Птичное. В 5 км в коттеджном поселке «Империал» расположена гимназия «Доверие» - начальная школа и детский сад; спа отель "Теплеево резорт", Русская теннисная академия, Ресторан "Весна", школа Уникум. В 8 км г.Троицк. За считанные минуты вы сможете добраться до аэропорта Внуково, бизнес-парка "Румянцево", городам Апрелевка и Троицк, где имеется множество разнообразных инфраструктурных объектов.

Хочу посмотреть


Поделитесь с друзьями:

Собираетесь купить дом, дачу или коттедж на Калужском или Киевском направлении? Обязательно воспользуйтесь услугами компании «Белые Ветры», старейшего оператора загородной недвижимости на Юго-западе Подмосковья!
Рейтинг@Mail.ru