Продажа дачи, коттеджа, дома на Киевском, Калужском шоссе — цена, описание, фото, расположение на карте.

Дом, Уварово к/п

Снят с реализации

Дом под ключ 600 кв.м в кп Уварово

Код: 284-829

Особенности объекта

Новый кирпичный дом с отделкой премиум-класса, с бассейном на лесном участке. Индивидуальный стильный проект. Большие спальни с санузлами. Дорогое качественное инженерное оборудование. Просторный мансардный этаж с оборудованными кинотеатром и тренажерным залом. Охраняемый коттеджный поселок в лесном массиве между Калужским и Киевским шоссе. Ознакомтесь подробнее с домом с помощью видеоролика

Расположение

Ссылка на карту
Ирбис кп (Уварово)
Киевское шоссе, от МКАД: 21 км, всего: 28 км
Калужское шоссе, от МКАД: 17 км, всего: 25 км
Тип застройки: формирующийся к/п
Метро: Филатов луг, Рассказовка, Теплый стан; от 25 мин на авто

Дом

Общая площадь строений: 650 м2
Год постройки дома: 2014
Количество уровней: 3
Спален: 4. С/узлов: 6. Комнат всего: 8.
Опции: бассейн; сауна; машиномест крытых: 2, в т.ч. в теплом гараже: 2; Бассейн скимерный (чаша 2.5 Х 6 м) с противотоком, гидромассажем, с водопадом..
Материал стен: кирпич
Облицовка стен: штукатурка
Кровля: металлочерепица
Окна: стеклопакеты ПВХ
Стадия готовности: под ключ
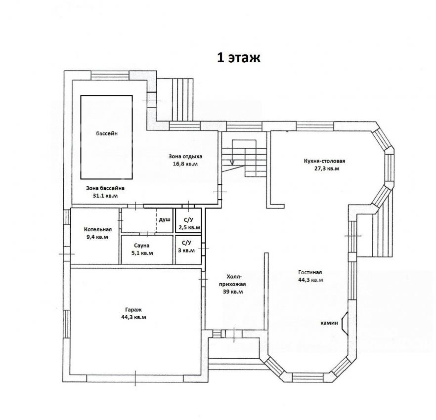
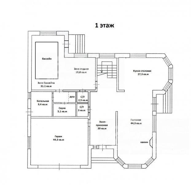
1-ый этаж: Прихожая-холл 39 кв.м, гараж 44 кв.м, кухня-столовая 27 кв.м, гостиная 44 кв.м с камином и выходом на улицу, зона отдыха 17 кв.м, 2 с/узла, зона бассейна 30 кв.м, сауна 5 кв.м, котельная
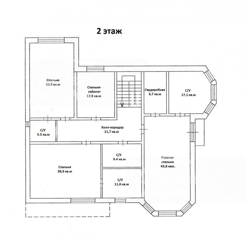
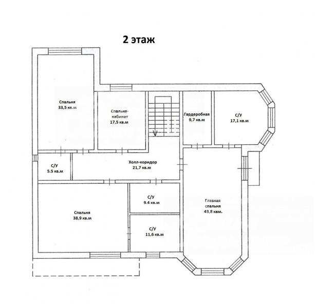
2-ой этаж: Холл 21.7 кв.м, спальня- кабинет 17.5 кв.м, спальня 33.5 кв.м с с/узлом 5.5 кв.м, спальня 39 кв.м с с/узлом 11.6 кв.м, с/узел 9.4 кв.м, хозяйская спальня 44 кв.м с с/узлом 17 кв.м с гардеробной 10 кв.м и с балконом
3-ий этаж: комната отдыха с баром и мини кухней, кинозал с 2 манс.окна, спорт-зал с душем постирочной и гладильной, с/у (1/2), гардеробная 16 кв.м.
Описание внутренней отделки: Стены окрашены французской декоративной краской, в санузлах- кафель. Полы отделаны кафелем, керамогранитом с водяным подогревом ( пр-ва Италия), паркетной доской (пр-ва Германия), ковролином. Потолки подвесные ГКЛ, в зоне бассейна-натяжные, на мансарде-вагонка. Лестничный марш железобетонный монолитный, ступени из белого дуба. Все коммуникации разведены под ключ. Вся сантехника установлена марок Hatria, Villeroy & Boch, Jacob Delafon, Hansgrohe. Двери ручной работы на заказ массив дерева с порталами.
Инженерное обеспечение: Система очистки воды многоступенчатая. В доме установлены газовый котел Buderus на 84 кВт и бойлер косвенного нагрева Buderus на 200 л. В бассейне и на мансарде разведена центральная система вентиляции и установлены кондиционеры 5 шт. марки Hitachi (Split). Дом оснащен системой датчиков движения и камер. Есть счетчики воды и электричества. Оборудование для бассейна установлено.
Мебель, оборудование: Кухонный гарнитур ( пр-ва Германия) с островом (с выезжающей вытяжкой), столешница Corian, со встроенной техникой марки Kuppersbusch (пр-ва Германия), есть газовая вар.панель, и электрическая. Все встроенно (пароварка, СВЧ, кофе машина, фритюрница, ТВ). На мансарде: Мини кухня - бар на заказ по дизайн- проекту с техникой марки Bauknecht ( пр-ва Германия). Мягкая мебель элитной марки Albert&Shtein (Германия).
Дополнительные строения: Выполнен фундамент с холодным подвалом под баню 84 кв.м.
Дополнительная информация о доме: Фундамент железобетонный монолитный ленточный, перекрытия железобетонные монолитные. Высота потолков от 3 м.

Участок

Площадь участка, соток: 12
Тип участка: смешанный лес
Благоустройство участка: Участок с ландшафтным дизайном.Выполнен дренаж вокруг участка и дома. Разбит газон. Организованы дорожки и уличное освещение.
Статус земли: земли населенных пунктов для ИЖС
Дополнительная информация об участке: Участок расположен в центре поселка, огражден металлическим забором с цоколем на каменных столбах высотой 2.5 м.

Коммуникации

Газ: есть (магистральный)
Э/э: есть (12 кВт)
Водопровод: индивид. скважина
Канализация: автономная
Телефон: есть
Интернет: есть
Охрана: есть (КПП)

Описание инфраструктуры

Прогулочная зона в лесном массиве с живым уголком, детскими и спортивными площадками. В 2-х км школа, детский сад, супермаркет, п. Птичное. В 5 км в коттеджном поселке «Империал» расположена гимназия «Доверие» - начальная школа и детский сад; спа отель "Теплеево резорт", Русская теннисная академия, Ресторан "Весна", школа Уникум. В 8 км г.Троицк. За считанные минуты вы сможете добраться до аэропорта Внуково, бизнес-парка "Румянцево", городам Апрелевка и Троицк, где имеется множество разнообразных инфраструктурных объектов.

Элементы положит. окружения

Коттеджный поселок расположен внутри лесного массива, в 5 минутах езды от двух больших озер.

Хочу посмотреть


Поделитесь с друзьями:

Собираетесь купить дом, дачу или коттедж на Калужском или Киевском направлении? Обязательно воспользуйтесь услугами компании «Белые Ветры», старейшего оператора загородной недвижимости на Юго-западе Подмосковья!
Рейтинг@Mail.ru