Продажа дачи, коттеджа, дома на Киевском, Калужском шоссе — цена, описание, фото, расположение на карте.

Дом, Ватутинки ТИЗ к/п

Снят с реализации

Дом в американском стиле в КП ТИЗ Ватутинки

Код: 350-802

Особенности объекта

Меблированный дом в стиле "Сказка" снаружи и в современном стиле, с элементами хай-тек, внутри. В статусном, полностью обжитом КП. Видео. На редкость богатый растительностью, ухоженный участок с множеством взрослых деревьев и кустарников. Итальянская мебель. Аксессуары и картины в стиле сюрреализма. Мощные инженерные системы, воздушная система отопления и кондиционирования. Русская баня, детская площадка.

Расположение

Ссылка на карту
Ватутинки ТИЗ (Десна)
Калужское шоссе, от МКАД: 14 км, всего: 16 км
Тип застройки: обжитой к/п
Метро: Ольховая, Прокшино, Теплый стан; от 15 мин на авто
Коттеджный поселок «Ватутинки ТИЗ»

Дом

Общая площадь строений: 301 м2 (в т.ч.: дом 259.7 кв.м, баня 24 кв.м, хозблок 18 кв.м)
Год постройки дома: 2000
Количество уровней: 3
Спален: 3. С/узлов: 4. Комнат всего: 8.
Опции: бассейн; баня; терраса; камин; холодный подвал; машиномест крытых: 2, в т.ч. в теплом гараже: 2; парная.
Материал стен: канадская технология
Облицовка стен: кирпич, декор.штукатурка, дикий камень
Кровля: мягкая
Окна: стеклопакеты ПВХ (двухкамерные)
Стадия готовности: меблирован
Цоколь: зона отдыха с баром и сценой 39.5 кв.м, холл, с/узел, котельная-прачечная 22 кв.м с выходом на улицу, помещение свободного назначения 13 кв.м, кладовая 8 кв.м
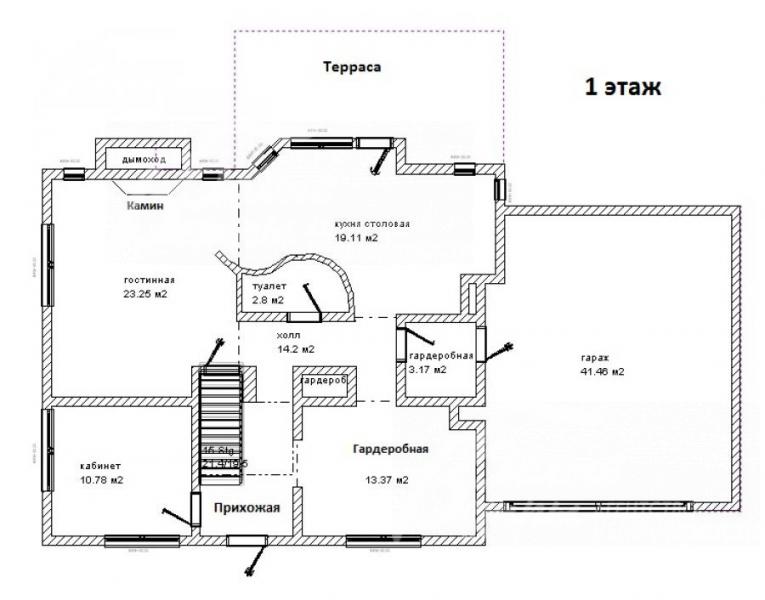
1-ый этаж: прихожая, холл 14 кв.м, гардеробная 13 кв.м, гостевой с/узел, гостиная с камином 23 кв.м, кухня-столовая с выходом на террасу 19 кв.м, кабинет 11 кв.м, гараж 41.5 кв.м (с мойкой и заливным полом).
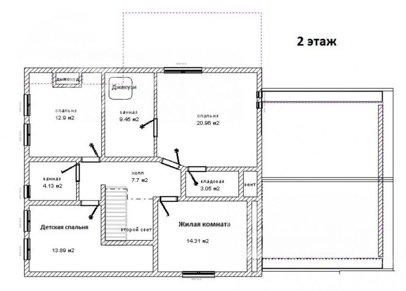
2-ой этаж: холл 8 кв.м, спальня 21 кв.м с с/узлом 9.5 кв.м и гардеробной, спальня 13 кв.м, с/узел 4 кв.м, детская спальня 14 кв.м, жилая комната 14 кв.м
Описание внутренней отделки: стены оклеены обоями, окрашены; пол - качественный ламинат, ковролин, кафель; потолки подвесные разноуровневые, с различной подсветкой; лестничный марш и двери деревянные
Инженерное обеспечение: газовый котел, бойлер на 200 литров; многоуровневая система очистки воды; в доме установлено воздушное отопление со встроенной системой кондиционирования; в доме оборудована сигнализация (датчики движения), камеры по периметру участка; все коммуникации разведены, счетчики воды и электричества
Мебель, оборудование: Дом полностью меблирован, установлен дизайнерский кухонный гарнитур (Италия) со встроенной бытовой техникой. В гостиной камин, в доме на стенах много картин А.Тихонова. Дизайнерское освещение с использованием различных цветов.
Дополнительные строения: - Русская баня 24 кв.м (комната отдыха с кухней, раздевалка, предбанник, парная, душевая, с/узел);
- Хозблок-гараж 6х4м
- Уличный летний бассейн (чаша 10Х4, глубина 1.5 м) с колпаком и противотоком;
- Детская площадка.
Дополнительная информация о доме: Экстерьер дома выполнен в стиле "сказка", интерьер выполнен дизайнерами в стиле "Хай-тек". Фундамент дома монолитный ж/б, перекрытия 1эт. монолитные, 2эт. - деревянные; высота потолков 3 метра.

Участок

Площадь участка, соток: 20
Тип участка: лесной с парковыми деревьями и кустарниками
Благоустройство участка: красивый ландшафтный дизайн с взрослыми деревьями (каштан, клен, голубая ель, сосны, яблони, ивы, пирамидальный тополь, туи) с газоном, дорожками из брусчатки, уличными фонариками
Статус земли: земли населеных пунктов, для ИЖС
Дополнительная информация об участке: участок прямоугольной формы в центре поселка, огорожен деревянным забором с цоколем и кирпичными столбами; сделан дренаж участка и вокруг дома

Коммуникации

Газ: есть (магистральный)
Э/э: есть (20 кВт)
Водопровод: центральный
Канализация: централизованная
Телефон: есть (МГТС)
Интернет: есть
Охрана: есть (строгий КПП, патрулирование территории регулярное)

Описание инфраструктуры

В поселке развитая инфраструктура, своя коммунальная служба (уборка территории, вывоз мусора), собственная резервная дизельная подстанция, есть детская площадка. Освещение улиц поселка и круглосуточная охрана. Хорошее транспортное сообщение с Москвой. В пешей доступности расположены объекты спортивной инфраструктуры ЦСКА, включая конно-спортивный комплекс, футбольный клуб, центр олимпийской подготовки с прекрасным бассейном, спортивную школу и культурно-развлекательный центр с детскими развивающими студиями, это идеальное место для активного отдыха и развития детей. В шаговой доступности находятся ресторан «Наш Бараш», супермаркет «Азбука Вкуса», химчистка, а также муниципальные и частные школы и детские сады. Рядом находятся прекрасный лес и озеро, предоставляющие возможности для прогулок на природе и отдыха на свежем воздухе. В перспективе планируется открытие станции метро «Ватутинки», что ещё больше упростит транспортную доступность.

Элементы положит. окружения

Лесной массив расположен в 100 метрах, река Десна в 200 метрах, тихое место.

Хочу посмотреть


Поделитесь с друзьями:

Собираетесь купить дом, дачу или коттедж на Калужском или Киевском направлении? Обязательно воспользуйтесь услугами компании «Белые Ветры», старейшего оператора загородной недвижимости на Юго-западе Подмосковья!
Рейтинг@Mail.ru