Продажа дачи, коттеджа, дома на Киевском, Калужском шоссе — цена, описание, фото, расположение на карте.

Дом, Ваутутинки к/п

Снят с реализации

Коттедж 445 кв.м под отделку в обжитом к/п ВауТутинки

Код: 140-412

Особенности объекта

Качественно построенный коттедж под отделку с отличной планировкой в одном из элитных коттеджных поселков с собственной инфраструктурой. На просторном участке расположено отдельное здание гаража с квартирой для персонала, все центральные коммуникации. 

Расположение

Ссылка на карту
Ваутутинки к/п (Ватутинки)
Калужское шоссе, от МКАД: 15 км, всего: 17 км
Тип застройки: обжитой к/п
Метро: Ольховая, Теплый стан, Щербинка; от 14 мин на авто
Коттеджный поселок «ВауТутинки»

Дом

Общая площадь строений: 578 м2 (в т.ч.: дом 445 кв.м, гараж с квартирой для персонала 133 кв.м)
Год постройки дома: 2008
Количество уровней: 3
Спален: 4. С/узлов: 5. Комнат всего: 7.
Опции: сауна; квартира для персонала; терраса; камин; машиномест крытых: 4, в т.ч. в теплом гараже: 4.
Материал стен: кирпич
Облицовка стен: высококачественный клинкер пр-ва Бельгии
Кровля: металлочерепица
Окна: стеклопакеты ПВХ (двухкамерные)
Стадия готовности: под чистовую отделку
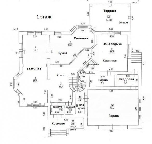
1-ый этаж: крыльцо, тамбур, гардеробная 2 кв.м, холл 32 кв.м, кухня-столовая 26 кв.м с выходом на террасу 26 кв.м, гостиная 23.5 кв.м, с/узел, кладовая, зона отдыха 28 кв.м с камином и выходом на террасу, сауна 7 кв.м; гараж 44 кв.м с кладовой 5 кв.м, кладовая 6 кв.м с выходом на участок
2-ой этаж: холл/кабинет 44 кв.м, с/узел 9 кв.м, Главная спальня 19 кв.м с с/узлом 13.5 кв.м, гардеробной 6 кв.м и балконом, спальня 17 кв.м с эркером, спальня 18.6 кв.м с с/узлом 6 кв, спальня 21 кв.м с с/узлом 2.5 кв.м
3-ий этаж: мансарда 92.5 кв.м - помещение свободного назначения с 5 мансардными окнами, оборудован вывод под устройство с/узла
Описание внутренней отделки: стены оштукатурены, выстроен бетонный лестничный марш, установлены радиаторы отполения
Инженерное обеспечение: установлены котел Buderus Logon G334 на 70 кВт и бойлер Buderus на 400 литров, радиаторы Roca; смонтировано отопление (все стояки), вентиляция естественная приточно-вытяжная, счетчики электричества и воды
Дополнительные строения: Гараж с квартирой для персонала 133 кв.м: 1 этаж - гараж на 2 м/м (отделан плиткой до потолка) и котельная; 2 этаж - квартира для персонала 40 кв.м
Дополнительная информация о доме: Дом выстроен в стиле Неоклассики. Фундамент дома - железобетонные сваи, перекрытия - железобетонные плиты, высота потолков 3 метра.

Участок

Площадь участка, соток: 26
Тип участка: с деревьями
Благоустройство участка: на участке газон, высажено 20 деревьев (туи, ели, рябина и др.), система освещения, выложены дорожки, сделан дренаж
Статус земли: земли населенных пунктов, для ИЖС
Дополнительная информация об участке: ровный участок прямоугольной формы в центре поселка, огорожен кованным забором с кирпичными столбами и фундаментом, автоматические ворота

Коммуникации

Газ: есть (магистральный)
Э/э: есть (30 кВт)
Водопровод: центральный
Канализация: централизованная
Телефон: возможно подключение (оптоволокно)
Интернет: возможно подключение (оптоволокно)
Охрана: есть (КПП, патрулирование)

Описание инфраструктуры

В поселке спортивно-развлекательный центр (фитнес-зал, бассейн, сауны, боулинг, бильярдный зал, банкетный зал, бар-кафе, мини-детский сад), зона отдыха на берегу небольшого пруда, площадка для игр (большой теннис, минифутбол, волейбол); детская площадка; служба доставки продуктов, прачечная, гостевая автостоянка

Элементы положит. окружения

Лесной массив расположен 100 метрах, в поселке свой пруд с пляжной зоной.

Хочу посмотреть


Поделитесь с друзьями:

Собираетесь купить дом, дачу или коттедж на Калужском или Киевском направлении? Обязательно воспользуйтесь услугами компании «Белые Ветры», старейшего оператора загородной недвижимости на Юго-западе Подмосковья!
Рейтинг@Mail.ru