Продажа дачи, коттеджа, дома на Киевском, Калужском шоссе — цена, описание, фото, расположение на карте.

Дом, Воскресенское

Снят с реализации

Код: 135-910

Особенности объекта

Современный коттедж с хорошей мебелью и дорогостоящими материалами отделки ждет новых хозяев. Удобная планировка, в доме есть все необходимое для комфортного проживания. Две кухни, одна из которых с отдельным выходом - для персонала, 3 спальни (одна спальня на 1-ом этаже), тренажерный зал, балкон, просторная кухня-гостиная с камином, баня с печью и зоной отдыха. В пешей доступности водоем с утками, лес, остановка общественнного транспорта до м.Бунинская аллея. Городская инфраструктура в поселке Воскресенское. 

Расположение

Ссылка на карту
Воскресенское
Калужское шоссе, от МКАД: 8 км, всего: 10 км
Тип застройки: дачный поселок
Метро: Ольховая, Теплый стан, Бунинская аллея; от 7 мин на авто

Дом

Общая площадь строений: 220 м2
Год постройки дома: 2012
Спален: 3. С/узлов: 2. Комнат всего: 6.
Опции: баня; терраса; камин; машиномест крытых: 2; Балкон.
Материал стен: пеноблок 50 см, утеплитель пеноплекс 10 см
Облицовка стен: имитация камня
Кровля: оцинкованный профлист
Окна: стеклопакеты ПВХ (двухкамерные)
Стадия готовности: меблирован
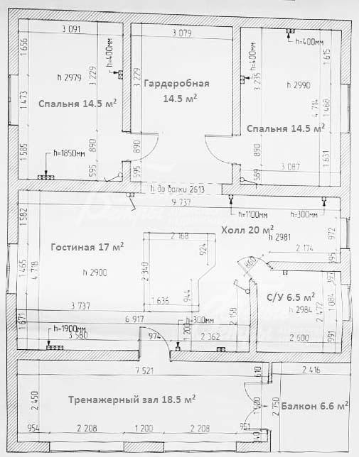
1-ый этаж: крыльцо 6 кв.м, холл 21 кв.м, кухня-гостиная с камином 47 кв.м, спальня 16 кв.м, санузел 7 кв.м, коридор 4 кв.м, постирочная со второй кухней 7 кв.м, терраса 13 кв.м
2-ой этаж: холл 20 кв.м, вторая гостиная 17 кв.м, 2 спальни по 15 кв.м, гардеробная 15 кв.м, санузел 7 кв.м, тренажерный зал 19 кв.м, балкон 7 кв.м
Описание внутренней отделки: В современном стиле: на 1 этаже - обои, на 2 этаже - декоративная штукатурка, в санузлах плитка, на полу - ламинат. Лестничный марш - натуральный бук с перилами из нержавеющей стали
Инженерное обеспечение: комбинированный котел Protherm, бойлер Simat 200 л.
Мебель, оборудование: Дом полностью меблирован, вся мебель польская; кухня сиреневого цвета выполнена по индивидуальному дизайну компанией "Кухонный двор", столешница из камня, встроенный холодильник Neff, посудомоечная машина 60 см Bosh, остров с газовой плитой, вытяжка - Best; камин с электрообогревом 2 кВт и имитацией огня Diplex, стиральная машина Samsung, сушилка Electrolux, холодильник Haier, кухня для персонала встроенная, диваны и спальные гарнитуры, в столовой обеденная группа, оригинальные стулья в кухне, кожаная мебель в гостиной, большой замшевый диван в гостиной 2 этажа
Дополнительные строения: Баня 1-этажная, 23 кв.м, в стиле дома: парная с печью "Везувий" (русская, типа каменка), комната отдыха 11 кв.м, с/узел 2 кв.м, душ 4 кв.м. Отделка парной - липа. Мебель - деревянная, массив.

Участок

Площадь участка, соток: 6
Статус земли: Земли поселений, для ведения садоводства
Дополнительная информация об участке: 400м до водоема с утками, 500м до леса, в 800м - остановка маршрутки, до м.Бунинская аллея

Коммуникации

Газ: нет (есть проект по СНТ, есть подключение в дом, подключение 2019 г.)
Э/э: есть
Водопровод: центральный
Канализация: автономная
Телефон: нет
Интернет: нет
Охрана: нет

Описание инфраструктуры

Инфраструктура п. Воскресенское в 15 мин пешком. Так же в пешей доступности: новая поликлиника 10 мин, школа №338 - 15 мин и детский сад -10 мин, фитнес в КП Юрьев сад - 5 мин, магазин Магнит -10 мин. Так же в шаговой доступности Дом отдыха "Воскресенское" с бассейном и спортивно-развлекательным комплексом.

Элементы положит. окружения

В шаговой доступности водоем и лес. Рядом городская инфраструктура поселка Воскресенское: школы, детские сады, новая поликлиника, супермаркет Магнит и остановка общественного транспорта

Хочу посмотреть


Поделитесь с друзьями:

Собираетесь купить дом, дачу или коттедж на Калужском или Киевском направлении? Обязательно воспользуйтесь услугами компании «Белые Ветры», старейшего оператора загородной недвижимости на Юго-западе Подмосковья!
Рейтинг@Mail.ru