Продажа дачи, коттеджа, дома на Киевском, Калужском шоссе — цена, описание, фото, расположение на карте.

Дом, Заречный КП

Снят с реализации

Готовый к проживанию дом 328 кв.м в кп "Заречный"

Код: 109-403

Особенности объекта

Внимание!!! Срочная продажа!!! Поропитесь, очень выгодная цена на данный дом, цена ниже рынка!!! Кирпичный дом с мебелью, полностью готовый к проживанию. Просторная гостиная с камином и выходом в зимний сад, кухня-столовая, пять спален, кабинет, зона сауны. На участке с ландшафтным дизайном навес на два автомобиля, беседка-барбекю. Камерный, обжитой поселок с центральными коммуникациями

Расположение

Ссылка на карту
Заречный КП (Ватутинки)
Калужское шоссе, от МКАД: 15 км, всего: 16 км
Тип застройки: обжитой к/п
Метро: Ольховая, Теплый стан, Прокшино; от 12 мин на авто
Коттеджный поселок «Заречный»

Дом

Общая площадь строений: 328 м2
Количество уровней: 4
Спален: 5. С/узлов: 3. Комнат всего: 7.
Опции: сауна; машиномест крытых: 2.
Материал стен: кирпич
Облицовка стен: штукатурка + бетонный декор ( карниз, наличники)
Кровля: металлочерепица
Окна: стеклопакеты ПВХ
Стадия готовности: меблирован
Цоколь: Холл с гардеробной 13 кв.м, санузел 7 кв.м, котельная 9 кв.м, комната отдыха 24 кв.м, тамбур, сауна и душевая 16 кв.м.
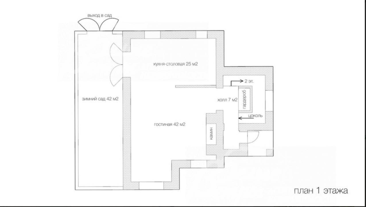
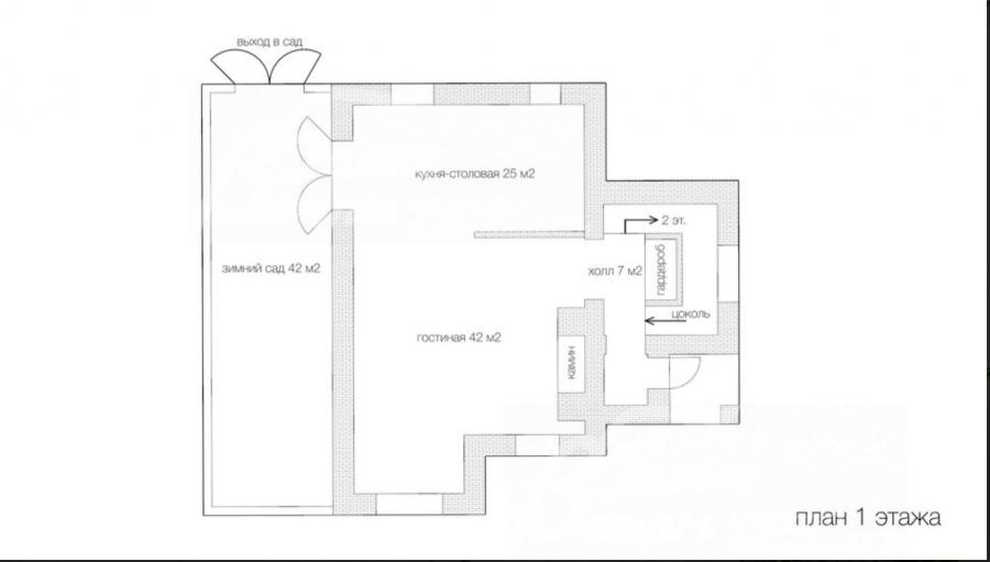
1-ый этаж: Холл 7 кв.м, гостиная 42 кв.м, кухня-столовая 25 кв.м, зимний сад 42 кв.м.
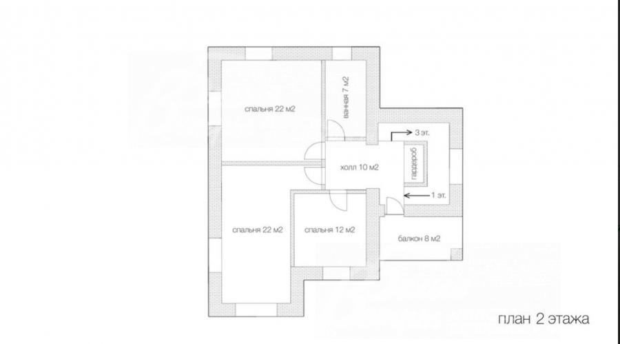
2-ой этаж: Холл 10 кв.м с выходом на балкон 8 кв.м, спальня 12 кв.м, ванная 7 кв.м, спальня 22 кв.м, спальня 22 кв.м.
3-ий этаж: Холл 13 кв.м, санузел 6 кв.м, кабинет 16 кв.м, спальня 31 кв.м.
Описание внутренней отделки: Стены оклеены обоями,оштукатурены; полы покрыты паркетной доской, плиткой с подогревом; потолки оштукатурены; установлен монолитный лестничный марш облицован плиткой; выполнена разводка коммуникаций по дому, установлена дорогая сантехника
Инженерное обеспечение: Установлены котел на 65 кВт и бойлер на 300 л "Buderus"; 3-х ступенчатая система очистки воды; естественная приточно-вытяжная вентиляция, в некоторых комнатах кондиционеры
Мебель, оборудование: Дом полностью меблирован, кухонный гарнитур с техникой
Дополнительные строения: навес на 5 а/м, беседка-барбекю 30 кв.м крытая из камня и дерева
Дополнительная информация о доме: Фундамент ленточный монолитный, перекрытия железобетонные.

Участок

Площадь участка, соток: 15
Тип участка: лесной
Благоустройство участка: на участке сделан дренаж, организован газон, вымощены дорожки, освещение, растут взрослые деревья: клен, туи, голубая ель, ива, рябина и т.д.
Статус земли: ИЖС, земли поселений
Дополнительная информация об участке: участок прямоугольной формы, огорожен деревянным забором на кирпичных столбах. Электрические ворота

Коммуникации

Газ: есть (магистральный)
Э/э: есть
Водопровод: центральный
Канализация: централизованная
Телефон: есть
Интернет: есть
Охрана: есть

Описание инфраструктуры

Рядом ресторан «ВАУcafe» и магазин, спортивный клуб ЦСК с футбольным полем и бассейном

Элементы положит. окружения

Близость к Москве, престижное место.

Хочу посмотреть


Поделитесь с друзьями:

Собираетесь купить дом, дачу или коттедж на Калужском или Киевском направлении? Обязательно воспользуйтесь услугами компании «Белые Ветры», старейшего оператора загородной недвижимости на Юго-западе Подмосковья!
Рейтинг@Mail.ru