Дом, Зеленые холмы к/п
Снят с реализации
Код: 252-801
Особенности объекта
Новый коттедж с современной отделкой под ключ в строго охраняемом коттеджном поселке Зеленые холмы. Удобный функционал: 4 больших спальни, просторные гостиная и кухня-столовая с выходом на крытую террасу. Выполнена качественная отделка в светлых тонах, в санузлах установлена сантехника ведущих производителей. Высокие потолки и окна. Дом располагается на ухоженном участке с газоном и надежным ограждением. Коттеджный поселок со всеми центральными коммуникациями.
Расположение
Ссылка на карту
Зеленые холмы к/п (Першино)
Киевское шоссе, от МКАД: 21 км, всего: 25 км
Тип застройки: сформированный к/п
Метро: Филатов луг, Рассказовка, Теплый стан; от 23 мин на авто
Коттеджный поселок «Зеленые Холмы»
Дом
Общая площадь строений: 250 м2
Год постройки дома: 2020 (отделка в 2021 г.)
Количество уровней: 2
Спален: 4. С/узлов: 3. Комнат всего: 5.
Опции: терраса.
Материал стен: пеноблок D-500 толщина 30 см + 30 мм утеплитель (пенополистирол)
Облицовка стен: цоколь и 1 этаж - искусственный камень, 2 этаж - декоративная штукатурка (Короед)
Кровля: мягкая
Окна: стеклопакеты ПВХ (KBE белые 2-х камерные, высота: 1 этаж - 2,52 м, 2 этаж - 1,74 м)
Стадия готовности: под ключ
1-ый этаж: крыльцо 7 кв.м, прихожая 5.5 кв.м, холл 18 кв.м, гостиная 36 кв.м, кухня-столовая 22 кв.м с выходом на крытую террасу 24 кв.м, спальня-кабинет 16 кв.м, санузел 4.5 кв.м (с душевой), котельная-постирочная 5 кв.м.
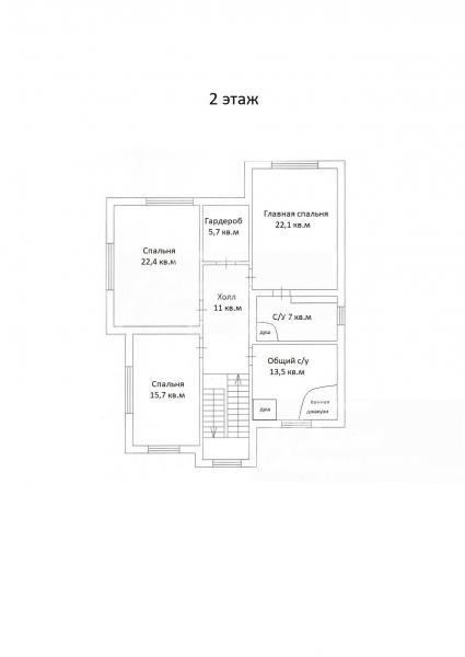
2-ой этаж: холл 11 кв.м, спальня 16 кв.м, спальня 22 кв.м, главная спальня 22 кв.м с санузлом 7 кв.м (душевая, биде), общий санузел 13.5 кв.м (душевая, ванная с гидромассажем, биде), общая гардеробная 6 кв.м.
Описание внутренней отделки: выполнена современная отделка со вкусом, преимущественно в светлых тонах. На стенах обои (Италия), в санузлах - плитка 120х60 см. На полу керамогранит с водяным подогревом, паркетная доска Tarkett (дуб). Деревянная лестница (дуб) стандартной ширины, перила деревянные. Подвесные многоуровневые потолки из ГКЛ со встроенной подсветкой. Установлена импортная сантехника: Sanita Luxe, VitrA, Lemark. Тумбы AQUATON. Все коммуникации разведены, радиаторы стальные Kermi, э/э Lengrand Valena. Деревянные межкомнатные двери из массива с филенками белые.
Инженерное обеспечение: в доме установлены газовый котел Viessmann 2-х контурный 34 кВт и насос нагнетательный водяной. Естественно приточная вентиляция. Видеодомофон. Проводной интернет по всему дому.
Дополнительная информация о доме: дом выполнен в современном архитектурном стиле. Фундамент ж/б ленточный, плиты перекрытия ж/б монолитные (на чердак деревянные). Высота потолков: 1 этаж - 3,14 м; 2 этаж - 2,85 м.
Участок
Площадь участка, соток: 8
Тип участка: без деревьев
Благоустройство участка: на участке устроена площадка на 2 авто из брусчатки, высажен газон, установлены уличные фонари. Организован ливневый дренаж вокруг дома.
Статус земли: земли населенных пунктов под МЖС
Дополнительная информация об участке: участок правильной формы находится в центре поселка и огорожен забором из профлиста на каменных столбах с бетонным цоколем.
Коммуникации
Газ: есть (магистральный)
Э/э: есть (10 кВт)
Водопровод: центральный (ВЗУ на поселок)
Канализация: централизованная (очистные на поселок)
Охрана: есть (КПП + патрулирование)
Описание инфраструктуры
В коттеджном поселке есть КПП, гостевая парковка, административное задание, в котором располагаются коммунальные и бытовые службы. Организованы детские и спортивная площадки. Для любителей рыбной ловли большая находка - наличие небольшого пруда. Рядом находится развитая инфраструктура поселения Первомайского: детские сады (частные, муниципальные г. Москвы), 4 средних школы (частные, муниципальные г. Москвы), городская поликлиника, теннисная академия с секциями различных видов спорта и досуга, торговый центр, супермаркеты «Зеленый Перекресток», «Пятерочка», «Дикси», а так же СПА-отель "ИМПЕРИАЛ".
Хочу посмотретьПоделитесь с друзьями:
Похожие предложения:
Дом, Цветочный-2 КП, 283 м2, 8 сот
Ольховая, Теплый стан - от 29 мин на автоДом, Цветочный-2 КП
Калужское ш., 24 км + 5 км
пл. участка: 8 сот
пл. дома: 283 м2
меблирован
Спален: 5. С/узлов: 3.

Дом, Минзаг, 240 м2, 6 сот
Ольховая, Теплый стан - от 22 мин на автоДом, Минзаг
Калужское ш., 22 км + 3 км
пл. участка: 6 сот
пл. дома: 240 м2
под ключ
Спален: 4. С/узлов: 2.
Дом, Фортопс КП (Былово), 249 м2, 7.36 сот
Ольховая, Теплый стан - от 23 мин на автоДом, Фортопс КП
Калужское ш., 24 км + 2 км
пл. участка: 7.36 сот
пл. дома: 249 м2
под ключ
Спален: 4. С/узлов: 3.











