Дом, Зеленый Дом Десна к/п
Код: 513-801
Особенности объекта
Коттедж премиум-класса расположен в одном из лучших коттеджных поселков на Калужском шоссе. Поселок находится на территории д/о «Десна» Управления Делами Президента, в лесном массиве на берегу реки. Коттедж кирпичный 4-хуровневый с мансардой и цокольным этажем, выполнен под финишную отделку. В доме 9 спален, 5 санузлов, 2 каминных зала, гараж на 2 а/м, сауна. Красивый двухуровневый участок с ландшафтным дизайном.
Расположение
Ссылка на карту
Зеленый Дом Десна к/п (Десна)
Калужское шоссе, от МКАД: 11 км, всего: 13 км
Тип застройки: обжитой к/п
Метро: Ольховая, Теплый стан, Бунинская аллея; от 10 мин на авто
Коттеджный поселок «Зеленый Дом Десна»
Дом
Общая площадь строений: 827 м2
Год постройки дома: 2004
Количество уровней: 4
Спален: 9. С/узлов: 6. Комнат всего: 13.
Опции: камин; холодный подвал; машиномест крытых: 2, в т.ч. в теплом гараже: 2.
Материал стен: кирпич+утеплитель
Облицовка стен: клинкерная плитка, штукатурка
Кровля: металлочерепица
Окна: стеклопакеты ПВХ
Стадия готовности: под финишную отделку
Цоколь: комната отдыха 73 кв.м с душевой и парной, с/узел 5 кв.м, котельная 11 кв.м, кладовая 6 кв.м, постирочная 14 кв.м
1-ый этаж: крыльцо, гараж на 2 авто 44 кв.м, прихожая с гардеробной 7 кв.м, гостевой с/узел 4 кв.м, каминный зал с выходом в зимний сад 12 кв.м, объединенный с кухней и столовой (общая площадь зала 141 кв.м), 3 жилых комнаты (13+21+25 кв.м), одна из которых имеет выход во двор (могут быть использованы в качестве гостевых спален или кабинета), c/узел 5 кв.м
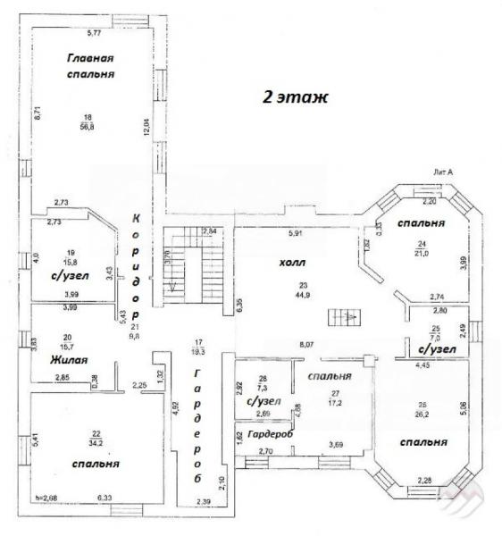
2-ой этаж: Главная спальня 57 кв.м, с/узел 16 кв.м, гардеробная 19 кв.м, две спальни 16 и 34 кв.м, каминный зал 45 кв.м, спальня 17 кв.м с собственным с/узлом и гардеробной, две спальни с эркерами 21 и 26 кв.м, с/узел 7 кв.м
3-ий этаж: мансарда - помещение свободного назначения 129 кв.м
Описание внутренней отделки: стены оштукатурены, сделана чистовая стяжка пола (теплый пол); лестничный марш монолитный, установлена входная дверь
Инженерное обеспечение: установлены котел De Dietrich, радиаторы; выполнена разводка всех коммуникаций по дому, счетчики воды и электричества
Дополнительная информация о доме: Современный архитектурный стиль; перекрытия дома железобетонные, высота потолков 3 метра
Участок
Площадь участка, соток: 15.6
Тип участка: парковый
Благоустройство участка: выполнен ландшафтный дизайн: высажены деревья, кустарники, организованы клумбы, альпийские горки, газон, дорожки, освещение участка; оборудован автополив, сделан дренаж
Статус земли: земли поселений, для ИЖС
Дополнительная информация об участке: участок прямоугольной формы, расположен в центре поселка, огорожен кованым забором
Коммуникации
Газ: есть (магистральный)
Э/э: есть (24 кВт)
Водопровод: центральный
Канализация: централизованная
Охрана: есть (строго охраняемый поселок)
Описание инфраструктуры
Полная инфраструктура санатория "Управления Делами Президента" (около 300 врачей, лучшая медицинская аппаратура), собственный пляж, парковая зона, теннисные корты, площадки для баскетбола и волейбола, крытый бассейн.
Элементы положит. окружения
Обжитой поселок в тихом живописном месте, граничит с лесным массивом, по территории протекают две реки.
Хочу посмотретьПоделитесь с друзьями:
Похожие предложения:
Дом, Горчаково, 746 м2, 16.5 сот
Киевское шоссе, от МКАД: 21+9 км
Ольховая, Теплый стан - от 24 мин на автоДом, Горчаково
Калужское ш., 17 км + 10 км
пл. участка: 16.5 сот
пл. дома: 746 м2
меблирован
Спален: 5. С/узлов: 4.


Дом, Акиньшино, 758.3 м2, 13.2 сот
Филатов луг, Саларьево - от 15 мин на автоДом, Акиньшино
Киевское ш., 20 км + 6 км
пл. участка: 13.2 сот
пл. дома: 758.3 м2
под ключ
Спален: 6. С/узлов: 3.


Дом, Светлый к/п (Губцево), 700 м2, 18 сот
Ольховая, Теплый стан - от 26 мин на автоДом, Светлый к/п
Калужское ш., 17 км + 5 км
пл. участка: 18 сот
пл. дома: 700 м2
меблирован
Спален: 6. С/узлов: 3.

Дом, Чароит КП (Ватутинки), 700 м2, 16 сот
Ольховая, Теплый стан - от 14 мин на автоДом, Чароит КП
Калужское ш., 14 км + 1 км
пл. участка: 16 сот
пл. дома: 700 м2
меблирован
Спален: 9. С/узлов: 6.

Дом, Согласие-2 КП (Фоминское), 736 м2, 20 сот
Ольховая, Теплый стан - от 20 мин на автоДом, Согласие-2 КП
Калужское ш., 14 км + 3 км
пл. участка: 20 сот
пл. дома: 736 м2
меблирован
Спален: 6. С/узлов: 6.
|
|
|



















