Продажа дачи, коттеджа, дома на Киевском, Калужском шоссе — цена, описание, фото, расположение на карте.

Дом, Жуковка-2 КП

Снят с реализации

Готовый к проживанию дом 435 кв.м в кп Жуковка-2

Код: 389-803

Особенности объекта

Добротный, душевный дом с мебелью в обжитом коттеджном поселке Жуковка-2. Дизайнерский проект. На ухоженном участке гостевой дом, квартира для персонала, гараж, беседка с барбекю и французским камином, детская площадка, хозяйственный блок. Теплица с разведенным под землей автополивом. Зеленый большой участок с клумбами, лесными и плодовыми деревьями и кустарниками. В 5 мин езды развитая инфраструктура г.Троицка (школы, детсады, больницы, магазины)

Расположение

Ссылка на карту
Жуковка-2 КП
Калужское шоссе, от МКАД: 14 км, всего: 20 км
Киевское шоссе, от МКАД: 21 км, всего: 33 км
Тип застройки: обжитой к/п
Метро: Ольховая, Прокшино, Теплый стан; от 23 мин на авто

Дом

Общая площадь строений: 435 м2 (Дом 296 кв.м + гостевой дом 139 кв.м)
Год постройки дома: 2012
Количество уровней: 2
Спален: 4. С/узлов: 4. Комнат всего: 8.
Опции: сауна; квартира для персонала; терраса; камин; машиномест крытых: 2, в т.ч. в теплом гараже: 2; 2й свет.
Материал стен: Одна часть дома состоит из кирпича, другая из сруба ( диаметр 25 см), между ними температурный шов.
Облицовка стен: Цоколь отделан диким камнем ( песчаник), кирпичная часть отделана декоративной штукатуркой, рубленная часть окрашена краской.
Кровля: мягкая (Katepal)
Окна: стеклопакеты деревянные
Стадия готовности: меблирован
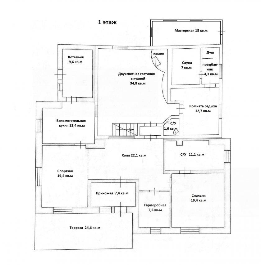
1-ый этаж: Терраса 24.6 кв.м, прихожая 7.4 кв.м, холл 22 кв.м, спальня 19.4 кв.м, гардеробная 7.6 кв.м, с/узел 11 кв.м, двусветная кухня-гостиная 35 кв.м с с/узлом, комната отдыха 12.7 кв.м, раздевалка с душевой 4 кв.м, сауна 7 кв.м, спортзал 19.4 кв.м, вспомогательная кухня 13.4 кв.м, котельная 9.6 кв.м с выходом на улицу.
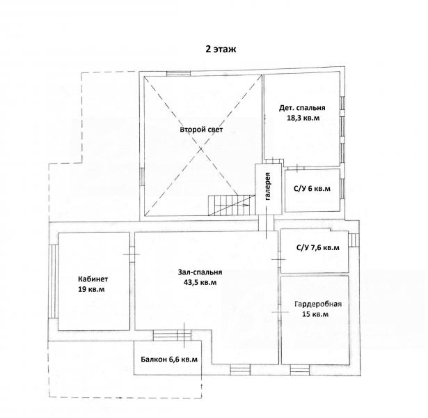
2-ой этаж: Галерея 3.6 кв.м, спальня 18 кв.м с с/узлом 6 кв.м, зал-спальня 43.5 кв.м с выходом на балкон 6.6 кв.м, гардеробная 15 кв.м, кабинет 19 кв.м, с/узел 7.6 кв.м.
Описание внутренней отделки: Стены отделаны декоративной штукатуркой, бревно окрашено. Полы: кафель с водяным подогревом, пробка, массив доски ценных пород дуба и лиственницы. Потолки подвесные ГКЛ, пробка и вагонка. Лестница деревянная. Двери деревянные массив сосны. Все коммуникации разведены под ключ, батареи стальные с регулировкой температуры. Вся сантехника установлена марки Ideal Standart, Ceresit.
Инженерное обеспечение: В доме установлен газовый двухконтурный котел марки Protherm (пр-ва Чехия). Система очистки воды многоступенчатая с ионизацией и ультрафиолетом. Вентиляция принудительная централизованная приточно-вытяжная с газовым предварительным нагревом. В комнатах установлены кондиционеры марки Hyundai.
Мебель, оборудование: Кухня дизайнерская массив дерева, столешница из искусственного камня, варочная панель и духовой шкаф марки Electrolux, посудомоечная машина Bosch.
Дополнительные строения: Гостевой дом кирпичный 139 кв.м.
1 этаж- квартира для персонала: прихожая 4 кв.м, с/узел-котельная 6 кв.м, жилая комната с кухней 22.6 кв.м; гараж 40 кв.м с генераторной 6 кв.м.
2 этаж- гостевая квартира: прихожая 5 кв.м, с/узел 3.5 кв.м, кухня-столовая 19.4 кв.м, жилая комната 33 кв.м.
Хозблок из пеноблока облицован блокхаусом 27.6 кв.м с навесом под дрова 17 кв.м.
Мастерская 18 кв.м. Беседка летняя с барбекю и французской печью, каменной мойкой и подведенной водой. Детская площадка с горкой. Теплица: с разведенным под землей автополивом.
Дополнительная информация о доме: Фундамент ленточный железобетонный монолитный, перекрытия деревянные и железобетонные монолитные.

Участок

Площадь участка, соток: 25
Тип участка: парковый
Благоустройство участка: На участке растут голубые ели, плодовый сад: яблони, груши, вишня и слива, разбит газон, сделаны клумбы и грядки, организованы дорожки и уличное освещение. Сделан дренаж вокруг дома и по участку.
Статус земли: земли поселений для ИЖС
Дополнительная информация об участке: Участок прямоугольной формы, расположен в центре поселка, огражден с двух сторон кирпичным забором на каменных столбах и бетонном цоколе, с других сторон деревянным забором на металлических столбах.

Коммуникации

Газ: есть (магистральный)
Э/э: есть
Водопровод: индивид. скважина (40 м)
Канализация: автономная (Топаз 8)
Телефон: есть (МГТС)
Интернет: есть
Охрана: есть (Вооруженная на въезде, видеонаблюдение)

Описание инфраструктуры

В Жуковке частная школа 1-11 классы "Путь к успеху". Инфраструктура г.Троицка.

Хочу посмотреть


Поделитесь с друзьями:

Собираетесь купить дом, дачу или коттедж на Калужском или Киевском направлении? Обязательно воспользуйтесь услугами компании «Белые Ветры», старейшего оператора загородной недвижимости на Юго-западе Подмосковья!
Рейтинг@Mail.ru