Продажа дачи, коттеджа, дома на Киевском, Калужском шоссе — цена, описание, фото, расположение на карте.

Дом, Зименки

Снят с реализации

Дом 224 кв.м под ключ в деревне Зименки на участке 6.6 соток

Код: 569-201

Особенности объекта

Готовый к проживанию дом с цокольным этажом, со всеми коммуникациями. С отдельно стоящим гостевым домом. Расположен в деревне. Близость к Старой Москве. Удобное транспортное сообщение. Бронь до 05.11.2020

Расположение

Ссылка на карту
Зименки
Калужское шоссе, от МКАД: 7 км, всего: 11 км
Киевское шоссе, от МКАД: 7 км, всего: 12 км
Тип застройки: коттеджная застройка
Метро: Ольховая, Филатов луг, Теплый стан; от 8 мин на авто

Дом

Общая площадь строений: 224 м2 (жилой дом 176 кв.м+ гостевой дом 55 кв.м)
Год постройки дома: 2009
Количество уровней: 3
Спален: 2. С/узлов: 2. Комнат всего: 3.
Опции: квартира для персонала.
Материал стен: пеноблок с утеплителем пеноплекс
Облицовка стен: штукатурка
Кровля: металлочерепица
Окна: стеклопакеты ПВХ
Стадия готовности: под ключ
Цоколь: Подвал: коридор, свободное помещение 34.4 кв.м, котельная 8.8 кв.м, подсобное помещение 8 кв.м
1-ый этаж: Коридор, гостиная 39.6 кв.м, кухня 13 кв.м, с/узел 6.8 кв.м
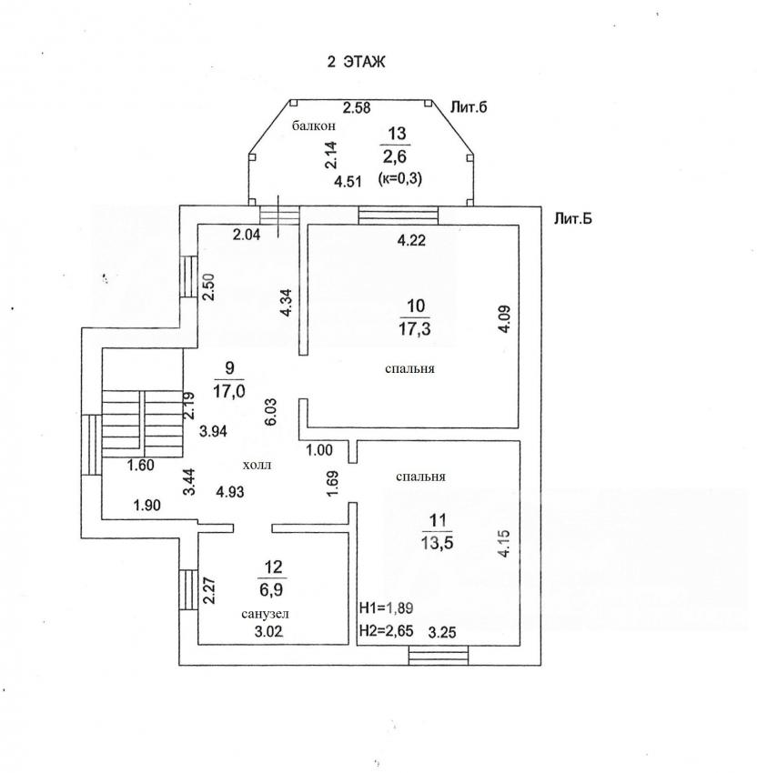
2-ой этаж: Холл 17 кв.м, спальня 17 кв.м, спальня 13.5 кв.м, с/узел 7 кв.м, балкон
Описание внутренней отделки: Стены окрашены и оклеены обоями, потолки окрашены, полы отделаны плиткой и ламинатом. Все коммуникации разведены под ключ. Лестничный марш бетонный.
Инженерное обеспечение: Вентиляция естественная. Для очистки воды установлены фильтры. Для горячего водоснабжения установлен котел марки Protherm.
Дополнительные строения: гостевой домик: 1 этаж-баня 8 кв.м, комната отдыха 20 кв.м; 2 этаж-спальня 28 кв.м
Дополнительная информация о доме: Фундамент ленточный, перекрытия железобетонные. Высота потолков 2.90 м.

Участок

Площадь участка, соток: 6.6
Тип участка: парковый
Благоустройство участка: На участке растут садовые деревья, сооружен дренаж.
Статус земли: земли населенных пунктов
Дополнительная информация об участке: Участок прямоугольной формы, огорожен забором из металлопрофиля

Коммуникации

Газ: есть (магистральный)
Э/э: есть (15 кВт)
Водопровод: колодец
Канализация: автономная
Телефон: есть
Интернет: есть

Хочу посмотреть


Поделитесь с друзьями:

Собираетесь купить дом, дачу или коттедж на Калужском или Киевском направлении? Обязательно воспользуйтесь услугами компании «Белые Ветры», старейшего оператора загородной недвижимости на Юго-западе Подмосковья!
Рейтинг@Mail.ru