Продажа дачи, коттеджа, дома на Киевском, Калужском шоссе — цена, описание, фото, расположение на карте.

Дом, Зимний сад к/п

Снят с реализации

Двухэтажный коттедж 200 кв.м с мебелью

Код: 205-822

Особенности объекта

Уютный, полностью оборудованный мебелью и техникой коттедж, в обжитом охраняемом коттеджном поселке, окруженном лесом. Посмотрите видео. Стильная и качественная отделка, функциональная планировка. 2 этажа: гостиная с камином и выходом на летнюю веранду и участок, кухня-столовая, 3 спальни, сауна, 3 санузла. Центральные коммуникации, телефон, интернет. 

Расположение

Ссылка на карту
Зимний сад к/п (Первомайское)
Киевское шоссе, от МКАД: 21 км, всего: 26 км
Тип застройки: сформированный к/п
Метро: Крёкшино, Саларьево, Теплый стан; от 23 мин на авто
Коттеджный поселок «Зимний Сад»

Дом

Общая площадь строений: 200 м2
Год постройки дома: 2007
Количество уровней: 2
Спален: 3. С/узлов полных: 2. С/узлов неполных: 1. Комнат всего: 4.
Опции: сауна; терраса; камин.
Материал стен: пеноблок (60 см)
Облицовка стен: штукатурка
Кровля: металлочерепица
Окна: стеклопакеты ПВХ (тонированные)
Стадия готовности: меблирован
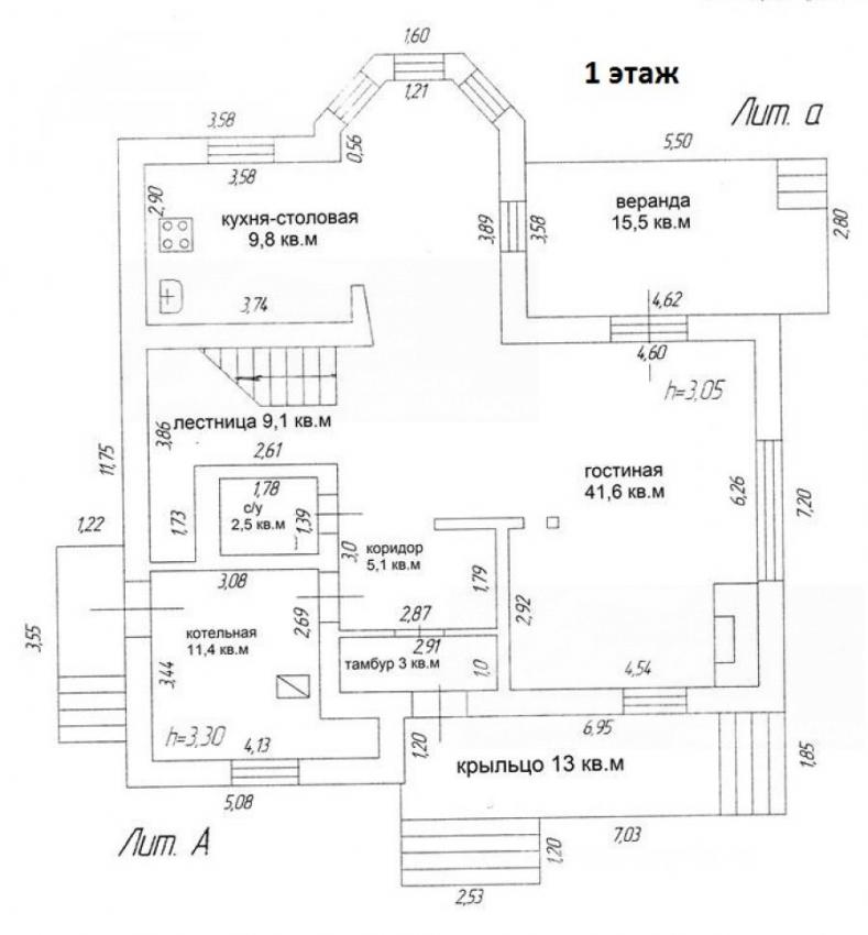
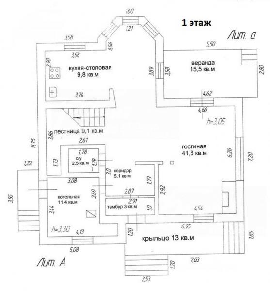
1-ый этаж: крыльцо 13 кв.м, тамбур, холл 5 кв.м, гостиная с камином 41.6 кв.м и выходом на веранду 15.5 кв.м, кухня 10 кв.м, котельная 11 кв.м с выходом на улицу, с/узел 2.5 кв.м
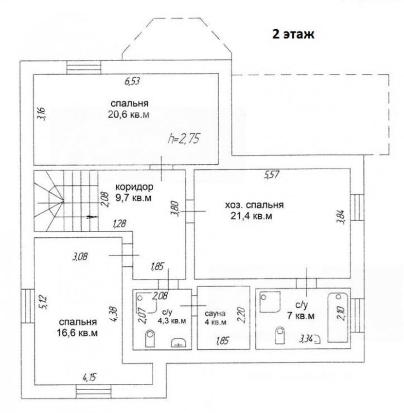
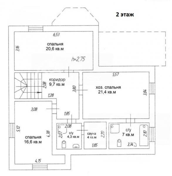
2-ой этаж: холл 10 кв.м, спальня 20.6 кв.м, спальня 16.6 кв.м, общий с/узел 4.3 кв.м с сауной 4 кв.м, главная спальня 21.4 кв.м с с/узлом 7 кв.м
Описание внутренней отделки: стены окрашены, оклеены обоями; пол - кафель с водяным подогревом, качественный ламинат, в спальнях - ковролин; потолки подвесные со встроенным освещением, декорированы деревянными балками под "фахверк"; лестничный марш бетонный, ступени отделаны плиткой, перила кованые; двери деревянные шпонированные
Инженерное обеспечение: газовый котел Protherm (Чехия), бойлер на 150 л Protherm (Чехия); многоступенчатая система очистки воды; все коммуникации разведены по дому; установлены счетчики воды и электричества
Мебель, оборудование: Дом полностью обставлен мебелью: спальные гарнитуры, кухонный гарнитур со встроенной техникой; в санузлах установлена сантехника (Италия): душевые кабины, в хозяйском с/узле ванна
Дополнительная информация о доме: Дом построен и отделан в "Альпийском" стиле. Фундамент ленточный ж/б монолит, перекрытия ж/б монолит, высота потолков 2.75-3 метра.

Участок

Площадь участка, соток: 12
Тип участка: парковый с деревьями
Благоустройство участка: на участке газон, сделан дренаж участка и вокруг дома
Статус земли: земли поселений, для ИЖС
Дополнительная информация об участке: ровный участок прямоугольной формы, расположен в центре поселка, огорожен деревянным забором на фундаменте с кирпичными столбами

Коммуникации

Газ: есть (магистральный)
Э/э: есть (15 кВт)
Водопровод: центральный
Канализация: централизованная
Телефон: возможно подключение (МГТС)
Интернет: есть (оптоволокно, НТВ+)
Охрана: есть

Описание инфраструктуры

Вся городская инфраструктура находится в 10 минутах на машине в поселке Первомайское: школы, дестские сады, поликлинка, банки, рестораны, салоны красоты, спортивный комплекс и тп. Пяти звездочный Отель и СПА-комплекс Теплеево Резорт, включающий в себя: детский сад «Империя Знаний», выездной туристический клуб, спортивные и творческие кружки, подготовительные занятия к школе и тп., бизнес-центр с конференц-залами, рестораны, фитнес-центр, SPA-клуб, 25-метровый бассейн с гейзером и массажными противотоками, детский бассейн с горкой, финские сауны и турецкий хамам, арома-баня, косметология, солярий, имидж-студия, банкоматы, прачечная, химчистка. А также рыбалка, катание на лошадях, квадроциклы, пейнтбол, тир, теннисные корты, баскетбол, залы единоборств, парковка. В в деревне Рогозинино расположены Торговый центр, магазин «Перекресток», "Русская теннисная академия" (кроме тенниса: единоборства, детский клуб, студия фитнеса), ресторан «Весна», СПА-комплекс и Международная школа Внуково.

Элементы положит. окружения

Тихое место, в 200 метрах расположен лесной массив и протекает река Десна.

Хочу посмотреть


Поделитесь с друзьями:

Собираетесь купить дом, дачу или коттедж на Калужском или Киевском направлении? Обязательно воспользуйтесь услугами компании «Белые Ветры», старейшего оператора загородной недвижимости на Юго-западе Подмосковья!
Рейтинг@Mail.ru