Загородный дом, коттедж в аренду на Калужском, Киевском шоссе Подмосковья.

Дом в аренду, Гавриково-1 СНТ

Снят с реализации

Меблированный дом в аренду в СНТ Гавриково-1

Код: 541-002

Особенности объекта

Прекрасная дача в стиле кантри! Бревенчатый добротный дом расположен на лесном участке с красивейшим ландшафтным дизайном, с прудиком, с баней и бассейном. В 15 мин пешком от метро Бунинская аллея. В шаговой доступности инфраструктура района Южное Бутово. Охрана. Сдается также на летний сезон.

Расположение

Ссылка на карту
Гавриково-1 СНТ
Варшавское шоссе, от МКАД: 5 км, всего: 6 км
Калужское шоссе, от МКАД: 8 км, всего: 11 км
Тип застройки: сформированный к/п
Метро: Бунинская аллея, Ольховая, Теплый стан; от 20 мин пешком

Дом

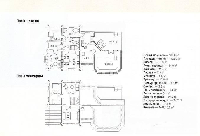
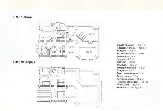
Общая площадь строений: 200 м2
Год постройки дома: 2008
Количество уровней: 2
Спален: 3. С/узлов: 1. Комнат всего: 5.
Опции: бассейн; сауна; терраса; камин.
Материал стен: бревно
Кровля: металлочерепица
Окна: стеклопакеты ПВХ
Стадия готовности: меблирован
1-ый этаж: 1-й этаж - кухня, с/у , вход в баню с купелью и душ. кабиной, проход в бассейн и сауну
2-ой этаж: три спальни
Мебель, оборудование: укомплектован всей необходимой мебелью, вся бытовая техника

Участок

Площадь участка, соток: 24
Тип участка: лесной
Благоустройство участка: газон, лесные деревья, ландшафтный дизайн. Лес - вокруг и на участке.

Коммуникации

Э/э: есть
Водопровод: центральный
Канализация: централизованная
Интернет: есть (выделенная линия, высокоскоростной интернет)
Охрана: есть (КП)

Описание инфраструктуры

Инфраструктура района Южное Бутово (все элементы городской инфраструктуры: школы, бассейн, ФОК).

Хочу посмотреть


Вознаграждение агентству «Белые Ветры»: 60 000 руб. + НДС 5% от вознаграждения

Поделитесь с друзьями:

С помощью агентства загородной недвижимости «Белые Ветры» Вы без труда сможете снять дом в Подмосковье на Юго-западном направлении.
Рейтинг@Mail.ru