Дом в аренду, Лесная поляна к/п
Код: 111-018
Особенности объекта
Дом в 2-х км от МКАД (Газопровод) в классическом стиле с продуманной планировкой на шикарном большом участке 32 сотки, в тихом обжитом поселке, расположенном на территории лесного массива. В доме есть СПА_зона: бассейн, сауна, комната отдыха; бильярдная, зимний сад. Отдельное здание - гараж на 3 м/м с квартирой для персонала, летняя беседка, теплица. На участке органично сочетаются лесные, парковые территории и зеленые лужайки с газонами, цветниками и собственным прудом.
Расположение
Ссылка на карту
Лесные поляны КП (Газопровод)
Калужское шоссе, от МКАД: 2 км, всего: 2 км
Тип застройки: обжитой к/п
Метро: Ольховая, Теплый стан, Бульвар Дмитрия Донского; от 6 мин на авто
Дом
Общая площадь строений: 560 м2
Количество уровней: 3
Спален: 6. С/узлов полных: 6. С/узлов неполных: 1. Комнат всего: 13.
Опции: бассейн; сауна; квартира для персонала; камин; машиномест крытых: 3, в т.ч. в теплом гараже: 3; бильярдная, зимний сад.
Материал стен: кирпич
Облицовка стен: декоративная штукатурка "Капоролла" (с каучуком)
Кровля: металлочерепица
Окна: деревянные (2-х рамные стеклопакеты, деревянные, Финляндия)
Стадия готовности: меблирован
1-ый этаж: тамбур 5 кв.м, гостиная с камином 40.4 кв.м, кухня-столовая 36 кв.м, кладовая 4.5 кв.м, кабинет 13.8 кв.м, постирочная 15.1 кв.м, СПА зона: коридор, тамбур, с/у, комната отдыха 15.1 кв.м, с/у, парная с парогенератором, бассейн, котельная с выходом в сад
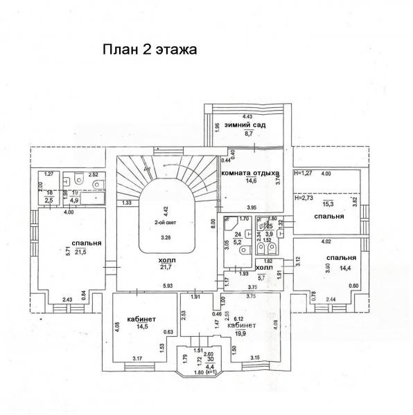
2-ой этаж: холл 21.7 кв.м, спальня 21.5 кв.м с с/у 4.9 и гардеробной 2.5 кв.м, кабинет 14.5 кв.м, кабинет с балконом 4.4 кв.м, с/у 5.2 кв.м, коридор 5.7 кв.м, спальня 14.4 кв.м, спальня 15.3 кв.м с с/у 3.9 кв.м, комната 14.6 кв.м с зимним садом 8.7 кв.м
3-ий этаж: бильярдная 55.8 кв.м с профессиональным оборудованием (русский бильярд № 12), коридор 3.1 кв.м, с/у 3.1 кв.м, спальня 15.1 кв.м со встроенным шкафом, спальня 12.6 кв.м
Описание внутренней отделки: пол - ламинат, плитка; потолок - гипсокартон; дубовая лестница и двери; мраморные подоконники; импортная сантехника
Инженерное обеспечение: импортный котел 80 кВт (может работать и на дизеле), бойлер на 200 литров, система очистки воды, 2 сплит-системы, сигнализация, домофон в доме и в гараже
Мебель, оборудование: дом полностью меблирован в классическом стиле
Дополнительные строения: квартира для персонала, гараж на 3 автомобиля, 2 теплицы, колодец, летняя беседка
Участок
Площадь участка, соток: 35
Тип участка: с деревьями и ландшафтом
Благоустройство участка: На участке множество взрослых деревьев, выполнен ландшафтный дизайн. Организован газон, проложены дорожки, высажены туи, ели, плодовые деревья, кустарники. На участке искусственный пруд, альпийские горки, березовая роща
Дополнительная информация об участке: по фасаду участок огорожен прозрачным кованым забором с калиткой и автоматическими воротами
Коммуникации
Газ: есть (магистральный)
Э/э: есть (15 кВт)
Водопровод: центральный (городские сети + собственная артезианская скважина глубиной 120 м)
Канализация: централизованная
Телефон: есть (2 московских номера)
Интернет: есть (IDSL)
Охрана: есть
Описание инфраструктуры
В поселке свой магазин, небольшая церковь, детская и спортивная площадки. Школа и детский сад в 100 метрах от дома. В 300 метрах городская инфраструктура (ЖК Испанские кварталы). При въезде в поселок фитнес-клуб в бизнес центре К-2. В 2 км до ТЦ Мега, Ашан, Икеа.
Хочу посмотретьОплата агентству «Белые Ветры»: 150 000 руб.
Поделитесь с друзьями:
Похожие предложения:
Дом в аренду, Президент к/п, 480 м2, 30 сот
Бунинская аллея, Ольховая - от 8 мин на автоДом в аренду, Президент к/п
Калужское ш., 8 км + 3 км
пл. участка: 30 сот
пл. дома: 480 м2
меблирован
Спален: 4. С/узлов: 6.




