Дом в аренду, Лето ДПК
Код: 193-001
Особенности объекта
Красивый кирпичный дом с сауной и СПА-зоной. Обжитая коттеджная застройка в заповедной зоне, рядом залив реки Пахры. Качественная стильная отделка и мебель. Функциональная планировка. На ухоженном лесном участке отдельностоящий домик, беседка-барбекю и своя детская площадка. Рядом развитая городская инфраструктура г.Троицка.
Расположение
Ссылка на карту
Лето ДПК (Троицк)
Калужское шоссе, от МКАД: 17 км, всего: 23 км
Тип застройки: обжитой к/п
Метро: Ольховая, Теплый стан, Крёкшино; от 23 мин на авто
Дом
Общая площадь строений: 360 м2
Год постройки дома: 2010
Количество уровней: 4
Спален: 6. С/узлов: 5. Комнат всего: 7.
Опции: сауна; камин; холодный подвал; машиномест крытых: 3.
Материал стен: кирпич
Облицовка стен: кирпич
Кровля: металлочерепица
Окна: стеклопакеты ПВХ
Стадия готовности: меблирован
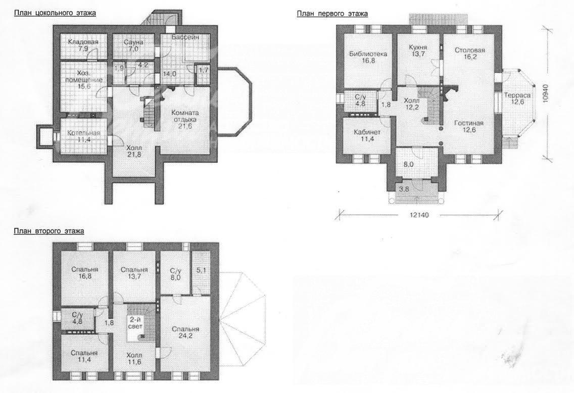
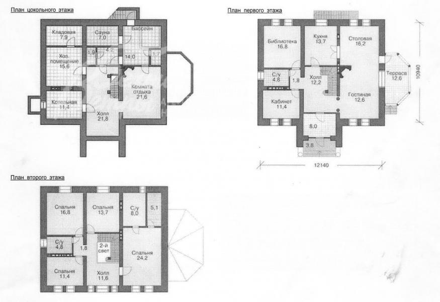
Цоколь: холл 20 кв.м, зона отдыха 25 кв.м с сауной и кедровой бочкой, постирочная 8 кв.м, с/узел 3 кв.м
1-ый этаж: тамбур 5 кв.м, встроенный шкаф 1,7 кв.м, гостиная 40 кв.м, кухня-столовая 36 кв.м, кладовая 4 кв.м, спальня 13 кв.м
2-ой этаж: холл 20 кв.м, спальня 23 кв.м с с/узлом 5 кв.м и гардеробной 2,5 кв.м, детская спальня 15 кв.м, детская спальня 14 кв.м, с/узел 6 кв.м, спальня 14 кв.м
3-ий этаж: бильярдная 56 кв.м
Описание внутренней отделки: отделка внутренних стен - в цоколе цилиндрическое бревно, в осталных помещениях - плитка, штукатурка, обои; отделка полов - ламинированный паркет, плитка (в гостиной и СПА зоне с водяным подогревом); установлен деревянный лестничный марш (дуб, шириной 1,2м); отделка потолков - многоуровневые гипсокартоновые потолки с подсветкой, штукатурка;
Инженерное обеспечение: импортная сантехника; установлен импортный котел (США); система очистки воды - обогащение кислородом, обезжелезование, умягчение; сигнализация
Мебель, оборудование: дом полностью укомлектован мебелью
Дополнительные строения: беседка, детская площадка, площадка для авто
Дополнительная информация о доме: дом классического архитектурного стиля, крыльцо с гранитными ступенями
Участок
Площадь участка, соток: 8.3
Тип участка: лесной (вековые ели)
Статус земли: земли населенных пунктов, для ведения дачного хозяйства
Дополнительная информация об участке: участок квадратной формы, огороженный по периметру забором из металлопрофиля
Коммуникации
Газ: есть (магистральный)
Э/э: есть (15 кВт)
Водопровод: центральный
Канализация: централизованная
Телефон: есть
Интернет: есть
Охрана: нет
Элементы положит. окружения
Лесной массив
Комментарий к цене
+ коммунальные платежи
Хочу посмотретьОплата агентству «Белые Ветры»: 60 000 руб.
Поделитесь с друзьями:
Похожие предложения:
Дом в аренду, Мешково к/п (Мешково), 390 м2, 10 сот
Саларьево, Рассказовка - от 11 мин на автоДом в аренду, Мешково к/п
Киевское ш., 10 км + 1 км
пл. участка: 10 сот
пл. дома: 390 м2
меблирован
Спален: 5. С/узлов: 2.




