Загородный дом, коттедж в аренду на Калужском, Киевском шоссе Подмосковья.

Дом в аренду, Милорадово

Снят с реализации

Дом 230 кв.м в КП Милорадово

Код: 371-011

Особенности объекта

Кирпичный дом 294 кв.м с бассейном, бильярдом и сауной, на большом прилесном участке с лесными деревьями и ландшафтным дизайном, в элитном обжитом строгоохраняемом котеджном поселке в лучшем месте Калужского шоссе.

Расположение

Ссылка на карту
Милорадово
Калужское шоссе, от МКАД: 10 км, всего: 11 км
Тип застройки: обжитой к/п
Метро: Ольховая, Теплый стан, Бунинская аллея; от 8 мин на авто
Коттеджный поселок «Милорадово»

Дом

Общая площадь строений: 294 м2
Количество уровней: 3
Спален: 4. С/узлов: 3. Комнат всего: 5.
Опции: бассейн; сауна; терраса; камин; холодный подвал; бильярд.
Материал стен: кирпич
Облицовка стен: облицовочный кирпич
Кровля: металлочерепица
Окна: другое (деревянные двух-рамные окна: наружная рама - стекло, внутренняя - одинарный стеклопакет)
Стадия готовности: меблирован
Цоколь: холл, комната отдыха 17.2 кв.м, зона бассейна с душевой и сауной 35.8 кв.м, с/у 2.7 кв.м, котельная, кладовая
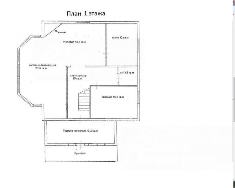
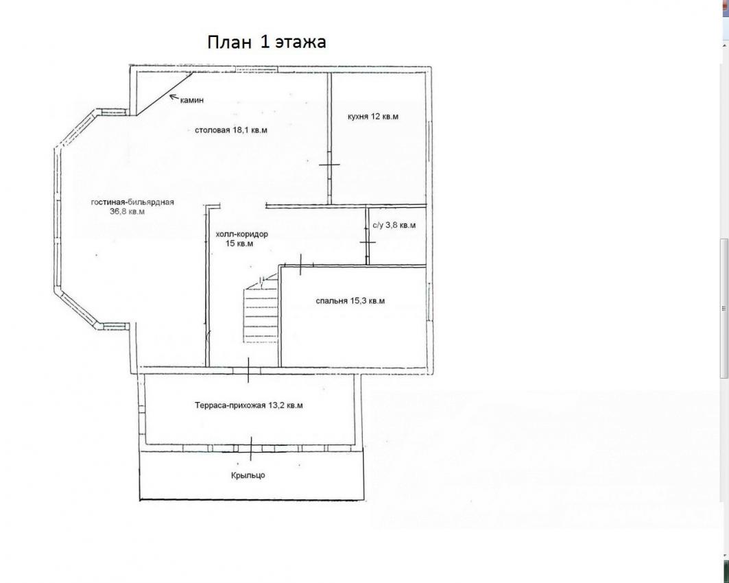
1-ый этаж: терраса-прихожая 13.2 кв.м, холл-коридор 15 кв.м, кухня 12 кв.м, столовая 18.1 кв.м, гостиная-бильярдная 36.8 кв.м с камином, спальня 15.3 кв.м, с/у 3.8 кв.м
2-ой этаж: холл 24 кв.м, две спальни по 16 кв.м, спальня 23.2 кв.м, с/у 5.4 кв.м, лоджия 16 кв.м
Описание внутренней отделки: стены - вагонка, плитка и ПВХ панели, пол - половая доска, потолки обиты вагонкой, лестница деревянная, двери из массива дерева
Инженерное обеспечение: котельная "под ключ" (котел Proterm -Чехия), многоступенчатая система очистки воды, датчики движения в доме
Мебель, оборудование: полностью меблирован
Дополнительные строения: летняя беседка с мангалом, хоз.блок для садового инвентаря

Участок

Площадь участка, соток: 22.6
Тип участка: прилесной, парковый с лесными и садовыми деревьями
Благоустройство участка: Очень зеленый ухоженный участок. Вековые ели (около 10 штук), туи, клены, рябина, садовые деревья, декоративные кустарники, газон. Всего около 100 деревьев и кустарников.
Дополнительная информация об участке: участок граничит с лесом

Коммуникации

Газ: есть (магистральный)
Э/э: есть (15 кВт)
Водопровод: центральный
Канализация: централизованная
Телефон: есть (московский номер)
Интернет: есть
Охрана: есть (строгая вооруженная охрана)

Описание инфраструктуры

Инфраструктура санатория «Десна» Управления Делами Президента.

Элементы положит. окружения

магазин, детские площадки

Хочу посмотреть


Оплата агентству «Белые Ветры»: 115 000 руб.

Поделитесь с друзьями:

Похожие предложения:

Дом в аренду, Эколь КП (Фоминское), 360 м2, 20 сот

код: 392-001
Калужское шоссе, от МКАД: 14+4 км
Киевское шоссе, от МКАД: 21+14 км
Метро Ольховая, Теплый стан - от 20 мин на авто
меблирован, спален: 4, с/узлов: 5
Участок с лесомСауна
Сдан до марта 2026 г.

Дом в аренду, Эколь КП

Код объекта: 392-001
Калужское ш., 14 км + 4 км
пл. участка: 20 сот
пл. дома: 360 м2
меблирован
Спален: 4. С/узлов: 5.
Сдан до марта 2026 г.
Участок с лесом
190 000 /мес.

Дом в аренду, Комфорт к/п (Троицк), 312 м2, 18.5 сот

код: 547-006
Калужское шоссе, от МКАД: 15+2 км
Метро Ольховая, Теплый стан - от 25 мин на авто
меблирован, спален: 5, с/узлов: 2
Участок с лесомОбъект у водыБаня
Сдан до декабря 2025 г.

Дом в аренду, Комфорт к/п

Код объекта: 547-006
Калужское ш., 15 км + 2 км
пл. участка: 18.5 сот
пл. дома: 312 м2
меблирован
Спален: 5. С/узлов: 2.
Сдан до декабря 2025 г.
Участок с лесомОбъект у воды
200 000 /мес.

Дом в аренду, Южное Бутово, 350 м2, 20 сот

код: 587-001
Варшавское шоссе, от МКАД: 5+0 км
Калужское шоссе, от МКАД: 4+7 км
Метро Бунинская аллея, Бульвар адмирала Ушакова - от 10 мин пешком
меблирован, спален: 4, с/узлов: 4
Участок с лесомСауна
Сдан до декабря 2025 г.

Дом в аренду, Южное Бутово

Код объекта: 587-001
Варшавское ш., 5 км
пл. участка: 20 сот
пл. дома: 350 м2
меблирован
Спален: 4. С/узлов: 4.
Сдан до декабря 2025 г.
Участок с лесом
270 000 /мес.
С помощью агентства загородной недвижимости «Белые Ветры» Вы без труда сможете снять дом в Подмосковье на Юго-западном направлении.
Рейтинг@Mail.ru