Дом в аренду, Север к/п
Код: 188-011
Особенности объекта
Абсолютно новый дом с дорогими отделочными материалами в экологически чистом, очень красивом месте.
Расположение
Ссылка на карту
Север к/п (Юрово)
Калужское шоссе, от МКАД: 27 км, всего: 28 км
Тип застройки: обжитой к/п
Метро: Ольховая, Теплый стан, Бунинская аллея; от 32 мин на авто
Дом
Общая площадь строений: 358 м2
Год постройки дома: 2005
Количество уровней: 4
Спален: 4. С/узлов: 5. Комнат всего: 12.
Опции: камин; холодный подвал; машиномест крытых: 1, в т.ч. в теплом гараже: 1.
Материал стен: кирпич
Облицовка стен: кирпич
Кровля: металлочерепица
Окна: стеклопакеты ПВХ
Стадия готовности: под ключ
Цоколь: помещения свободного назначения, площади 40.2 кв.м, 16.8 кв.м, 15.5 кв.м, 24.2 кв.м, с/узел
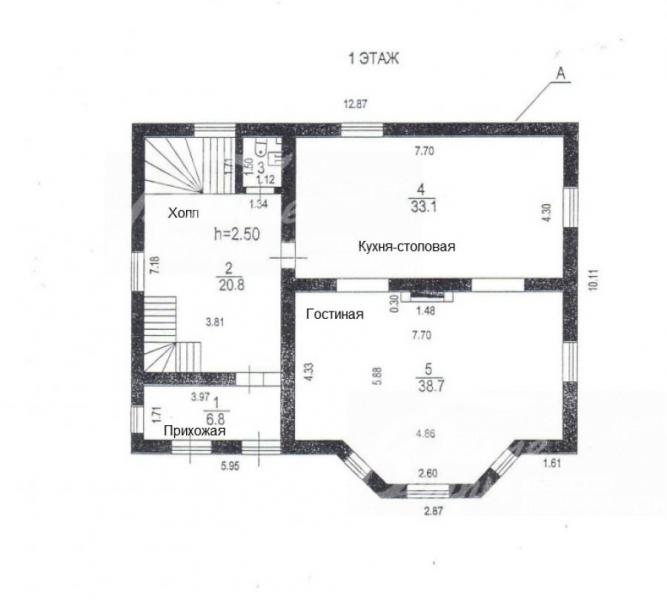
1-ый этаж: прихожая 6.8 кв.м, холл 20.8 кв.м, гостиная 38.7 кв.м, совмещенная с кухней-столовой 33.1 кв.м, с/узел
2-ой этаж: 2 спальни по 16 кв.м, гостиная 39 кв.м, с/узел с душевой кабиной, с/узел
3-ий этаж: помещения свободного назначения, площади: 20.4 кв.м, 14.4 кв.м, 18.9 кв.м, с/узел
Описание внутренней отделки: пол- плитка, ламинат; стены оштукатурены, в с/узлах выложены плиткой; элементы ковки на лестнице; на мансардном этаже обшивка натуральным деревом
Дополнительные строения: гараж
Участок
Площадь участка, соток: 10
Благоустройство участка: по периметру участка высажены взрослые березы, на участке плодовые кустарники и газон
Дополнительная информация об участке: в 150 м-200 м лесной массив, в поселке 2 зарыбленых пруда, в 1 км река Пахра
Коммуникации
Газ: есть (магистральный)
Э/э: есть (10 кВт)
Водопровод: центральный (скважина на весь поселок)
Канализация: автономная
Охрана: есть (КПП при въезде в поселок)
Описание инфраструктуры
В 1 км рыболовный клуб "Сазан" с рестораном, ресторан "Калужская застава"
Хочу посмотретьОплата агентству «Белые Ветры»: 50 000 руб.
Поделитесь с друзьями:
Похожие предложения:
Дом в аренду, Поливаново, 300 м2, 12 сот
Варшавское шоссе, от МКАД: 26+7 км
Ольховая, Теплый стан - от 23 мин на автоДом в аренду, Поливаново
Калужское ш., 19 км + 6 км
пл. участка: 12 сот
пл. дома: 300 м2
меблирован
Спален: 3. С/узлов: 3.





