Дом в аренду, Согласие-2 КП
Код: 124-018
Особенности объекта
Просторный, светлый дом 450 кв.м на участке 30 соток со стильным, дорогим, качественным ремонтом и новой мебелью и техникой в обжитом поселке. В доме высокие потолки, оконные и дверные проемы высотой (удобно для людей высокого роста), широкая лестница и другие достоинства. В поселке детский клуб, рядом супермаркет, оздоровительный комплекс.
Расположение
Ссылка на карту
Согласие-2 КП (Фоминское)
Калужское шоссе, от МКАД: 14 км, всего: 17 км
Тип застройки: обжитой к/п
Метро: Ольховая, Теплый стан, Крёкшино; от 20 мин на авто
Коттеджный поселок «Согласие-2»
Дом
Общая площадь строений: 450 м2
Количество уровней: 2
Спален: 4. С/узлов полных: 3. С/узлов неполных: 4. Комнат всего: 7.
Опции: сауна; терраса; камин; машиномест крытых: 2, в т.ч. в теплом гараже: 2.
Материал стен: кирпич 50 см + утеплитель
Облицовка стен: штукатурка
Кровля: металлочерепица
Окна: стеклопакеты ПВХ (2-х камерные)
Стадия готовности: меблирован
1-ый этаж: тамбур 6.5 кв.м, кабинет 3.8 кв.м, гардероб 3.8 кв.м, с/у 4 кв.м, холл 31 кв.м, кухня 24 кв.м, столовая 37 кв.м, с выходом на терассу 40 кв.м, гостиная (камнная) 40 кв.м, зона сауны 16 кв.м, сауна 5 кв.м, с/у с душевой
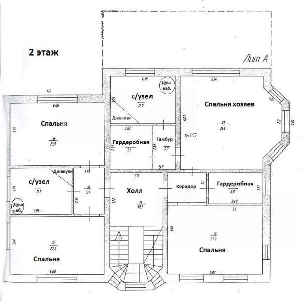
2-ой этаж: спальня 23 кв.м, с/у 12 кв.м, спальня 23 кв.м, спальня 36 кв.м, с/у 13 кв.м, гардероб 8 кв.м, тамбур 4.5 кв.м, холл 11 кв.м, гардероб 7 кв.м, детская спальня 28 кв.м
Описание внутренней отделки: для отделки использованы качественные материалы. Стильная дорогая мебель и оборудование. Свежий, с большим вкусом выполненный ремонт в спокойных светлых тонах.
Стены- покраска и обои, пол- плитка, половая доска из массива австралийского дуба, лестница- из дерева, потолки оштукатурены. Двери из массива сосны, окрашены в белый цвет, подоконники из пластика
Инженерное обеспечение: котел Wiessman 146 КВТ, бойлер Refleх на 400л, многоступенчатая система очистки воды "Ecowater", фильтры, кондиционеры, домофон
Мебель, оборудование: кухня с техникой Miele, Liebherr, столовый гарнитур (Италия) из массива, люстры Италия, в гостиной мягкая мебель и журнальный столик (Дания), электрический камин, TV c музыкальной системой
Дополнительные строения: квартира для персонала с гаражом на 2 а/м на первом этаже
Дополнительная информация о доме: высокие потолки: 3.4 м на 1-ом этаже и 3.55 м (!) на 2-ом этаже, оконные проемы - 1.95 м (дом очень светлый). Дверные проемы высотой 2.3 м (удобно для людей высокого роста). Широкая лестница.
Участок
Площадь участка, соток: 30
Тип участка: с садовыми деревьями
Благоустройство участка: по периметру высажены кустарники, несколько декоративных и фруктовых деревьев (ивы, клен, березы) - около 60 штук
Коммуникации
Газ: есть (магистральный)
Э/э: есть (15 кВт)
Водопровод: центральный
Канализация: централизованная
Телефон: возможно подключение
Интернет: возможно подключение
Охрана: есть (профессиональная круглосуточная)
Описание инфраструктуры
Вблизи поселка два супермаркета, магазин хозтоваров, пункт выдачи Ozon,, автомойка, , красивейшая деревянная церковь «Покров Божьей матери на Десне». В Жуковке частная школа 1-11 классы "Путь к успеху". В 2,5 км от поселка расположен оздоровительный комплекс УД Президента РФ "Ватутинки", в котором есть: бассейны (детский и взрослый), финская сауна, римская сауна, диско-бар, пивной бар, спортклуб, услуги стилиста, массажиста, косметолога, парикмахера, лечение: диагностика заболеваний, оздоровительные и корректирующие процедуры, кабинеты физиотерапии/ На выходе из посёлка остановка автобуса 422 до м. Ольховая. В 4 км микрорайон "Новые Ватутинки Центральные" со всей инфраструктурой (школы, поликлиника, супермаркеты, кафе, фитнес - клуб, ТРЦ "Лайнер" )
Хочу посмотретьОплата агентству «Белые Ветры»: 100 000 руб.
Поделитесь с друзьями:
Похожие предложения:
Дом в аренду, Московский писатель ДСК (Абабурово), 470 м2, 24 сот
Боровское шоссе, от МКАД: 11+2 км
Рассказовка, Филатов луг - от 12 мин на автоДом в аренду, Московский писатель ДСК
Киевское ш., 10 км + 5 км
пл. участка: 24 сот
пл. дома: 470 м2
меблирован
Спален: 5. С/узлов: 4.

Дом в аренду, Чароит (Ватутинки), 503 м2, 28 сот
Ольховая, Теплый стан - от 14 мин на автоДом в аренду, Чароит
Калужское ш., 14 км + 1 км
пл. участка: 28 сот
пл. дома: 503 м2
меблирован
Спален: 6. С/узлов: 2.








