Дом в аренду, Сосенки
Код: 303-007
Особенности объекта
Сдается в аренду меблированный коттедж на просторном лесном участке, всего в 7 км от МКАД по Калужскому шоссе. 3 этажа, гостиная, кухня-столовая, 4 спальни, 4 санузла, сауна, квартира для персонала.
Расположение
Ссылка на карту
Сосенки
Калужское шоссе, от МКАД: 7 км, всего: 7 км
Тип застройки: коттеджная застройка
Метро: Ольховая, Теплый стан, Коммунарка; от 2 мин на авто
Дом
Общая площадь строений: 192 м2
Год постройки дома: 2012
Количество уровней: 3
Спален: 5. С/узлов: 4. Комнат всего: 7.
Опции: сауна; квартира для персонала; Барбекю.
Материал стен: кирпич
Облицовка стен: кирпич
Кровля: металлочерепица
Окна: стеклопакеты ПВХ
Стадия готовности: меблирован
1-ый этаж: холл 7 кв.м, кухня-гостиная 29 кв.м, столовая 17 кв.м, с/узел с душем 7,5 кв.м, сауна 4 кв.м, блок для персонала: комната 14 кв.м, с/узел 3,4 кв.м, бойлерная 10 кв.м
2-ой этаж: спальня 13 кв.м, спальня 12 кв.м, с/узел 6 кв.м, спальня 20 кв.м
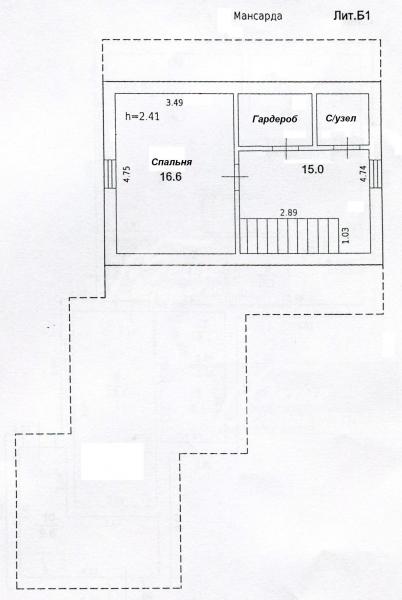
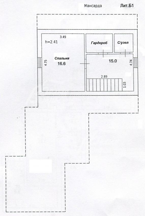
3-ий этаж: спальня 16,6 кв.м, гардероб, с/узел
Описание внутренней отделки: отделка полов: паркетная доска, плитка на кухне и с/узлах; отделка стен: штукатурка, декоративный кирпич; отделка потолков - штукатурка; установлен деревянный лестничный марш;
Инженерное обеспечение: установлен котел (Германия), импортная сантехника; система очистки воды
Дополнительные строения: барбекю
Участок
Площадь участка, соток: 15
Тип участка: лесной (ели, сосны)
Статус земли: Земли населенных пунктов, ижс
Дополнительная информация об участке: участок огорожен забором из металлопрофиля на бетонных столбах
Коммуникации
Газ: есть
Э/э: есть (10 кВт)
Водопровод: центральный
Канализация: автономная
Интернет: есть
Охрана: нет
Описание инфраструктуры
в дер.Сосенки супермаркет Мираторг, ряд мелких магазинов и кафе. Полная городская инфраструктура Воскресенского в 1 км. Инфраструктура поселка Дубровка
Элементы положит. окружения
Лесной массив
Хочу посмотретьОплата агентству «Белые Ветры»: 47 500 руб.
Поделитесь с друзьями:
Похожие предложения:
Дом в аренду, Внуково, 220 м2, 15 сот
Боровское шоссе, от МКАД: 11+3 км
Рассказовка, Саларьево - от 8 мин на автоДом в аренду, Внуково
Киевское ш., 10 км + 6 км
пл. участка: 15 сот
пл. дома: 220 м2
меблирован
Спален: 3. С/узлов: 3.

Дом в аренду, Жуковка, 200 м2, 15 сот
Киевское шоссе, от МКАД: 21+12 км
Ольховая, Теплый стан - от 24 мин на автоДом в аренду, Жуковка
Калужское ш., 14 км + 7 км
пл. участка: 15 сот
пл. дома: 200 м2
меблирован
Спален: 4. С/узлов: 2.








